Southcote Road, South Norwood

- PROPERTY TYPE
Terraced
- BEDROOMS
4
- BATHROOMS
1
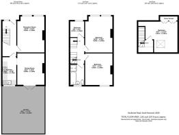
- SIZE
1,271 sq ft
118 sq m
- TENUREDescribes how you own a property. There are different types of tenure - freehold, leasehold, and commonhold.Read more about tenure in our glossary page.
Freehold
Key features
- 4 bedroom house
- 2 reception rooms
- UPVC double glazing
- Gas central heating system
- Garden to rear approx 65ft
- Convenient to transport links
- Near South Norwood country park
- No onward chain
- Ideal for families
- Viewing recommended
Description
The house features two inviting reception rooms, perfect for hosting guests or enjoying quiet family evenings. With four bedrooms, there is plenty of space for everyone to find their own sanctuary. The property also includes a family bathroom, catering to the needs of a busy household.
One of the standout features of this home is its convenient location. Residents will benefit from easy access to tramlink services and Norwood Junction railway/overground station, making commuting to central London and beyond a breeze.
Offered with no onward chain, this property presents an excellent opportunity for those looking to settle in a vibrant community with access to local parks and amenities. Whether you are a growing family or seeking a spacious home, this delightful house on Southcote Road is sure to impress.
Entrance - Front door leading to;-
Entrance Hall - Radiator. Leaded glazed window to front.
Reception One - 4.55m x 3.45m (14'11 x 11'4) - UPVC double glazed windows to front. Feature fireplace. Stripped wood flooring.
Reception Two - 3.99m x 3.45m (13'1 x 11'4) - UPVC double glazed window to rear. Radiator. UPVC double glazed patio French style doors to garden.
Kitchen - 3.53m x 1.78m (11'7 x 5'10) - UPVC double glazed window to rear. Range of wall and base units with work surfaces over. Stainless steel single drainer sink unit. Built-in oven, hob and extractor hood. Space for fridge/freezer and washing machine. Local tiling. Central heating boiler.
Landing - Balustrade. Carpet as laid. Access to;
Bedroom One - 4.55m x 3.48m (14'11 x 11'5) - UPVC double glazed windows to front. Radiator. Feature fireplace.
Bedroom Two - 3.99m x 3.48m (13'1 x 11'5) - UPVC double glazed window to rear. Feature fireplace.
Bedroom Three - 2.06m x 1.85m (6'9 x 6'1) - UPVC double glazed window to front. Radiator.
Bedroom Four - 4.98m x 3.91m (16'4 x 12'10) - Velux window. Radiator. Eaved storage space.
Bathroom - UPVC double glazed window to rear. Panelled bath with mixer tap shower attachment. . Shower cubicle. Low level wc. Pedestal wash hand basin. Heated towel rail.
Garden - 17.70m x 5.28m (58'1 x 17'4 ) -
Tenure - "We are advised by the vendor(s) that the tenure is Freehold".
Authority - London Borough Of Croydon. Band D £2366.91.
Brochures
Southcote Road, South NorwoodBrochure- COUNCIL TAXA payment made to your local authority in order to pay for local services like schools, libraries, and refuse collection. The amount you pay depends on the value of the property.Read more about council Tax in our glossary page.
- Band: D
- PARKINGDetails of how and where vehicles can be parked, and any associated costs.Read more about parking in our glossary page.
- On street,Disabled parking
- GARDENA property has access to an outdoor space, which could be private or shared.
- Yes
- ACCESSIBILITYHow a property has been adapted to meet the needs of vulnerable or disabled individuals.Read more about accessibility in our glossary page.
- Ask agent
Southcote Road, South Norwood
Add an important place to see how long it'd take to get there from our property listings.
__mins driving to your place
Affordability
Get an instant, personalised result:
- Show sellers you’re serious
- Secure viewings faster with agents
- No impact on your credit score
Notes
Staying secure when looking for property
Ensure you're up to date with our latest advice on how to avoid fraud or scams when looking for property online.
Visit our security centre to find out moreDisclaimer - Property reference 34536397. The information displayed about this property comprises a property advertisement. Rightmove.co.uk makes no warranty as to the accuracy or completeness of the advertisement or any linked or associated information, and Rightmove has no control over the content. This property advertisement does not constitute property particulars. The information is provided and maintained by Northwoods Residential, London. Please contact the selling agent or developer directly to obtain any information which may be available under the terms of The Energy Performance of Buildings (Certificates and Inspections) (England and Wales) Regulations 2007 or the Home Report if in relation to a residential property in Scotland.
*This is the average speed from the provider with the fastest broadband package available at this postcode. The average speed displayed is based on the download speeds of at least 50% of customers at peak time (8pm to 10pm). Fibre/cable services at the postcode are subject to availability and may differ between properties within a postcode. Speeds can be affected by a range of technical and environmental factors. The speed at the property may be lower than that listed above. You can check the estimated speed and confirm availability to a property prior to purchasing on the broadband provider's website. Providers may increase charges. The information is provided and maintained by Decision Technologies Limited. **This is indicative only and based on a 2-person household with multiple devices and simultaneous usage. Broadband performance is affected by multiple factors including number of occupants and devices, simultaneous usage, router range etc. For more information speak to your broadband provider.
Map data ©OpenStreetMap contributors.







