
Alexandra Crescent, Ilkley, LS29

- PROPERTY TYPE
Terraced
- BEDROOMS
4
- BATHROOMS
2
- SIZE
2,331 sq ft
217 sq m
- TENUREDescribes how you own a property. There are different types of tenure - freehold, leasehold, and commonhold.Read more about tenure in our glossary page.
Freehold
Key features
- Fantastic town centre location
- Attractive character home
- Immaculately presented throughout
- Four bedrooms and two bathrooms
- Dressing Room
- Off street parking and courtyard garden
- Useful utility cellar/storage
Description
Enjoying a superb location within only a few moments’ walk from many of the town's many amenities, is this most appealing character home that has been stylishly appointed throughout.
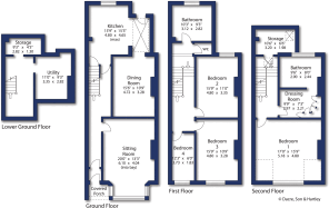
The generous accommodation on offer is arranged over four floors and includes to the ground floor, an entrance hall, a stunning sitting room with a large bay window and log burner, and a modern fitted kitchen giving access to the rear garden and steps leading down to a useful storage/utility cellar. To the first floor, there are two double bedrooms, a single bedroom and house bathroom with free standing bath and walk in shower with a separate WC. To the second floor is the primary bedroom, which is a particularly good size, as well as a dressing room with fitted wardrobes leading to a luxury bathroom and useful storage room.
To the outside the property has the rare advantage of private off-street parking, whilst to the rear is an attractive, courtyard garden with raised seating area.
Alexandra Crescent stands within the town's Conservation Area and forms part of a very popular residential neighbourhood of predominantly Victorian housing situated between the town centre and the Ilkley's riverside parks and gardens. The location is extremely convenient being within a short walk of many of the town's extensive range of shops, restaurants, cafes and general amenities. All Saints Primary School is also nearby on Skipton Road and there are pleasant walks to be enjoyed through the parks and riverside paths. Indeed, Ilkley is considered an ideal base in the magnificent Wharfe Valley countryside for commuters to Leeds/Bradford city centres to which regular rail services are available from Ilkley station, along with buses to surrounding towns. Ilkley has popular schools for all ages and a wide variety of sporting and recreational facilities. The Yorkshire Dales National Park is within six miles of Ilkley and Leeds/Bradford International Airport is just over ten miles away.
Agents Notes:
The property is located within the Ilkley conservation area
Council Tax:
The City Of Bradford Metropolitan District Council
Council Tax Band E
Tenure:
Freehold
Parking:
Off street driveway parking
Services:
All mains services installed with gas fired central heating
From our office on The Grove in Ilkley town centre facing a westerly direction proceed along The Grove and follow the road round onto Bolton Bridge Road passing the Memorial Gardens on the left. At the junction with the A65 Skipton Road turn right onto Skipton Road and then second left onto Alexandra Crescent where the property can be found on the right hand side.
Brochures
Particulars- COUNCIL TAXA payment made to your local authority in order to pay for local services like schools, libraries, and refuse collection. The amount you pay depends on the value of the property.Read more about council Tax in our glossary page.
- Band: E
- PARKINGDetails of how and where vehicles can be parked, and any associated costs.Read more about parking in our glossary page.
- Driveway,Off street
- GARDENA property has access to an outdoor space, which could be private or shared.
- Yes
- ACCESSIBILITYHow a property has been adapted to meet the needs of vulnerable or disabled individuals.Read more about accessibility in our glossary page.
- Ask agent
Alexandra Crescent, Ilkley, LS29
Add an important place to see how long it'd take to get there from our property listings.
__mins driving to your place
Affordability
Get an instant, personalised result:
- Show sellers you’re serious
- Secure viewings faster with agents
- No impact on your credit score
Notes
Staying secure when looking for property
Ensure you're up to date with our latest advice on how to avoid fraud or scams when looking for property online.
Visit our security centre to find out moreDisclaimer - Property reference ILK260045. The information displayed about this property comprises a property advertisement. Rightmove.co.uk makes no warranty as to the accuracy or completeness of the advertisement or any linked or associated information, and Rightmove has no control over the content. This property advertisement does not constitute property particulars. The information is provided and maintained by Dacre Son & Hartley, Ilkley & Wharfedale. Please contact the selling agent or developer directly to obtain any information which may be available under the terms of The Energy Performance of Buildings (Certificates and Inspections) (England and Wales) Regulations 2007 or the Home Report if in relation to a residential property in Scotland.
*This is the average speed from the provider with the fastest broadband package available at this postcode. The average speed displayed is based on the download speeds of at least 50% of customers at peak time (8pm to 10pm). Fibre/cable services at the postcode are subject to availability and may differ between properties within a postcode. Speeds can be affected by a range of technical and environmental factors. The speed at the property may be lower than that listed above. You can check the estimated speed and confirm availability to a property prior to purchasing on the broadband provider's website. Providers may increase charges. The information is provided and maintained by Decision Technologies Limited. **This is indicative only and based on a 2-person household with multiple devices and simultaneous usage. Broadband performance is affected by multiple factors including number of occupants and devices, simultaneous usage, router range etc. For more information speak to your broadband provider.
Map data ©OpenStreetMap contributors.






