
Deacon Road, Kingston Upon Thames
- PROPERTY TYPE
Land
- SIZE
Ask agent
Key features
- Full planning permission granted for one bed house
- Independent access direct from highway
- 98sqm freehold plot
- Highly sought-after KT2 postcode
- Excellent transport links
- Freehold — no shared ownership
Description
The plot extends to approximately 98 square metres and benefits from its own independent access directly from the public highway, making it entirely self-contained and free from any reliance on the adjoining property.
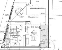
Full planning permission has been granted by the Royal Borough of Kingston upon Thames for the erection of a single-storey one-bedroom freehold house (25/01541/FUL). The approved scheme provides a well-designed, modern dwelling that makes excellent use of the plot. Approved architectural drawings are available as part of the sales pack.
This plot represents an outstanding opportunity for a self-builder wishing to create a bespoke home in one of South West London's most sought-after locations, or for a small developer looking for a clean, manageable single-unit scheme in a strong rental and resale market.
N.B. CIL Liability Notice: LN00001381 DATED Jan 19 2026 states a levy of £15,436.36 will be payable by the buyer.
The plot is situated in KT2, Kingston upon Thames — one of the most desirable postcodes in South West London and Surrey. Kingston upon Thames offers an exceptional combination of urban convenience and riverside character, with a thriving town centre, extensive retail, excellent restaurants and the River Thames.
Transport:
Kingston station: approximately 5 minutes walk — direct services to London Waterloo (approx. 30 minutes).
Norbiton station: approximately 12 minutes walk — services to London Waterloo.
Excellent bus connections across Kingston, Richmond and surrounding areas.
Quick access to the A3 for road connections to central London and the South.
Schools:
The area is served by highly regarded state and independent schools, including primary (Latchmere, Ferne Hill, St Lukes) and senior ( Tiffin Girls, Tiffin Boys, Kingston Grammar).
Amenities:
Kingston town centre (Eden Walk, Bentall Centre, riverside) within easy reach.
Richmond Park and Bushy Park — two of London's finest Royal Parks — within walking and cycling distance.
Excellent local shops, cafes and restaurants along Richmond Road and Kingston Hill.
Brochures
Deacon Road, Kingston Upon ThamesBrochureDeacon Road, Kingston Upon Thames
NEAREST STATIONS
Distances are straight line measurements from the centre of the postcode- Kingston Station0.2 miles
- Norbiton Station0.6 miles
- Hampton Wick Station0.6 miles
Notes
Disclaimer - Property reference 34536980. The information displayed about this property comprises a property advertisement. Rightmove.co.uk makes no warranty as to the accuracy or completeness of the advertisement or any linked or associated information, and Rightmove has no control over the content. This property advertisement does not constitute property particulars. The information is provided and maintained by Gibson Lane, Ham. Please contact the selling agent or developer directly to obtain any information which may be available under the terms of The Energy Performance of Buildings (Certificates and Inspections) (England and Wales) Regulations 2007 or the Home Report if in relation to a residential property in Scotland.
Map data ©OpenStreetMap contributors.









