
Uplands House, Four Ashes Road, Cryers Hill, HP15 6DY

- PROPERTY TYPE
Ground Flat
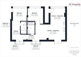
- BEDROOMS
2
- BATHROOMS
2
- SIZE
829 sq ft
77 sq m
Key features
- Two Bedroom Apartment
- Private garden
- Grade II Listed Building
- Open Plan Living Room/Kitchen
- Modern Bathroom
- Two Double Bedrooms
- En-Suite Shower Room
- Large Windows Overlooking The Green
- Set within 18 acres of Landscaped Grounds
- Allocated Parking Set within Secure Gates
Description
This wonderful two-bedroom executive ground floor apartment with private garden is situated within the modern section of this Grade II Listed development and is nestled in an idyllic area of natural beauty in Four Ashes, High Wycombe. The apartment boasts a thoughtfully designed layout, offering an open plan kitchen/lounge/dining room with high specification Italian designed kitchen and bespoke Italian family bathrooms. The apartment boasts two good sized bedrooms, both with large windows overlooking the green to the front. The high specification bathrooms are of Italian design. The fully fitted modern kitchen features quartz worktops and ample cupboard and plenty of room for a dining table
This executive apartment is set behind security gates with CCTV and comes with allocated parking and access to the beautifully maintained 18 acres of landscaped communal grounds which include lawned areas and woodland pathways.
With its prime location, this property is perfect for those seeking a peaceful retreat while still being within easy reach of nearby amenities and transport links. Four Ashes is an area renowned for its natural beauty, with stunning countryside views and an abundance of outdoor activities to enjoy. Hughenden Valley is close by, where a visit to the historic National Trust's Hughenden Manor is a must see.
With its scenic surroundings and plethora of leisure activities, High Wycombe provides the perfect balance between rural living and modern conveniences. The property benefits from excellent transport links, with easy access to the M40 motorway, providing direct links to London and Oxford.
Featuring breathtaking views of the landscaped gardens and surrounding countryside from all rooms in the apartment, this distinctive two-bedroom residence offers an ideal setting to embrace the beauty of nature and its serene surroundings.
Brochures
Brochure of Flat 12 Uplands House- COUNCIL TAXA payment made to your local authority in order to pay for local services like schools, libraries, and refuse collection. The amount you pay depends on the value of the property.Read more about council Tax in our glossary page.
- Band: C
- PARKINGDetails of how and where vehicles can be parked, and any associated costs.Read more about parking in our glossary page.
- Yes
- GARDENA property has access to an outdoor space, which could be private or shared.
- Yes
- ACCESSIBILITYHow a property has been adapted to meet the needs of vulnerable or disabled individuals.Read more about accessibility in our glossary page.
- Ask agent
Uplands House, Four Ashes Road, Cryers Hill, HP15 6DY
Add an important place to see how long it'd take to get there from our property listings.
__mins driving to your place
Get an instant, personalised result:
- Show sellers you’re serious
- Secure viewings faster with agents
- No impact on your credit score
Affordability
Notes
Staying secure when looking for property
Ensure you're up to date with our latest advice on how to avoid fraud or scams when looking for property online.
Visit our security centre to find out moreDisclaimer - Property reference KHW-71624222. The information displayed about this property comprises a property advertisement. Rightmove.co.uk makes no warranty as to the accuracy or completeness of the advertisement or any linked or associated information, and Rightmove has no control over the content. This property advertisement does not constitute property particulars. The information is provided and maintained by Kingshills Estate Agents, South Buckinghamshire. Please contact the selling agent or developer directly to obtain any information which may be available under the terms of The Energy Performance of Buildings (Certificates and Inspections) (England and Wales) Regulations 2007 or the Home Report if in relation to a residential property in Scotland.
*This is the average speed from the provider with the fastest broadband package available at this postcode. The average speed displayed is based on the download speeds of at least 50% of customers at peak time (8pm to 10pm). Fibre/cable services at the postcode are subject to availability and may differ between properties within a postcode. Speeds can be affected by a range of technical and environmental factors. The speed at the property may be lower than that listed above. You can check the estimated speed and confirm availability to a property prior to purchasing on the broadband provider's website. Providers may increase charges. The information is provided and maintained by Decision Technologies Limited. **This is indicative only and based on a 2-person household with multiple devices and simultaneous usage. Broadband performance is affected by multiple factors including number of occupants and devices, simultaneous usage, router range etc. For more information speak to your broadband provider.
Map data ©OpenStreetMap contributors.





