Torre, Torquay
- PROPERTY TYPE
Commercial Property
- SIZE
Ask agent
Key features
- Approved scheme of six self-contained apartments
- Vacant
- Former public house within Torquay town centre
- Town-centre location
- Less than a mile to Torquay seafront, harbour, marina & beaches
Description
The Approval:
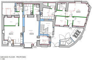
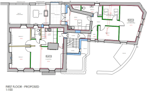
The approval provides change of use to convert the existing vacant building into a residential scheme comprising six self-contained apartments with communal space, including bins and bike storage.
3 x two bedroom apartments (one with terrace)
3 x one bedroom apartments (one with terrace)
This is a car free scheme due to its central location. On-street car parking available, plus a public car park (63 spaces)
Tenure. Freehold
The Current Site:
A prominent former three storey public house, well located within Torquay town centre.
Site Area:
The existing building has a total floor area of 422m² set on a site area of 281m².
Vacant
The site has largely been cleared ready for development
Previously a pub with ancillary flats on the upper floors, the ground floor has been cleared of pub equipment.
The proposed use of all properties will be residential (Class C3).
The Location:
The site is located in in a very accessible location, less than 300m from Torquay’s town centre.
Coastal Setting:
Located approx. 10 minutes within walking distance of Torquay seafront, harbour, marina and beaches.
Local Amenities:
Shopping:
Torquay town centre retail within walking distance.
Eating & Drinking:
Wide range of cafés, restaurants and leisure uses nearby.
Transport Links:
Train Station:
Torquay railway station provides regional and national connections (London in 3 hours, 6 minutes)
Bus & Road:
Good access to local bus routes and the A380 linking Torquay with Exeter and the M5.
Viewings:
Strictly by appointment only
Additional Documents Available Upon Request:
Brochure
Approval & Conditions
GDV
Local Comparables
Design & Access Statement
Planning Statement
Heritage Statement
For Planning documents and further information contact the land team
Torre, Torquay
NEAREST STATIONS
Distances are straight line measurements from the centre of the postcode- Torre Station0.5 miles
- Torquay Station0.7 miles
- Paignton Station2.7 miles
Notes
Disclaimer - Property reference 7472992f-9432-4b52-9f16-8d2aea27576c. The information displayed about this property comprises a property advertisement. Rightmove.co.uk makes no warranty as to the accuracy or completeness of the advertisement or any linked or associated information, and Rightmove has no control over the content. This property advertisement does not constitute property particulars. The information is provided and maintained by Allen Heritage, Shirley. Please contact the selling agent or developer directly to obtain any information which may be available under the terms of The Energy Performance of Buildings (Certificates and Inspections) (England and Wales) Regulations 2007 or the Home Report if in relation to a residential property in Scotland.
Map data ©OpenStreetMap contributors.









