
The Lawns, Nork Way, Banstead, SM7

- PROPERTY TYPE
Detached
- BEDROOMS
4
- BATHROOMS
3
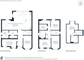
- SIZE
2,416 sq ft
224 sq m
- TENUREDescribes how you own a property. There are different types of tenure - freehold, leasehold, and commonhold.Read more about tenure in our glossary page.
Freehold
Key features
- Two Brand New Detached Homes
- Bespoke Kitchens by Krieder with Quooker Tap
- Open Plan Kitchen / Dining / Living Room
- Separate Sitting Room with Separate Study
- Utility Room & Boot Room
- Principal Bedroom with En-Suite & Walk-in Wardrobe
- High Specification Bathrooms with Porcelanosa Wall & Floor Tiling
- Sliding Doors onto Patio & Landscaped Garden
- Underfloor Heating Throughout the Ground Floor
- Parking with EV Charging Point
Description
On the first floor, the principal bedroom benefits from a dressing room and an en-suite shower room, two further bedrooms are served by a family bathroom. The fourth bedroom occupies the entire top floor, with its own en-suite shower room and space for a dedicated dressing area. The homes have been tastefully and thoughtfully designed with light and space in mind and are finished to a high-quality specification.
Outside
A wall of sliding doors from the living room open onto a full width patio - ideal for alfresco dining and outdoor entertaining - while steps lead up to a generous lawned garden. There's parking at the front for several cars and an EV-charging point.
Situation
The house is located in the middle of Nork Way which joins Banstead to Reigate Road. The open spaces of Nork Park are within easy reach, as is nearby Banstead train station which offers routes into London Bridge and Victoria (from 47 minutes). Popular Warren Mead Infant and Junior School is also very near by and there are several shops and restaurants conveniently located at the top of the road.
Property Ref Number:
HAM-63835Additional Information
10 Year Buildzone Warranty
Freehold
Estate Charges: TBC
Brochures
Brochure- COUNCIL TAXA payment made to your local authority in order to pay for local services like schools, libraries, and refuse collection. The amount you pay depends on the value of the property.Read more about council Tax in our glossary page.
- Ask agent
- PARKINGDetails of how and where vehicles can be parked, and any associated costs.Read more about parking in our glossary page.
- Off street
- GARDENA property has access to an outdoor space, which could be private or shared.
- Private garden,Patio
- ACCESSIBILITYHow a property has been adapted to meet the needs of vulnerable or disabled individuals.Read more about accessibility in our glossary page.
- Ask agent
Energy performance certificate - ask agent
The Lawns, Nork Way, Banstead, SM7
Add an important place to see how long it'd take to get there from our property listings.
__mins driving to your place
Get an instant, personalised result:
- Show sellers you’re serious
- Secure viewings faster with agents
- No impact on your credit score
Affordability
Notes
Staying secure when looking for property
Ensure you're up to date with our latest advice on how to avoid fraud or scams when looking for property online.
Visit our security centre to find out moreDisclaimer - Property reference a1nQ500000aQiK1IAK. The information displayed about this property comprises a property advertisement. Rightmove.co.uk makes no warranty as to the accuracy or completeness of the advertisement or any linked or associated information, and Rightmove has no control over the content. This property advertisement does not constitute property particulars. The information is provided and maintained by Hamptons, Epsom & Banstead. Please contact the selling agent or developer directly to obtain any information which may be available under the terms of The Energy Performance of Buildings (Certificates and Inspections) (England and Wales) Regulations 2007 or the Home Report if in relation to a residential property in Scotland.
*This is the average speed from the provider with the fastest broadband package available at this postcode. The average speed displayed is based on the download speeds of at least 50% of customers at peak time (8pm to 10pm). Fibre/cable services at the postcode are subject to availability and may differ between properties within a postcode. Speeds can be affected by a range of technical and environmental factors. The speed at the property may be lower than that listed above. You can check the estimated speed and confirm availability to a property prior to purchasing on the broadband provider's website. Providers may increase charges. The information is provided and maintained by Decision Technologies Limited. **This is indicative only and based on a 2-person household with multiple devices and simultaneous usage. Broadband performance is affected by multiple factors including number of occupants and devices, simultaneous usage, router range etc. For more information speak to your broadband provider.
Map data ©OpenStreetMap contributors.








