Mark Mansions, Westville Road, London, W12

- PROPERTY TYPE
Flat
- BEDROOMS
2
- BATHROOMS
1
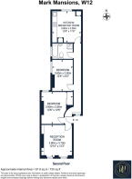
- SIZE
730 sq ft
68 sq m
Key features
- Beautiful red brick mansion block in a quiet residential street
- Two bright double bedrooms with a well-balanced layout
- Spacious reception room with period character
- Modern kitchen with space for a breakfast table
- Access to a huge communal garden – a rare London bonus
- Share of freehold | 730 sq ft | £550,000
Description
This is a really lovely two-bedroom flat in Mark Mansions on Westville Road (W12), set within a beautiful red brick mansion block. The building itself has loads of character from the outside, and the flat sits on the second floor, so it’s nice and bright.
Inside, the layout is really straightforward and works well. At the front there’s a good-sized living room with plenty of space for a sofa, desk or shelving, and it feels like a really comfortable room to spend time in.
There are two double bedrooms, both decent sizes and filled with natural light. One of them is particularly spacious and could easily fit wardrobes and extra storage, while the other works well as a guest room, office, or second bedroom.
Towards the back of the flat there’s a modern kitchen with space for a breakfast table, which is a nice touch. It’s the kind of room where you can actually sit down and eat rather than just cook and leave. The bathroom is also well set up with both a bath and a separate shower, which is surprisingly handy.
One of the best things about the building though is the huge communal garden at the back. It’s much bigger than you’d expect in London, with loads of green space and trees, so it feels really peaceful.
The flat is about 730 sq ft, comes with a share of freehold, and is on the market for £550,000.
Overall it’s a really nice flat in a classic mansion block, with good space, plenty of light, and that amazing garden which is quite rare to find.
- COUNCIL TAXA payment made to your local authority in order to pay for local services like schools, libraries, and refuse collection. The amount you pay depends on the value of the property.Read more about council Tax in our glossary page.
- Band: D
- PARKINGDetails of how and where vehicles can be parked, and any associated costs.Read more about parking in our glossary page.
- Permit
- GARDENA property has access to an outdoor space, which could be private or shared.
- Private garden,Communal garden
- ACCESSIBILITYHow a property has been adapted to meet the needs of vulnerable or disabled individuals.Read more about accessibility in our glossary page.
- No wheelchair access
Mark Mansions, Westville Road, London, W12
Add an important place to see how long it'd take to get there from our property listings.
__mins driving to your place
Get an instant, personalised result:
- Show sellers you’re serious
- Secure viewings faster with agents
- No impact on your credit score
Affordability
Notes
Staying secure when looking for property
Ensure you're up to date with our latest advice on how to avoid fraud or scams when looking for property online.
Visit our security centre to find out moreDisclaimer - Property reference S1658131. The information displayed about this property comprises a property advertisement. Rightmove.co.uk makes no warranty as to the accuracy or completeness of the advertisement or any linked or associated information, and Rightmove has no control over the content. This property advertisement does not constitute property particulars. The information is provided and maintained by OHRE, London. Please contact the selling agent or developer directly to obtain any information which may be available under the terms of The Energy Performance of Buildings (Certificates and Inspections) (England and Wales) Regulations 2007 or the Home Report if in relation to a residential property in Scotland.
*This is the average speed from the provider with the fastest broadband package available at this postcode. The average speed displayed is based on the download speeds of at least 50% of customers at peak time (8pm to 10pm). Fibre/cable services at the postcode are subject to availability and may differ between properties within a postcode. Speeds can be affected by a range of technical and environmental factors. The speed at the property may be lower than that listed above. You can check the estimated speed and confirm availability to a property prior to purchasing on the broadband provider's website. Providers may increase charges. The information is provided and maintained by Decision Technologies Limited. **This is indicative only and based on a 2-person household with multiple devices and simultaneous usage. Broadband performance is affected by multiple factors including number of occupants and devices, simultaneous usage, router range etc. For more information speak to your broadband provider.
Map data ©OpenStreetMap contributors.




