
Highfield House, Carlton Road, Worksop, Nottinghamshire S81 7HP

- PROPERTY TYPE
Detached
- BEDROOMS
7
- BATHROOMS
4
- SIZE
Ask agent
- TENUREDescribes how you own a property. There are different types of tenure - freehold, leasehold, and commonhold.Read more about tenure in our glossary page.
Freehold
Description
Auction Date Commencing on Monday 13th April 2026 at 1pm and ending 24 hours later on Tuesday 14th April 2026 at 1pm with Auction House Notts and Derby
Please register to bid via our website - auctionhouse.co.uk/nottsandderby
Stunning Victorian mansion with approved planning!
Open House Viewing
Thursday 9th April 10-11am (no need to book)
We are proud to present this beautiful property to our auction. Highfield house was built in the mid-19th Century, and a number of its wonderful original features still remain. Extensive work and renovation would be required but this still presents a fantastic opportunity for an investor or developer. As you approach the property there is a large sweeping driveway taking you up to it where you a greeted by a grand entrance door between two stone pillars.
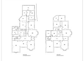
The property is currently registered as a commercial premises however there is planning permission to transform the house into two separate semi-detached dwellings, a four-bed and three-bed. The proposed floor plans for this can be viewed within the listing. The above is optional and you could still choose to renovate the property as one home, as it was originally intended in the 1850's.
It has a huge amount of space within the property, allowing for a wide range of design inside. The expansive space also provides the opportunity for multiple en-suite bathrooms. The cellar spans the entirety of the property below and has an estimated depth of around 7ft, so this space could also be put to use.
The house is located in Worksop, around one mile from the town centre. Nearby Sheffield can easily be accessed as the M1 is around 10–15-minute drive away.
Pre auction offers will be considered but the sale must complete on auction terms regardless.
Planning reference - APP/A3010/W/24/3347925 (Bassetlaw Council)
Tenure: Freehold
EPC Rating: D
Administration Fee: £3600 inc VAT payable on exchange of contracts.
Disbursements: Please see the legal pack for any disbursements listed that may become payable by the purchaser on completion.
- COUNCIL TAXA payment made to your local authority in order to pay for local services like schools, libraries, and refuse collection. The amount you pay depends on the value of the property.Read more about council Tax in our glossary page.
- Ask agent
- PARKINGDetails of how and where vehicles can be parked, and any associated costs.Read more about parking in our glossary page.
- Yes
- GARDENA property has access to an outdoor space, which could be private or shared.
- Ask agent
- ACCESSIBILITYHow a property has been adapted to meet the needs of vulnerable or disabled individuals.Read more about accessibility in our glossary page.
- Ask agent
Energy performance certificate - ask agent
Highfield House, Carlton Road, Worksop, Nottinghamshire S81 7HP
Add an important place to see how long it'd take to get there from our property listings.
__mins driving to your place
Get an instant, personalised result:
- Show sellers you’re serious
- Secure viewings faster with agents
- No impact on your credit score
Affordability
Notes
Staying secure when looking for property
Ensure you're up to date with our latest advice on how to avoid fraud or scams when looking for property online.
Visit our security centre to find out moreDisclaimer - Property reference 202603171336sq_cc7b. The information displayed about this property comprises a property advertisement. Rightmove.co.uk makes no warranty as to the accuracy or completeness of the advertisement or any linked or associated information, and Rightmove has no control over the content. This property advertisement does not constitute property particulars. The information is provided and maintained by Auction House, Covering Notts & Derby. Please contact the selling agent or developer directly to obtain any information which may be available under the terms of The Energy Performance of Buildings (Certificates and Inspections) (England and Wales) Regulations 2007 or the Home Report if in relation to a residential property in Scotland.
Auction Fees: The purchase of this property may include associated fees not listed here, as it is to be sold via auction. To find out more about the fees associated with this property please call Auction House, Covering Notts & Derby on 0115 647 1752.
*Guide Price: An indication of a seller's minimum expectation at auction and given as a Guide Price or a range of Guide Prices. This is not necessarily the figure a property will sell for and is subject to change prior to the auction.
Reserve Price: Each auction property will be subject to a Reserve Price below which the property cannot be sold at auction. Normally the Reserve Price will be set within the range of Guide Prices or no more than 10% above a single Guide Price.
*This is the average speed from the provider with the fastest broadband package available at this postcode. The average speed displayed is based on the download speeds of at least 50% of customers at peak time (8pm to 10pm). Fibre/cable services at the postcode are subject to availability and may differ between properties within a postcode. Speeds can be affected by a range of technical and environmental factors. The speed at the property may be lower than that listed above. You can check the estimated speed and confirm availability to a property prior to purchasing on the broadband provider's website. Providers may increase charges. The information is provided and maintained by Decision Technologies Limited. **This is indicative only and based on a 2-person household with multiple devices and simultaneous usage. Broadband performance is affected by multiple factors including number of occupants and devices, simultaneous usage, router range etc. For more information speak to your broadband provider.
Map data ©OpenStreetMap contributors.






