Beautifully crafted detached barn conversion, Helston

- PROPERTY TYPE
Barn Conversion
- BEDROOMS
4
- BATHROOMS
2
- SIZE
Ask agent
- TENUREDescribes how you own a property. There are different types of tenure - freehold, leasehold, and commonhold.Read more about tenure in our glossary page.
Freehold
Key features
- Exceptional four-bedroom detached barn conversion
- Immaculate design throughout
- Built by a highly regarded local Cornish builder
- Stunning open-plan lounge, kitchen & dining space
- Vaulted ceilings and exposed stone character features
- Low maintenance wrap around gardens
- Beautiful countryside views in a peaceful rural setting
- Ample private parking
- Just minutes from Helston & within easy reach of Porthleven
- EPC - TBC. Council tax - TBC. Freehold tenure.
Description
Positioned within a quiet rural enclave just outside Helston, Jackdaw is an exceptional four-bedroom detached barn conversion, recently completed by a highly regarded local builder and finished to an impeccable standard throughout. Set against a backdrop of open countryside, the property enjoys a wonderful sense of privacy and calm, while remaining conveniently close to the amenities of Helston and within easy reach of the harbourside charm of Porthleven and the Cornish coastline beyond.
The property
At the heart of the home lies an impressive open-plan lounge, kitchen and dining room, a beautifully unified space designed for both everyday living and entertaining. Vaulted ceilings enhance the sense of scale and architectural presence, while exposed stone detailing introduces warmth and texture, grounding the contemporary finish in the building’s heritage.
The kitchen forms a natural focal point within the space, seamlessly connected to the dining and lounge areas to create a sociable yet refined environment. Whether hosting gatherings or enjoying quieter moments, the layout allows for effortless flow while maintaining clearly defined areas for cooking, dining and relaxation. Generous glazing draws in natural light and frames the surrounding countryside, reinforcing the home’s connection to its rural setting.
The property offers four well-proportioned bedrooms, thoughtfully arranged to provide flexibility for family life, guest accommodation or home working. The principal bedroom serves as a peaceful retreat, positioned to enjoy the tranquil outlook and finished to the same exacting standards found throughout the home.
Every element of the conversion reflects quality craftsmanship and careful consideration, resulting in a residence that feels cohesive, elegant and enduring.
Externally, low-maintenance gardens wrap around the property, creating usable outdoor space without the demands of extensive upkeep. The grounds provide ideal areas for al fresco dining, entertaining or simply enjoying the surrounding countryside. Ample parking further enhances practicality, ensuring the home functions as seamlessly as it presents.
Jackdaw offers the rare opportunity to enjoy rural tranquillity without isolation. Helston provides a comprehensive range of day-to-day amenities, while nearby Porthleven offers a vibrant harbourside atmosphere with renowned restaurants, coastal walks and access to some of Cornwall’s most beautiful scenery.
Equally suited as a distinguished primary residence or an elegant Cornish retreat, the property combines architectural integrity with modern refinement in a setting that feels both private and connected. For buyers seeking quality craftsmanship, timeless character and a peaceful countryside environment within easy reach of the coast, Jackdaw represents a compelling and enduring lifestyle investment.
Thoughtfully designed to honour its agricultural heritage while embracing modern luxury, the barn combines exposed stonework, vaulted ceilings and generous glazing to create light-filled interiors that feel both characterful and contemporary. The result is a home of understated elegance, perfectly suited to modern country living.
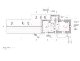
Dimensions
Entrance Hall – 6'10" x 4'7" (2.08m x 1.40m)
Kitchen – 20'4" x 12'2" (6.20m x 3.71m)
Living Room – 25'2" x 12'7" max (7.67m x 3.84m max)
Utility – 6'11" x 6'5" (2.11m x 1.96m)
Rear Lobby – 31'9" x 3'7" (9.68m x 1.09m)
Bedroom 3 – 11'8" x 11'6" max (3.56m x 3.51m max)
Bedroom 4 – 7'8" x 6'2" max (2.34m x 1.88m max)
Bathroom – 7'3" x 6'5" (2.21m x 1.96m)
Bedroom 1 – 12'3" x 11'6" (3.73m x 3.51m)
Bedroom 2 – 13'4" x 11'3" (4.06m x 3.43m)
Bathroom – 9'2" x 5'7" (2.79m x 1.70m)
Services
Mains water and electricity. Private drainage. Air source heat pump.
Freehold tenure.
Council Tax – TBC.
EPC – TBC.
Location
Wendron is a sought-after rural parish positioned just outside Helston, offering rolling countryside, scenic walking routes and a strong sense of community. Helston itself provides schooling, independent shops, supermarkets and leisure facilities, while the nearby coastline, including Porthleven and the Lizard Peninsula, offers dramatic scenery, beaches and waterside dining. The area benefits from good road links connecting to the wider Cornish region, making it both peaceful and well placed.
Cornwall
Cornwall, on England’s southwestern coast, is a region of breathtaking natural beauty, famed for its dramatic cliffs, golden beaches, and turquoise waters. Its coastline stretches for over 400 miles, offering everything from world-class surfing at Fistral Beach in Newquay to peaceful, picturesque coves like Kynance and Porthcurno. Beyond the beaches, Cornwall is rich in heritage and charm, with historic fishing villages such as St Ives and Padstow, the iconic St Michael’s Mount, and attractions like the Eden Project. Despite its coastal seclusion, Cornwall is well connected via the A30 trunk road, regular mainline train services to London, and flights from Newquay Airport, making it both a sought-after destination and a practical place to call home.
What 3 words
///goodnight.allow.forge
General information
To view the "Key facts for buyers" report/material information, please see the link titled "Material information".
Important information
Every effort has been made with these details, but accuracy is not guaranteed and they are not to form part of a contract. Representation or warranty is not given in relation to this property. An Energy Performance Certificate is available upon request. The electrical circuit, appliances and heating system have not been tested by the agents. All negotiations must be with Fine & Country Mid-West Cornwall. Before proceeding to purchase, buyers should consider an independent check of all aspects of the property. Further information on mobile coverage and broadband availability is found on ofcom and openreach ‘checker’ websites. Visit the Gov.uk website to ‘check long term flood risks. General Data Protection Regulations: We treat all data confidentially and with the utmost care and respect. If you do not wish your personal details to be used by us for any specific purpose, then you can unsubscribe or change your communication preferences and contact methods at any time by informing us either by email or in writing at our office in St Mawes.
Viewing strictly by appointment with Fine & Country Mid-West Cornwall.
- COUNCIL TAXA payment made to your local authority in order to pay for local services like schools, libraries, and refuse collection. The amount you pay depends on the value of the property.Read more about council Tax in our glossary page.
- Ask agent
- PARKINGDetails of how and where vehicles can be parked, and any associated costs.Read more about parking in our glossary page.
- Off street
- GARDENA property has access to an outdoor space, which could be private or shared.
- Yes
- ACCESSIBILITYHow a property has been adapted to meet the needs of vulnerable or disabled individuals.Read more about accessibility in our glossary page.
- Ask agent
Energy performance certificate - ask agent
Beautifully crafted detached barn conversion, Helston
Add an important place to see how long it'd take to get there from our property listings.
__mins driving to your place
Get an instant, personalised result:
- Show sellers you’re serious
- Secure viewings faster with agents
- No impact on your credit score
Affordability
Notes
Staying secure when looking for property
Ensure you're up to date with our latest advice on how to avoid fraud or scams when looking for property online.
Visit our security centre to find out moreDisclaimer - Property reference RX707396. The information displayed about this property comprises a property advertisement. Rightmove.co.uk makes no warranty as to the accuracy or completeness of the advertisement or any linked or associated information, and Rightmove has no control over the content. This property advertisement does not constitute property particulars. The information is provided and maintained by Fine & Country, Mid West Cornwall. Please contact the selling agent or developer directly to obtain any information which may be available under the terms of The Energy Performance of Buildings (Certificates and Inspections) (England and Wales) Regulations 2007 or the Home Report if in relation to a residential property in Scotland.
*This is the average speed from the provider with the fastest broadband package available at this postcode. The average speed displayed is based on the download speeds of at least 50% of customers at peak time (8pm to 10pm). Fibre/cable services at the postcode are subject to availability and may differ between properties within a postcode. Speeds can be affected by a range of technical and environmental factors. The speed at the property may be lower than that listed above. You can check the estimated speed and confirm availability to a property prior to purchasing on the broadband provider's website. Providers may increase charges. The information is provided and maintained by Decision Technologies Limited. **This is indicative only and based on a 2-person household with multiple devices and simultaneous usage. Broadband performance is affected by multiple factors including number of occupants and devices, simultaneous usage, router range etc. For more information speak to your broadband provider.
Map data ©OpenStreetMap contributors.





