Oporto, Oporto, Portugal
- PROPERTY TYPE
Warehouse
- SIZE
10,689 sq ft
993 sq m
Description
Property located on Rua do Tenente Valadim, in Porto, situated in a well-established urban area with clear appreciation potential. It is just a 3-minute walk from the Francos Metro Station, while also benefiting from excellent road access.
The surrounding area is primarily residential, reinforced by the proximity to the recently developed Porto Office Park (POP), significantly boosting demand for housing and services. Additionally, ongoing development of large-scale office and coworking projects in the vicinity further consolidates the area’s attractiveness for medium- and long-term real estate investment.
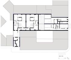
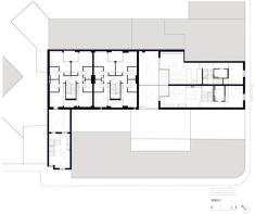
General Features of the Existing Building
Comprises a two-storey administrative building facing Rua do Tenente Valadim, a two-storey industrial warehouse within the plot, and a garage entrance from Rua do Sargento Abílio. The construction has two frontages, enhancing the project’s value and expanding access and distribution options.
The building currently requires major rehabilitation works.
Existing Area: Approx. 900 m²
Plot Area / Footprint: 517 m²
General Features of the Approved Project
The approved project foresees a change of use, modification, and expansion of the existing building, with a permit for six independent units, distributed between residential and service uses – including short-term rental units (Alojamento Local) – allowing a mixed exploitation strategy (sale or rental), tailored to the current dynamics of the Porto market.
Total Approved Construction Area: 1,073 m²
Gross Construction Area: 993 m²
Footprint Area: 427 m²
Unit Details:
Unit A: Three-storey T4 house with garage, courtyard, balconies, and terraces, with the possibility of closing part of the house as a T1 for rental. 216 m² Gross Private Area.
Unit B: T1+1 apartment with courtyard. 84 m² Gross Private Area.
Unit C: Duplex T3 apartment with balconies and terraces. 151 m² Gross Private Area.
Unit D: Duplex T1 apartment. 82 m² Gross Private Area.
Unit E: Short-term rental service unit with 6 en-suite bedrooms. 195 m² Gross Private Area + Attic.
Unit F: Short-term rental service unit with 6 en-suite bedrooms. 195 m² Gross Private Area + Attic.
This property is aimed at real estate investors and developers seeking a project with reduced risk, accelerated execution and revenue timelines, and high appreciation potential in one of the city’s most sought-after areas.
It also benefits from tax incentives for rehabilitation, making this investment even more attractive.
It is equally ideal for those looking for a building to rehabilitate for services, industry, or warehousing, maintaining its original and current function, while taking advantage of a strategic location with proximity to the metro and good road access. The functional vocation of the area, combined with recent nearby real estate projects under development, consistently reinforces the property’s appreciation potential and suitability for business and logistics uses.
Distances to Key Points:
Located at the entrance to Porto, just a few meters from the Rotunda de Francos and with access to VCI and A28.
Francos Metro Station – 3-minute walk
Porto Office Park – 1-minute walk
Rotunda da Boavista – 12-minute walk
Rua da Boavista – 8-minute walk
Campus of Campo Alegre Faculties – 20-minute walk
Porto City Centre (Aliados) – 15 minutes by car
Airport – 10 minutes by car
For more information, consultation of the approved project, or to schedule a visit, please contact us and discover how to turn this asset into a solid and profitable investment opportunity.
#ref: 159417
Oporto, Oporto, Portugal
NEAREST AIRPORTS
Distances are straight line measurements- Porto(International)6.0 miles
Advice on buying Portuguese property
Learn everything you need to know to successfully find and buy a property in Portugal.
Notes
This is a property advertisement provided and maintained by IAD, Porto (reference 159417) and does not constitute property particulars. Whilst we require advertisers to act with best practice and provide accurate information, we can only publish advertisements in good faith and have not verified any claims or statements or inspected any of the properties, locations or opportunities promoted. Rightmove does not own or control and is not responsible for the properties, opportunities, website content, products or services provided or promoted by third parties and makes no warranties or representations as to the accuracy, completeness, legality, performance or suitability of any of the foregoing. We therefore accept no liability arising from any reliance made by any reader or person to whom this information is made available to. You must perform your own research and seek independent professional advice before making any decision to purchase or invest in overseas property.





