
Development Project, New House Farm, Westcott Lane, Cheswardine
- PROPERTY TYPE
Plot
- SIZE
Ask agent
Key features
- Development opportunity
- Planning approved
- Two attractive detached houses
- Popular village location
- Views across open countryside
- Planning Ref: 25/04098/REM
Description
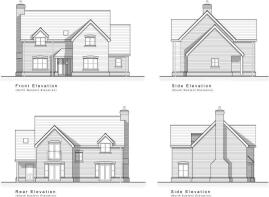
Planning consent has been granted for two fabulous detached properties both of which have been thoughtfully designed to suit their pretty village environment and to take advantage of the open views to the rear.
Plot 1
An eye catching four bedroom detached home with single detached garage and driveway. House 1734 sq. ft | Garage 249 sq. ft | Total 1983 sq. ft
Plot 2
A traditional cottage style home with four bedrooms, detached double garage and driveway. House 1669 sq. ft | Garage 359 sq. ft | Total 2028 sq. ft
Services: Mains drainage, water and electric (not connected)
CIL Liability: £12,755.71 (Responsibility of the incoming purchaser)
Planning Ref: 25/04098/REM
Planning: Prospective purchasers are advised that they should make their own enquiries of Shropshire Council.
Wayleaves and easements: The project will be sold subject to and with the benefit of all wayleaves, easements and rights of way, whether mentioned in these particulars or not.
Agents notes: Viewings strictly by appointment
The detached double width garage in-between Plot 2 and the existing farm house, is being retained by our clients and is not part of the land transaction.
Location
Cheswardine is a pretty rural village nestled amongst the beautiful North Shropshire countryside and lies close to the Staffordshire border. The village has a great local community and boasts a well-regarded primary school, two popular public houses, as well as an active village hall and parish church both of which host several events throughout the year.
Cheswardine conveniently sits between the bustling towns of Newport and Market Drayton which offer an abundance of excellent independent shops and cafes as well as supermarkets.
The A518 and A53 links the M6 and M54 national motorway networks ideal for commuting to regional business centres such as Stoke on Trent, Stafford, Birmingham and Wolverhampton. For frequent air travelers the road networks give access to Birmingham International, Manchester and Liverpool.
Distances
• Market Drayton 5 miles
• Newport 8 miles
• Stafford 15 miles
• Telford 17 miles
• Shrewsbury 22 miles
• Chester 37 miles
Nearby Stations
• Stafford
• Telford
• Shrewsbury
Key Locations
• Hodnet Hall Gardens
• Newport Canal Town Lock and Bridge
• Trentham Gardens
• Chester Zoo
• Wollerton Old Hall Gardens
• Fordhall Organic Farm
• Hawkstone Follies
• Emma Bridgewater Factor
Nearby Schools
• Cheswardine Primary & Nursery
• Adams Grammar
• Castle House
• Newport High School
• Wrekin College
• The Old Hall School
• Shrewsbury School
• Shrewsbury High School
• Ellesmere College
Brochures
Web DetailsParticularsDevelopment Project, New House Farm, Westcott Lane, Cheswardine
NEAREST STATIONS
Distances are straight line measurements from the centre of the postcode- Stone Station11.4 miles
Notes
Disclaimer - Property reference WMH230034. The information displayed about this property comprises a property advertisement. Rightmove.co.uk makes no warranty as to the accuracy or completeness of the advertisement or any linked or associated information, and Rightmove has no control over the content. This property advertisement does not constitute property particulars. The information is provided and maintained by Strutt & Parker, Covering West Midlands New Homes. Please contact the selling agent or developer directly to obtain any information which may be available under the terms of The Energy Performance of Buildings (Certificates and Inspections) (England and Wales) Regulations 2007 or the Home Report if in relation to a residential property in Scotland.
Map data ©OpenStreetMap contributors.







