
Four Winds Court, West Park, Hartlepool

- PROPERTY TYPE
Maisonette
- BEDROOMS
2
- BATHROOMS
1
- SIZE
Ask agent
Key features
- Impressive Maisonette
- Two Bedrooms (Both With Fitted Wardrobes)
- Gas Central Heating
- uPVC Double Glazing
- Recently Replaced Kitchen & Bathroom
- Generous Open Plan Lounge/Dining Room
- Balcony
- Garage
- Attractive & Well Maintained Communal Gardens
- Gated Security & Telecom Entry
Description
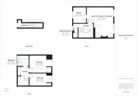
Ground Floor -
Entrance - Accessed via double glazed entrance door, hardwood framed window, cloaks recess, single radiator, stairs to apartment.
First Floor -
Landing - Spindle staircase to the second floor, single radiator, access to:
Guest Cloakroom / Wc - 0.86m x 2.69m (2'10 x 8'10) - Fitted with a two piece suite comprising: wash hand basin, low level WC, tiling to splashback, uPVC double glazed window, single radiator.
Open Plan Lounge/Dining Area - 4.95m x 5.69m (16'3 x 18'8) - A generous open plan lounge/dining room enjoying a good degree of natural light with uPVC double glazed window and additional uPVC double glazed sliding patio doors to a delightful sun balcony with views across the communal gardens, fitted with a two double radiators, access to:
Kitchen - 2.39m x 2.92m (7'10 x 9'7) - Fitted with a range of modern 'shaker' style wall, base and drawer units with complementing roll-top work surfaces incorporating an inset sink and drainer, built-in electric oven with hob above and illuminating extractor, recess for free standing fridge/freezer, recess with plumbing for washing machine, uPVC double glazed window.
Second Floor -
Landing - Generous storage cupboard with sliding doors and fitted shelving.
Bedroom - 3.15m x 3.25m (10'4 x 10'8) - A good sized master bedroom which benefits from sliding wardrobes, uPVC double glazed 'dormer' style window, fitted carpet, single radiator.
Bedroom - 4.04m x 2.39m (13'3 x 7'10) - Fitted wardrobes, uPVC double glazed 'dormer' style window, fitted carpet, single radiator.
Family Bathroom/Wc - 1.98m x 2.06m (6'6 x 6'9) - Refitted with a beautiful three piece white suite and chrome fittings comprising: panelled bath electric shower over and glass shower screen, modern wall mounted wash hand basin with vanity storage and low level WC; attractive tiling to walls and flooring, heated towel radiator.
Sun Balcony - Accessed via the lounge with beautiful views of the communal gardens below.
Externally - The apartment benefits from a GARAGE and parking separate to the property.
Nb 1 - The property is of leasehold tenure and has a yearly maintenance charge.
Nb 2 - Floorplans and title plans are for illustrative purposes only. All measurements, walls, doors, window fittings and appliances, their sizes and locations, are approximate only. They cannot be regarded as being a representation by the seller, nor their agent.
Brochures
Four Winds Court, West Park, HartlepoolBrochure- COUNCIL TAXA payment made to your local authority in order to pay for local services like schools, libraries, and refuse collection. The amount you pay depends on the value of the property.Read more about council Tax in our glossary page.
- Band: D
- PARKINGDetails of how and where vehicles can be parked, and any associated costs.Read more about parking in our glossary page.
- Garage
- GARDENA property has access to an outdoor space, which could be private or shared.
- Ask agent
- ACCESSIBILITYHow a property has been adapted to meet the needs of vulnerable or disabled individuals.Read more about accessibility in our glossary page.
- Ask agent
Energy performance certificate - ask agent
Four Winds Court, West Park, Hartlepool
Add an important place to see how long it'd take to get there from our property listings.
__mins driving to your place
Get an instant, personalised result:
- Show sellers you’re serious
- Secure viewings faster with agents
- No impact on your credit score


Affordability
Notes
Staying secure when looking for property
Ensure you're up to date with our latest advice on how to avoid fraud or scams when looking for property online.
Visit our security centre to find out moreDisclaimer - Property reference 34544236. The information displayed about this property comprises a property advertisement. Rightmove.co.uk makes no warranty as to the accuracy or completeness of the advertisement or any linked or associated information, and Rightmove has no control over the content. This property advertisement does not constitute property particulars. The information is provided and maintained by Smith & Friends Estate Agents, Hartlepool. Please contact the selling agent or developer directly to obtain any information which may be available under the terms of The Energy Performance of Buildings (Certificates and Inspections) (England and Wales) Regulations 2007 or the Home Report if in relation to a residential property in Scotland.
*This is the average speed from the provider with the fastest broadband package available at this postcode. The average speed displayed is based on the download speeds of at least 50% of customers at peak time (8pm to 10pm). Fibre/cable services at the postcode are subject to availability and may differ between properties within a postcode. Speeds can be affected by a range of technical and environmental factors. The speed at the property may be lower than that listed above. You can check the estimated speed and confirm availability to a property prior to purchasing on the broadband provider's website. Providers may increase charges. The information is provided and maintained by Decision Technologies Limited. **This is indicative only and based on a 2-person household with multiple devices and simultaneous usage. Broadband performance is affected by multiple factors including number of occupants and devices, simultaneous usage, router range etc. For more information speak to your broadband provider.
Map data ©OpenStreetMap contributors.






