
Fosseway, Stow On The Wold, GL54 1FF

- PROPERTY TYPE
Retirement Property
- BEDROOMS
1
- SIZE
Ask developer
Key features
- Ideally located in the beautiful market town of Stow-on-the-Wold
- A range of amenities close by including cafes, restaurants and shops
- Elegant communal lounge to socialise in with friends and neighbours
- On-site restaurant serving daily, freshly prepared meals.
- Flexible care packages tailored to your needs and preferences
- Excellent transport links with easy access to surrounding towns and villages
- North West facing
- Pets allowed
- Communal lounge
- Restaurant
Description
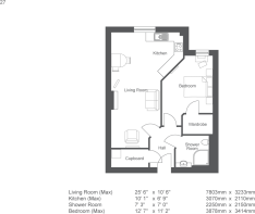
Property 27 is a beautiful one-bedroom, first floor apartment measuring 59 square metres. The apartment is a north west facing property with private tree lined views over Fosse Way.
The spacious living room is decorated in a natural colour which gives a bright and airy feel, while the fitted kitchen comes complete with integrated appliances.
The master bedroom benefits a walk in wardrobe fitted with hanging space and shelving units. Finally, the shower room is complete with slip resistant flooring and a level access shower, a chrome towel radiator and a fitted mirror.
Don't miss out, call to find out more today.
- £90,000/£207 pcm (50% example share/50% rent)
- £135,000 (75% example share/no rent)
- Other shares available
SAP Rating - up to 82
- COUNCIL TAXA payment made to your local authority in order to pay for local services like schools, libraries, and refuse collection. The amount you pay depends on the value of the property.Read more about council Tax in our glossary page.
- Band: D
- PARKINGDetails of how and where vehicles can be parked, and any associated costs.Read more about parking in our glossary page.
- Ask developer
- GARDENA property has access to an outdoor space, which could be private or shared.
- Ask developer
- ACCESSIBILITYHow a property has been adapted to meet the needs of vulnerable or disabled individuals.Read more about accessibility in our glossary page.
- Ask developer
Fosseway, Stow On The Wold, GL54 1FF
Add an important place to see how long it'd take to get there from our property listings.
__mins driving to your place
About McCarthy & Stone
Retirement properties for sale, rent and Shared Ownership in Stow-on-the-Wold, Gloucestershire for those 55 and over
Rentals now available! Hurry, they won't be here for long! Book your visit online here.
In the heart of sought-after Stow-on-the-Wold, Gloucestershire, this stunning Retirement Living PLUS development comprises of 44 one and two bedroom retirement apartments for sale exclusive to those aged 55 and over, alongside some outstanding communal facilities, including a wonderful function room, communal lounge, restaurant, bar, hobby room and wellness suite.
Hawkesbury Place is located close to Stow-on-the-Wold's thriving town centre, where you will find a host of local boutiques, national stores, restaurants and pubs, plus excellent transport links to take you throughout the Cotswolds. The perfect location to spend your retirement!
Retirement Living with a big PLUS
Our properties for sale, rent and Shared Ownership in Stow-on-the-Wold, Gloucestershire offer you the complete privacy of your own spacious apartment, but with a friendly community outside your front door – and assisted living services to support you too.
Independence combined with support
- There’s a friendly Estate Manager, Sally & team on-site 24/7
- An hour’s domestic support each week is included – but you can have more if you want it.
- Tailored personal care should you need it.
- Apartments designed with you in mind.
Apartments designed with you in mind
All these retirement homes are cleverly designed with smart yet stylish features, like easy turn taps, to make life easier now and in the future. Low maintenance, warm and elegant, with the latest security and safety features built in, most of our homeowners enjoy cheaper bills. Parking is available and well-behaved pets are welcome!
Local area
Stow-on-the-Wold is a delightful town with a large and lively Market Square and a monthly Farmers Market. It's also an important shopping spot, with a variety of local boutiques and national stores. It's particularly known for its great antiques and is somewhere you can pick up some unique and unusual bargains. There are a number of restaurants to cater for any occasion, whether it's a formal event or simply some good old pub food.
Stow-on-the-Wold is also a base for exploring the Cotswolds countryside, and the nearby Hidcote Manor, Kiftsgate Court and Sezincote House. The 11th century St Edward's Church is also worth checking out.
The town enjoys good public transport links - the highway runs through the Cotswolds from Warwick to Cirencester. A local bus service takes you around town and the nearest railway stations at Moreton in Marsh and Kingham can have you in London in just over an hour and a half.
The properties at this development are leasehold properties with a term of 999 years from and including 01/06/2018.
Notes
Staying secure when looking for property
Ensure you're up to date with our latest advice on how to avoid fraud or scams when looking for property online.
Visit our security centre to find out moreDisclaimer - Property reference 1_Apartment 27. The information displayed about this property comprises a property advertisement. Rightmove.co.uk makes no warranty as to the accuracy or completeness of the advertisement or any linked or associated information, and Rightmove has no control over the content. This property advertisement does not constitute property particulars. The information is provided and maintained by McCarthy & Stone. Please contact the selling agent or developer directly to obtain any information which may be available under the terms of The Energy Performance of Buildings (Certificates and Inspections) (England and Wales) Regulations 2007 or the Home Report if in relation to a residential property in Scotland.
*This is the average speed from the provider with the fastest broadband package available at this postcode. The average speed displayed is based on the download speeds of at least 50% of customers at peak time (8pm to 10pm). Fibre/cable services at the postcode are subject to availability and may differ between properties within a postcode. Speeds can be affected by a range of technical and environmental factors. The speed at the property may be lower than that listed above. You can check the estimated speed and confirm availability to a property prior to purchasing on the broadband provider's website. Providers may increase charges. The information is provided and maintained by Decision Technologies Limited. **This is indicative only and based on a 2-person household with multiple devices and simultaneous usage. Broadband performance is affected by multiple factors including number of occupants and devices, simultaneous usage, router range etc. For more information speak to your broadband provider.
Map data ©OpenStreetMap contributors.





