4 Jubilee Walk, London WC1X 0BF, UK

- PROPERTY TYPE
Apartment
- BEDROOMS
1
- BATHROOMS
1
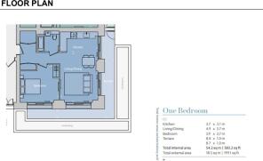
- SIZE
581 sq ft
54 sq m
Key features
- Communal Landscaped Gardens
- Great Transport Links
- Luxury Apartment
- Secure weatherproof bicycle storage
- Communal Roof Terrace
- Floor To Ceiling Windows
- Private Swimming Pool
- Cinema Room
- Private Gym
- 24/7 Concierge
Description
Property Description
A beautifully designed one-bedroom residence set within the highly sought-after Postmark development, offering contemporary interiors, private outdoor space, and a seamless blend of style and functionality.
The apartment features a bright and well-proportioned living area, enhanced by floor-to-ceiling windows that flood the space with natural light. The living room extends effortlessly onto a generous wrap-around private terrace, creating an ideal setting for both entertaining and quiet relaxation.
The sleek, fully integrated kitchen is thoughtfully designed with modern finishes and high-quality appliances, providing both practicality and sophistication for everyday living.
The spacious bedroom offers a peaceful and comfortable retreat, complete with built-in wardrobes for ample storage. A stylish, fully tiled bathroom is conveniently located off the hallway and includes a bathtub with overhead shower. A separate utility cupboard further enhances the practicality of the home, housing a washer/dryer and additional storage space.
Development & Lifestyle
Postmark is a landmark development known for its exceptional resident facilities and vibrant community atmosphere.
Residents benefit from exclusive access to a state-of-the-art gym, a wellness centre including a swimming pool, a private cinema room, and an elegant residents’ lounge. Landscaped communal gardens and a stunning rooftop terrace provide tranquil outdoor spaces within the heart of the development, while a dedicated 24-hour concierge ensures convenience and security.
Location & Connectivity
Ideally positioned between Farringdon, Clerkenwell, King’s Cross, and Chancery Lane, Postmark sits at the centre of one of London’s most dynamic and evolving districts, surrounded by leading creative, technology, and business hubs.
The development benefits from outstanding transport links, with King’s Cross St. Pancras offering national and international connections, alongside multiple Underground lines. Farringdon Station (Elizabeth Line) and Angel Station (Northern Line) are also within easy reach, providing fast and direct access across London.
Additional Information
Council Tax: Band E (London Borough of Camden)
Service Charge: £3,956.87 per annum (subject to change)
Ground Rent: £500 per annum (subject to change)
Heating & Hot Water: Supplied by Metropolita
- COUNCIL TAXA payment made to your local authority in order to pay for local services like schools, libraries, and refuse collection. The amount you pay depends on the value of the property.Read more about council Tax in our glossary page.
- Band: E
- PARKINGDetails of how and where vehicles can be parked, and any associated costs.Read more about parking in our glossary page.
- Ask agent
- GARDENA property has access to an outdoor space, which could be private or shared.
- Yes
- ACCESSIBILITYHow a property has been adapted to meet the needs of vulnerable or disabled individuals.Read more about accessibility in our glossary page.
- Ask agent
Energy performance certificate - ask agent
4 Jubilee Walk, London WC1X 0BF, UK
Add an important place to see how long it'd take to get there from our property listings.
__mins driving to your place
Affordability

Get an instant, personalised result:
- Show sellers you’re serious
- Secure viewings faster with agents
- No impact on your credit score
Notes
Staying secure when looking for property
Ensure you're up to date with our latest advice on how to avoid fraud or scams when looking for property online.
Visit our security centre to find out moreDisclaimer - Property reference NEST_RM_192446_5357021. The information displayed about this property comprises a property advertisement. Rightmove.co.uk makes no warranty as to the accuracy or completeness of the advertisement or any linked or associated information, and Rightmove has no control over the content. This property advertisement does not constitute property particulars. The information is provided and maintained by Nest Seekers International, London. Please contact the selling agent or developer directly to obtain any information which may be available under the terms of The Energy Performance of Buildings (Certificates and Inspections) (England and Wales) Regulations 2007 or the Home Report if in relation to a residential property in Scotland.
*This is the average speed from the provider with the fastest broadband package available at this postcode. The average speed displayed is based on the download speeds of at least 50% of customers at peak time (8pm to 10pm). Fibre/cable services at the postcode are subject to availability and may differ between properties within a postcode. Speeds can be affected by a range of technical and environmental factors. The speed at the property may be lower than that listed above. You can check the estimated speed and confirm availability to a property prior to purchasing on the broadband provider's website. Providers may increase charges. The information is provided and maintained by Decision Technologies Limited. **This is indicative only and based on a 2-person household with multiple devices and simultaneous usage. Broadband performance is affected by multiple factors including number of occupants and devices, simultaneous usage, router range etc. For more information speak to your broadband provider.
Map data ©OpenStreetMap contributors.




