
Carloggas Farmhouse, St. Mawgan, TR8

- PROPERTY TYPE
House
- BEDROOMS
5
- BATHROOMS
2
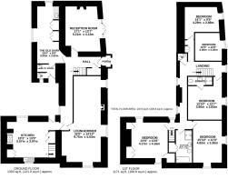
- SIZE
2,474 sq ft
230 sq m
- TENUREDescribes how you own a property. There are different types of tenure - freehold, leasehold, and commonhold.Read more about tenure in our glossary page.
Freehold
Key features
- Characterful Cornish Farmhouse Dating Back to the Early 1800’s
- Located in the Highly Sought After Cornish Village of St Mawgan
- Over 2,470 Square Feet of Versatile Living Accommodation
- Five Double Bedrooms/Two Bathrooms
- Original Features including Slate Floors, Exposed Beams & Stone Walls
- Generous Mature Gardens
- Detached Garage with Ample Off Road Parking
Description
Carloggas Farmhouse is brimming with character and retains a wealth of original features that beautifully reflect its heritage. From slate flagstone floors underfoot to exposed timber beams overhead and thick stone walls that have stood the test of time, every corner of the home tells a story of generations past, creating a warm and timeless atmosphere that is both welcoming and distinctive.
Extending to over 2,470 square feet of internal space, the farmhouse provides a wonderfully spacious and versatile layout suited to modern family living while preserving its traditional charm. The ground floor flows effortlessly between generous
living spaces, including a large kitchen, a practical utility room and two separate reception areas. At the heart of the home is an impressive 32-foot dual aspect sitting and dining room, a light-filled space perfectly suited to family gatherings, relaxed evenings or entertaining guests. Up on the first floor, five well-proportioned bedrooms offer comfortable accommodation, including a principal suite while the flexible layout presents opportunities for multi-generational living or, subject to the necessary planning permissions and building control approvals, the possibility of creating two separate dwellings.
Outside, Carloggas Farmhouse sits within generous and mature gardens that provide both privacy and a wonderful setting for outdoor living. There is ample space to enjoy the Cornish countryside, whether that means cultivating a kitchen garden, creating areas for relaxation, or simply soaking up the sunshine in peaceful surroundings. The size and layout of the grounds may also offer potential for a future building plot, subject to the relevant planning consents. A detached garage provides additional practicality along with plentiful off-street parking.
Combining historic charm, generous space, and exciting potential, this delightful farmhouse offers an exceptional lifestyle opportunity in one of Cornwall’s most sought-after settings.
Services to the property include mains water, electricity and drainage with an oil fired central heating system. EPC rating E. Council tax band E. Ofcom indicate ultrafast broadband availability. Ofcom indicate 5G mobile coverage.
Carloggas Farmhouse is located within the sought-after village of St Mawgan and just three miles from the magnificent sandy beach at Mawgan Porth. St Mawgan is a picturesque village offering a post office, local shops, the popular Falcon Inn, a village green, a beautiful 13th-century church, and an outstanding primary school. Mawgan Porth has become one of the most desirable locations in North Cornwall, renowned for its expansive sandy beach which caters to surfers, swimmers, and bathers, along with stunning cliff and coastline walks. Fine dining is available nearby at the award-winning Scarlet Hotel, and guests can enjoy first-class spa and recreational facilities at both The Scarlet and Bedruthan Hotel.
The bay itself provides a variety of amenities, including a local store, cafés, eateries, The Merrymoor public house, surf schools, and gift shops. Walkers will find themselves perfectly placed to explore the South West Coastal Path, with scenic routes leading to Watergate Bay, Bedruthan Steps, and other spectacular coastal vistas within easy reach.
To find Carloggas Farmhouse, head east or west on the A39 and turn off the St Columb roundabout at signs to Newquay and St Mawgan. Follow to A3059 towards Newquay passing Mole Valley Farmers along the way. After the Gulf petrol station, turn right at signs for Watergate Bay and St Mawgan. Follow this road towards Newquay airport and then turn right at the signpost for St Mawgan. Drive down the hill and round the bend. Take the next turning on the left into Carloggas Farm leading to Ball Lane. Take the next left into the cul-de-sac of Carloggas Farm and Carloggas Farmhouse at the end of the cul-de-sac. The postcode for satellite navigation is TR8 4EQ. What3words: boarding.protected.perfected
Brochures
Particulars- COUNCIL TAXA payment made to your local authority in order to pay for local services like schools, libraries, and refuse collection. The amount you pay depends on the value of the property.Read more about council Tax in our glossary page.
- Band: E
- PARKINGDetails of how and where vehicles can be parked, and any associated costs.Read more about parking in our glossary page.
- Yes
- GARDENA property has access to an outdoor space, which could be private or shared.
- Yes
- ACCESSIBILITYHow a property has been adapted to meet the needs of vulnerable or disabled individuals.Read more about accessibility in our glossary page.
- Ask agent
Carloggas Farmhouse, St. Mawgan, TR8
Add an important place to see how long it'd take to get there from our property listings.
__mins driving to your place
Get an instant, personalised result:
- Show sellers you’re serious
- Secure viewings faster with agents
- No impact on your credit score
Affordability
Notes
Staying secure when looking for property
Ensure you're up to date with our latest advice on how to avoid fraud or scams when looking for property online.
Visit our security centre to find out moreDisclaimer - Property reference JACKI_003500. The information displayed about this property comprises a property advertisement. Rightmove.co.uk makes no warranty as to the accuracy or completeness of the advertisement or any linked or associated information, and Rightmove has no control over the content. This property advertisement does not constitute property particulars. The information is provided and maintained by Jackie Stanley, Padstow. Please contact the selling agent or developer directly to obtain any information which may be available under the terms of The Energy Performance of Buildings (Certificates and Inspections) (England and Wales) Regulations 2007 or the Home Report if in relation to a residential property in Scotland.
*This is the average speed from the provider with the fastest broadband package available at this postcode. The average speed displayed is based on the download speeds of at least 50% of customers at peak time (8pm to 10pm). Fibre/cable services at the postcode are subject to availability and may differ between properties within a postcode. Speeds can be affected by a range of technical and environmental factors. The speed at the property may be lower than that listed above. You can check the estimated speed and confirm availability to a property prior to purchasing on the broadband provider's website. Providers may increase charges. The information is provided and maintained by Decision Technologies Limited. **This is indicative only and based on a 2-person household with multiple devices and simultaneous usage. Broadband performance is affected by multiple factors including number of occupants and devices, simultaneous usage, router range etc. For more information speak to your broadband provider.
Map data ©OpenStreetMap contributors.





