
Murrayfield Park, 37 Corstorphine Road, Edinburgh

- PROPERTY TYPE
Flat
- BEDROOMS
3
- BATHROOMS
2
- SIZE
1,392 sq ft
129 sq m
- TENUREDescribes how you own a property. There are different types of tenure - freehold, leasehold, and commonhold.Read more about tenure in our glossary page.
Freehold
Description
Plot 101 - Murray and Currie are delighted to present this new development by Rennick Property. Murrayfield Park is an exclusive new development featuring 20 luxury apartments, including three penthouses. As these fantastic properties are still in the developmental stage, instead of viewings, we are offering individual meetings with our Director, Steve Currie who is knowledgeable of the development. Please email to arrange your own private discussion about this impressive development.
These two- and three-bedroom homes are easily accessible either on the ground floor or via lift access. Car parking spaces are available, and most apartments also boast a garden, terrace, or balcony. Each apartment is finished to an exceptional standard, including premium fully fitted kitchens, bathrooms, and engineered real wood timber flooring as standard. All apartments are light-filled, with the design focusing on glazed sliding screens and south-facing windows, enjoying beautiful open views over the Water of Leith, Roseburn Park, Murrayfield Stadium, and further afield to the Pentland Hills. Ultrafast broadband is available, and buyers have the freedom to choose their provider.
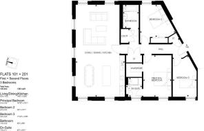
Offering just under 130m² (1,400 sq/ft) of thoughtfully designed living space, Plot Types 101 and 201 deliver exceptional lateral living with a striking 10.2m (33’6”) open-plan kitchen, dining, and lounge area at their heart. These expansive three-bedroom apartments are ideal for buyers seeking secure, energy-efficient, and low-maintenance living in one of Edinburgh’s most desirable postcodes. While not park-facing, this is one of the most impressive floorplans in the development, boasting generously proportioned bedrooms, excellent storage, and an abundance of natural light throughout.
Brochures
Property Brochure- COUNCIL TAXA payment made to your local authority in order to pay for local services like schools, libraries, and refuse collection. The amount you pay depends on the value of the property.Read more about council Tax in our glossary page.
- Ask agent
- PARKINGDetails of how and where vehicles can be parked, and any associated costs.Read more about parking in our glossary page.
- No disabled parking,Residents,Private,Allocated,No permit
- GARDENA property has access to an outdoor space, which could be private or shared.
- Yes
- ACCESSIBILITYHow a property has been adapted to meet the needs of vulnerable or disabled individuals.Read more about accessibility in our glossary page.
- Ask agent
Murrayfield Park, 37 Corstorphine Road, Edinburgh
Add an important place to see how long it'd take to get there from our property listings.
__mins driving to your place
Get an instant, personalised result:
- Show sellers you’re serious
- Secure viewings faster with agents
- No impact on your credit score
Affordability
Notes
Staying secure when looking for property
Ensure you're up to date with our latest advice on how to avoid fraud or scams when looking for property online.
Visit our security centre to find out moreDisclaimer - Property reference sale-494. The information displayed about this property comprises a property advertisement. Rightmove.co.uk makes no warranty as to the accuracy or completeness of the advertisement or any linked or associated information, and Rightmove has no control over the content. This property advertisement does not constitute property particulars. The information is provided and maintained by Murray & Currie, Edinburgh. Please contact the selling agent or developer directly to obtain any information which may be available under the terms of The Energy Performance of Buildings (Certificates and Inspections) (England and Wales) Regulations 2007 or the Home Report if in relation to a residential property in Scotland.
*This is the average speed from the provider with the fastest broadband package available at this postcode. The average speed displayed is based on the download speeds of at least 50% of customers at peak time (8pm to 10pm). Fibre/cable services at the postcode are subject to availability and may differ between properties within a postcode. Speeds can be affected by a range of technical and environmental factors. The speed at the property may be lower than that listed above. You can check the estimated speed and confirm availability to a property prior to purchasing on the broadband provider's website. Providers may increase charges. The information is provided and maintained by Decision Technologies Limited. **This is indicative only and based on a 2-person household with multiple devices and simultaneous usage. Broadband performance is affected by multiple factors including number of occupants and devices, simultaneous usage, router range etc. For more information speak to your broadband provider.
Map data ©OpenStreetMap contributors.








