London Road, Arundel

- PROPERTY TYPE
Apartment
- BEDROOMS
3
- BATHROOMS
2
- SIZE
Ask agent
Key features
- Historic period property
- Beautifully presented through out
- 3 double bedrooms
- Town centre location
- Private courtyard and Terrace
- Additional Communal gardens
- Share of freehold
- Garage and parking
Description
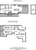
The approach is via stone steps leading to a grand hallway and private entrance.
On entering the spacious reception hall there are several storage cupboards and a cloakroom.
The light and spacious kitchen breakfast room, over looks the castle walls and St Nicholas church. Enjoying the Southerly aspect is the large sitting room with its high ceilings and feature fireplace. The large south facing bay window offers pretty views over the private courtyard garden and communal grounds.
A turning stair case takes you to another good sized hall where the three double bedrooms and family bathroom are accessed. The master bedroom suite benefits from an en suite shower room whilst the second bedroom has access to a partly covered private courtyard and log store. From this floor we also have direct access to the communal laundry area, which is operated within the costs of the maintenance, and also a large private storeroom.
There are well maintained communal gardens along with a large south facing private courtyard garden. The property also benefits from parking and a garage with power and light.
THE LOCATION The cathedral town of Arundel with its impressive Norman castle sits on the boundary of the South Downs National Park. Consistently considered as one of the finest towns in the country and made famous internationally for its antique dealerships. Once a thriving fishing town the public houses and fisherman's cottages have made way for traditional tearooms, boutiques and an eclectic mix of independent restaurants. Now well known for its numerous festivals throughout the year including the Art trail, Food Festival and Arundel by Candlelight. There is a wide choice of sporting and recreational activities in the surrounding area including horse racing at both Goodwood and Fontwell park; Car Racing at Goodwood Motor Circuit famously hosting it's annual Festival of Speed and Revival meetings; polo at Cowdray park; glorious beaches at the Witterings; dinghy sailing from numerous clubs along the coast with substantial harbours and marinas at Chichester and Littlehampton for mooring larger yachts; numerous golf courses; walking and riding in the rich surrounding countryside.
Brochures
1 Tower House- COUNCIL TAXA payment made to your local authority in order to pay for local services like schools, libraries, and refuse collection. The amount you pay depends on the value of the property.Read more about council Tax in our glossary page.
- Ask agent
- PARKINGDetails of how and where vehicles can be parked, and any associated costs.Read more about parking in our glossary page.
- Garage,Off street
- GARDENA property has access to an outdoor space, which could be private or shared.
- Ask agent
- ACCESSIBILITYHow a property has been adapted to meet the needs of vulnerable or disabled individuals.Read more about accessibility in our glossary page.
- Ask agent
Energy performance certificate - ask agent
London Road, Arundel
Add an important place to see how long it'd take to get there from our property listings.
__mins driving to your place
Get an instant, personalised result:
- Show sellers you’re serious
- Secure viewings faster with agents
- No impact on your credit score
Affordability
Notes
Staying secure when looking for property
Ensure you're up to date with our latest advice on how to avoid fraud or scams when looking for property online.
Visit our security centre to find out moreDisclaimer - Property reference 101072001507. The information displayed about this property comprises a property advertisement. Rightmove.co.uk makes no warranty as to the accuracy or completeness of the advertisement or any linked or associated information, and Rightmove has no control over the content. This property advertisement does not constitute property particulars. The information is provided and maintained by Pegasus Properties, Barnham. Please contact the selling agent or developer directly to obtain any information which may be available under the terms of The Energy Performance of Buildings (Certificates and Inspections) (England and Wales) Regulations 2007 or the Home Report if in relation to a residential property in Scotland.
*This is the average speed from the provider with the fastest broadband package available at this postcode. The average speed displayed is based on the download speeds of at least 50% of customers at peak time (8pm to 10pm). Fibre/cable services at the postcode are subject to availability and may differ between properties within a postcode. Speeds can be affected by a range of technical and environmental factors. The speed at the property may be lower than that listed above. You can check the estimated speed and confirm availability to a property prior to purchasing on the broadband provider's website. Providers may increase charges. The information is provided and maintained by Decision Technologies Limited. **This is indicative only and based on a 2-person household with multiple devices and simultaneous usage. Broadband performance is affected by multiple factors including number of occupants and devices, simultaneous usage, router range etc. For more information speak to your broadband provider.
Map data ©OpenStreetMap contributors.





