
Upper Street, Fleet, Hampshire, GU51
- PROPERTY TYPE
Office
- SIZE
Ask agent
Key features
- Business investment opportunity
- Vacant premises
- Potential for conversion to residential (STPP)
- Total area of 1,758 sq. ft.
- Ground and first floor offices
- Approx. 980 years remaining on lease
- Town centre
- Well-connected by road and rail
- Located in Fleet
Description
An excellent opportunity to acquire vacant leasehold premises, with potential for conversion into residential accommodation (STPP). Within Fleet town centre, the property is accessible to road and rail links.
Contact
To arrange a viewing or find out more information, please contact - Katherine Gray - Land Director - Tel: - Email:
BUSINESS INVESTMENT OPPORTUNITY
**ATTENTION INVESTORS** An excellent opportunity to acquire vacant leasehold premises, these offices offer potential to conversion into residential accommodation, subject to the necessary planning permission and consents.
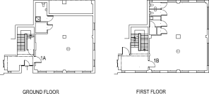
The premises
The premises consist of a total area of approximately 1,758 sq. ft / 162.98 sq. m. This is divided into a ground floor office of 793 sq. ft. / 73.64 sq. m. and a first floor office of 965 sq. ft. / 89.34 sq. m.
Business Rates:
The ground floor (1A) offers a rateable value of: £8,500 and the first floor (1B) offers a rateable value of £10,250.
Energy Rating:
The energy rating for both floors is D.
Parking:
One allocated space for the first floor office.
Location
Situated within the centre of this commuter town, the premises are well-connected. The mainline station is just over a mile's walk, with the M3 accessed a short drive away, via Junction 4a. Fleet town centre provides a mix of residential and commercial properties. The popular setting features a shopping centre, independent retailers, restaurants and cafes and hosts numerous community events. Fleet offers a leisure centre, parks, nature reserves and North Hants golf club.
Leasehold
These premises benefit from a long lease with approximately 980 years remaining. Ground rent is to be confirmed. All details should be verified by the purchasing solicitor prior to the exchange of contracts.
Upper Street, Fleet, Hampshire, GU51
NEAREST STATIONS
Distances are straight line measurements from the centre of the postcode- Fleet Station0.9 miles
- Winchfield Station2.8 miles
- Farnborough Station3.9 miles
Notes
Disclaimer - Property reference FLT220365. The information displayed about this property comprises a property advertisement. Rightmove.co.uk makes no warranty as to the accuracy or completeness of the advertisement or any linked or associated information, and Rightmove has no control over the content. This property advertisement does not constitute property particulars. The information is provided and maintained by Mackenzie Smith, Fleet. Please contact the selling agent or developer directly to obtain any information which may be available under the terms of The Energy Performance of Buildings (Certificates and Inspections) (England and Wales) Regulations 2007 or the Home Report if in relation to a residential property in Scotland.
Map data ©OpenStreetMap contributors.







