
Alton Road, Hook, RG29

- PROPERTY TYPE
Detached
- BEDROOMS
5
- BATHROOMS
1
- SIZE
2,110 sq ft
196 sq m
- TENUREDescribes how you own a property. There are different types of tenure - freehold, leasehold, and commonhold.Read more about tenure in our glossary page.
Freehold
Key features
- Substantial Five-Bedroom Family Home in Sought-After Village Setting
- Fantastic opportunity to update a well crafted home.
- Easy drive to Odiham or Alton towns
- Large rooms with bay windows
- Downstairs snug perfect for working from home
- Great sized double garage with light and power
- Active village community
- Busy mature rear garden
- Parking in front of property
- EPC - C
Description
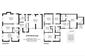
Set within a small, private collection of just three homes on the edge of one of North Hampshire's most cherished villages of South Warnborough, this substantial five-bedroom, 2,110 sq ft detached house has been home to one family for decades. It is solid, generous, and flows easily from room to room. Its the kind of home that rarely comes to market, and when it does, the right buyer recognises it immediately.
Step inside and the bones speak for themselves. A wide entrance hall draws you past a snug or study, perfect for working from home and then into a central dining room that sits at the very heart of the house and has its own bay window to the garden. The lounge opens to one side, the kitchen to the other, both with patio doors spilling out onto a walled garden that feels genuinely private. Light a fire on a winter evening, throw open the doors on a summer afternoon and party with friends, this house works for every season.
Upstairs, a galleried landing gives the first floor a quiet sense of occasion. The principal bedroom is a proper retreat: built-in wardrobes, a large en-suite, and garden views. A second bedroom has its own wardrobe and en-suite too. The remaining three bedrooms are bright, spacious, and ready for whatever a busy family brings to them.
The double garage is vast, park your car and make it a workshop, a gym, a project, a conversion (subject to planning).
The village of South Warnborough itself offers a pub, a village shop, a community and countryside that makes the daily commute feel worth it. It is also close to the local towns of Alton and Odiham with thier local shops and supermarkets.
London Waterloo is under an hour from nearby Bentley Station. The M3 is five miles away.
This is not a house that needs selling. It needs the right family to make it their own.
Tenure - Freehold
Property & Services information
Mobile Coverage: 4G coverage is available in the area - please check with your provider.
Broadband Availability: Broadband (FTTP) is available in the area
Utilities: mains gas, electricity and mains water are connected. There is a septic tank in the rear garden.
Disclaimer
DISCLAIMER: Whilst these particulars are believed to be correct and are given in good faith, they are not warranted, and any interested parties must satisfy themselves by inspection, or otherwise, as to the correctness of each of them. These particulars do not constitute an offer or contract or part thereof and areas, measurements and distances are given as a guide only. Photographs depict only certain parts of the property. Nothing within the particulars shall be deemed to be a statement as to the structural condition, nor the working order of services and appliances.
- COUNCIL TAXA payment made to your local authority in order to pay for local services like schools, libraries, and refuse collection. The amount you pay depends on the value of the property.Read more about council Tax in our glossary page.
- Band: G
- PARKINGDetails of how and where vehicles can be parked, and any associated costs.Read more about parking in our glossary page.
- Garage
- GARDENA property has access to an outdoor space, which could be private or shared.
- Yes
- ACCESSIBILITYHow a property has been adapted to meet the needs of vulnerable or disabled individuals.Read more about accessibility in our glossary page.
- Ask agent
Alton Road, Hook, RG29
Add an important place to see how long it'd take to get there from our property listings.
__mins driving to your place
Get an instant, personalised result:
- Show sellers you’re serious
- Secure viewings faster with agents
- No impact on your credit score
Affordability
Notes
Staying secure when looking for property
Ensure you're up to date with our latest advice on how to avoid fraud or scams when looking for property online.
Visit our security centre to find out moreDisclaimer - Property reference RX753862. The information displayed about this property comprises a property advertisement. Rightmove.co.uk makes no warranty as to the accuracy or completeness of the advertisement or any linked or associated information, and Rightmove has no control over the content. This property advertisement does not constitute property particulars. The information is provided and maintained by The Property Experts, London. Please contact the selling agent or developer directly to obtain any information which may be available under the terms of The Energy Performance of Buildings (Certificates and Inspections) (England and Wales) Regulations 2007 or the Home Report if in relation to a residential property in Scotland.
*This is the average speed from the provider with the fastest broadband package available at this postcode. The average speed displayed is based on the download speeds of at least 50% of customers at peak time (8pm to 10pm). Fibre/cable services at the postcode are subject to availability and may differ between properties within a postcode. Speeds can be affected by a range of technical and environmental factors. The speed at the property may be lower than that listed above. You can check the estimated speed and confirm availability to a property prior to purchasing on the broadband provider's website. Providers may increase charges. The information is provided and maintained by Decision Technologies Limited. **This is indicative only and based on a 2-person household with multiple devices and simultaneous usage. Broadband performance is affected by multiple factors including number of occupants and devices, simultaneous usage, router range etc. For more information speak to your broadband provider.
Map data ©OpenStreetMap contributors.









