Princes Road, Felixstowe

- PROPERTY TYPE
Detached
- BEDROOMS
4
- BATHROOMS
2
- SIZE
Ask agent
- TENUREDescribes how you own a property. There are different types of tenure - freehold, leasehold, and commonhold.Read more about tenure in our glossary page.
Freehold
Key features
- TASTEFULLY MODERNISED 1920'S DETACHED HOUSE
- FOUR DOUBLE BEDROOMS
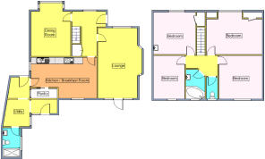
- LOUNGE
- DINING ROOM
- KITCHEN/BREAKFAST ROOM
- UTILITY ROOM
- GROUND FLOOR SHOWER ROOM
- BATHROOM
- DRIVEWAY AND CARPORT
- WEST FACING REAR GARDEN
Description
Further benefits include an attractive landscaped west facing rear garden, carport and single garage, gas fired central heating via radiators, with double glazed stained glass windows (secondary double glazed original stained glass windows and some having been replaced in UPVC to match the original style).
The property is conveniently located in an established residential road within a short distance of the main town centre shopping thoroughfare with a variety of cafes, restaurants and shops available in addition to a railway station at Great Eastern Square with regular services to Ipswich and onto London Liverpool Street.
COVERED STORM PORCH With Quarry tiled floor.
ORIGINAL WOODEN ENTRANCE DOOR Opening to :-
ENTRANCE HALLWAY Radiator, secondary double glazed window to the front aspect with original stained glass leaded light uppers, staircase leading to the first floor with double door storage cupboard below, radiator, picture rail.
LOUNGE 21' 4" x 14'3" into bay reducing to 12' 2" (6.5m x 3.71m) Brick fireplace with marble hearth, multi-fuel stove, two radiators, picture rail, TV point, bay to the side aspect with secondary double glazed leaded light stained glass windows and matching windows to the front aspect, UPVC sealed unit double glazed windows and casement door opening to the rear garden.
DINING ROOM 16' 2" into bay reducing to 14' x 12' 6" (4.93m x 3.81m) Pine fireplace surround, marble hearth, gas coal effect living flame fire, radiator, picture rail, secondary double glazed square bay window to the front aspect.
KITCHEN/BREAKFAST ROOM 19' 7" x 12' reducing to 7' 10" (5.97m x 2.39m) Re-fitted with a comprehensive range of modern units comprising base cupboards and drawers, saucepan drawers, solid marble work tops, inset one and a half bowl stainless steel sink units with mixer tap, marble upstands and splashback, matching eye level cupboards, built in Siemens stainless steel double oven, five ring induction hob with concealed extractor over, integrated dishwasher, pull out bin, shelving with down lighters, further base cupboards and eye level cupboard, two radiators, luxury vinyl tile flooring, UPVC sealed unit double glazed window to the rear aspect, sash style secondary double glazed window to the side aspect, built in pantry with shelving and window to the side aspect.
SIDE LOBBY 6' 4" x 6' 2" (1.93m x 1.88m) Space for fridge and freezer, storage cupboard, UPVC sealed unit double glazed door and window to the front aspect, door to :-
UTILITY ROOM 8' 10" x 7' 6" (2.69m x 2.29m) Fitted with high gloss finished units comprising base cupboards and drawers with work surface over, inset stainless steel sink unit with wash basin, space and plumbing for automatic washing machine, heated towel rail/radiator, UPVC sealed unit double glazed window to the side aspect.
SHOWER ROOM Modern white suite comprising walk in shower with glazed screen, fitted shower unit, WC with concealed cistern, wash hand basin with mixer tap and high gloss finished double door cupboards below, fully tiled walls, extractor fan, ceiling spotlights, tiled flooring with under floor heating, chrome heated towel rail/radiator, UPVC sealed unit double glazed window to the side aspect.
BOILER ROOM/REAR LOBBY (LEADING FROM THE UTILITY) 8' 2" x 4' 6" (2.49m x 1.37m) Fitted with high gloss finished units comprising base cupboards with work surfaces over, wall mounted Worcester gas fired boiler, radiator, UPVC sealed unit double glazed window and double glazed leaded light door opening to the rear garden.
FIRST FLOOR LANDING Access to loft space.
BEDROOM ONE 15' 6" x 13' max reducing to 11' (4.72m x 3.35m) Built in eaves cupboard, comprehensive range of fitted wood grain finished bedroom furniture comprising wardrobes, chest of drawers, mirror fronted wardrobes, knee hole dressing table and additional cupboards, picture rail, UPVC sealed unit double glazed window to the front aspect.
BEDROOM TWO 14' x 12' 6" (4.27m x 3.81m) Radiator, built in storage cupboard, picture rail, wash hand basin with tiled splashback, UPVC sealed unit double glazed window with stained glass leaded light uppers to the front aspect.
BEDROOM THREE 12' 2" x 12' (3.71m x 3.66m) Radiator, picture rail, UPVC sealed unit double glazed window with stained glass uppers to the rear aspect.
BEDROOM FOUR 12' 2" x 10' (3.71m x 3.05m) Fitted wardrobe cupboards, cupboard housing pre-insulated lagged hot water cylinder, radiator, picture rail, UPVC sealed unit double glazed window with leaded light uppers to the rear aspect.
BATHROOM White suite comprising corner bath with mixer tap and Mira shower unit over, wash hand basin with cupboards and drawers below, fully tiled walls, heated towel rail/radiator, UPVC sealed unit double glazed window to the rear aspect.
SEPARATE WC Modern white low level suite, tiled floor part tiled walls, UPVC sealed unit double glazed window to the rear aspect.
OUTSIDE The property stands within established landscaped gardens to both the front and rear. The front garden comprising block paved driveway with adjacent flower and shrub beds, paved pathways and access to a carport and single garage.
GARAGE 20' 4" x 8' 2" (6.2m x 2.49m) Electric remote control up and over door, power and light connected, window to the side and rear aspects and personal door opening to the rear garden.
REAR OF THE PROPERTY Beautifully kept landscaped garden with a westerly aspect comprising extensive raised sun terrace with steps leading down to a shaped lawn with established well stocked borders, mature trees, flowers and planting, green house, external lighting, cold water tap, timber summer house, timber fencing to the boundaries.
COUNCIL TAX Band 'E'
Brochures
A4 5 Page Landsca...- COUNCIL TAXA payment made to your local authority in order to pay for local services like schools, libraries, and refuse collection. The amount you pay depends on the value of the property.Read more about council Tax in our glossary page.
- Band: E
- PARKINGDetails of how and where vehicles can be parked, and any associated costs.Read more about parking in our glossary page.
- Garage,Covered
- GARDENA property has access to an outdoor space, which could be private or shared.
- Yes
- ACCESSIBILITYHow a property has been adapted to meet the needs of vulnerable or disabled individuals.Read more about accessibility in our glossary page.
- Ask agent
Princes Road, Felixstowe
Add an important place to see how long it'd take to get there from our property listings.
__mins driving to your place
Get an instant, personalised result:
- Show sellers you’re serious
- Secure viewings faster with agents
- No impact on your credit score
Affordability
Notes
Staying secure when looking for property
Ensure you're up to date with our latest advice on how to avoid fraud or scams when looking for property online.
Visit our security centre to find out moreDisclaimer - Property reference 100928006869. The information displayed about this property comprises a property advertisement. Rightmove.co.uk makes no warranty as to the accuracy or completeness of the advertisement or any linked or associated information, and Rightmove has no control over the content. This property advertisement does not constitute property particulars. The information is provided and maintained by ScottBeckett, Felixstowe. Please contact the selling agent or developer directly to obtain any information which may be available under the terms of The Energy Performance of Buildings (Certificates and Inspections) (England and Wales) Regulations 2007 or the Home Report if in relation to a residential property in Scotland.
*This is the average speed from the provider with the fastest broadband package available at this postcode. The average speed displayed is based on the download speeds of at least 50% of customers at peak time (8pm to 10pm). Fibre/cable services at the postcode are subject to availability and may differ between properties within a postcode. Speeds can be affected by a range of technical and environmental factors. The speed at the property may be lower than that listed above. You can check the estimated speed and confirm availability to a property prior to purchasing on the broadband provider's website. Providers may increase charges. The information is provided and maintained by Decision Technologies Limited. **This is indicative only and based on a 2-person household with multiple devices and simultaneous usage. Broadband performance is affected by multiple factors including number of occupants and devices, simultaneous usage, router range etc. For more information speak to your broadband provider.
Map data ©OpenStreetMap contributors.





