
Plot 3 Wynyard Woods, Wynyard,
- PROPERTY TYPE
Plot
- SIZE
Ask agent
Key features
- LAST FEW REMAINING PLOTS
- AN EXCITING AND EXCLUSIVE OPPORTUNITY TO PURCHASE A SELF BUILD PLOT
- WITHIN A PRESTIGIOUS AND DESIRABLE LOCATION FOR 16 LUXURY HOMES
- FULLY SERVICED
- PRICES FROM £252,000
Description
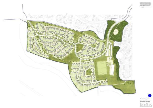
The proposed self-build layouts have been designed with the intention of creating a new residential community as part of and in-keeping with the wider Masterplan Proposals for the land south West of Wynyard Woods
Plots offered 'ready for development' with services.
Viewings:- - Via Robinsons Regency & Rural
Tel:
Email:
Agents Notes:- - Disclaimer: Our details have been compiled in good faith using publicly available sources and information obtained from the vendor prior to marketing. Verification and clarification of this information, along with any further details concerning Material Information parts A, B & C, should be sought from a legal representative or appropriate authorities before making any financial commitments. Robinsons cannot accept liability for any information provided subsequent amendments or unintentional errors or omissions.
HMRC Compliance requires all estate agents to carry out identity checks on their customers, including buyers once their offer has been accepted. These checks must be completed for each purchaser who will become a legal owner of the property. An administration fee of £30 (inc. VAT) per individual purchaser applies for carrying out these checks.
Brochures
Plot 3 Wynyard Woods, Wynyard,Plot 3 Wynyard Woods, Wynyard,
NEAREST STATIONS
Distances are straight line measurements from the centre of the postcode- Billingham Station3.9 miles
- Stockton Station5.1 miles
- Middlesbrough Station6.4 miles



Notes
Disclaimer - Property reference 34551077. The information displayed about this property comprises a property advertisement. Rightmove.co.uk makes no warranty as to the accuracy or completeness of the advertisement or any linked or associated information, and Rightmove has no control over the content. This property advertisement does not constitute property particulars. The information is provided and maintained by Robinsons Regency and Rural, Wynyard. Please contact the selling agent or developer directly to obtain any information which may be available under the terms of The Energy Performance of Buildings (Certificates and Inspections) (England and Wales) Regulations 2007 or the Home Report if in relation to a residential property in Scotland.
Map data ©OpenStreetMap contributors.





