
2 Forest Drive, Alston, Cumbria

- PROPERTY TYPE
Detached
- BEDROOMS
3
- BATHROOMS
2
- SIZE
1,593 sq ft
148 sq m
- TENUREDescribes how you own a property. There are different types of tenure - freehold, leasehold, and commonhold.Read more about tenure in our glossary page.
Freehold
Key features
- Newly Built Home
- High Specification
- Lantern Roof Sunroon
- Detached Double Garage
- Gardens & Parking
- Welcoming Market Town
- Area of Outstanding Natural Beauty
Description
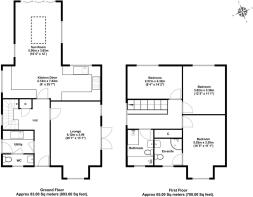
Accommodation in Brief
Ground Floor
Entrance Hall | Lounge | Kitchen Diner | Sun Room / Orangery | Utility | WC
First Floor
Principal Bedroom with En Suite Shower Room | Two Further Bedrooms | Family Bathroom | Storage Cupboard
Externally
Detached Double Garage | Pebble Driveway with Ample Parking | Gardens Laid to Lawn | Paved Patio Areas
The Property
2 Forest Drive presents a crisp, contemporary take on rural living. Recently completed and set within a generous plot, the architecture draws on traditional forms, combining clean white render with warm stone detailing. Inside, the house offers bright, well-considered interiors designed to make the most of natural light and the surrounding countryside views.
A central entrance hall provides a calm introduction to the house, finished with porcelain flooring that continues throughout the ground floor and is complemented by underfloor heating. From here, the principal reception room sits to one side, a well proportioned lounge with wide French doors opening directly onto the garden. The room enjoys a pleasant outlook and an easy connection to outside, creating a natural extension of the living space during the warmer months.
To the rear of the house, the kitchen and dining area form the social centre of the home. Shaker style cabinetry runs along two sides of the kitchen, offering generous storage and preparation space, alongside integrated appliances including a Neff oven with slide and hide door and a built in fridge freezer. The layout flows naturally into the dining area, where ample space is provided for a large table, creating a setting well suited to both everyday family life and relaxed entertaining.
Beyond the dining area, the space opens into a striking sun room where a glazed lantern roof draws daylight deep into the interior. Large windows and bi fold doors frame views across the garden and the open landscape beyond, bringing the surrounding countryside visually into the home and creating a relaxed, light filled sitting area that naturally becomes a focal point of the house.
Practical spaces are well integrated into the ground floor layout, with a separate utility room offering further cabinetry, plumbing for appliances and a useful external door, alongside a cloakroom with WC.
Upstairs, three bedrooms are arranged around the central landing, each enjoying views across the surrounding countryside. The principal bedroom benefits from its own en suite shower room. Two further bedrooms are served by a well appointed family bathroom with a bath and separate walk in shower enclosure, finished with full height tiling, a vanity basin unit with storage and a heated towel rail.
Externally
The property sits comfortably within its plot, approached via a pebble driveway that provides ample parking and leads to a detached double garage with electric door and power sockets. The gardens are mainly laid to lawn and enclosed with fencing and traditional stone walling, creating a defined yet open setting with views across the surrounding countryside. Broad paved patio areas extend directly from the house, providing ideal spaces for outdoor seating and dining, while a paved ramp offers practical access around the property.
The Development
Forest Drive is a superb exclusive development offering stunning new executive properties designed for luxurious modern day living. This development of thirteen detached properties is nestled on the edge of a peaceful Cumbrian market town, benefitting from the glorious surroundings of the North Pennines Area of Outstanding Natural Beauty. Alston is a wonderfully friendly, community minded town that offers a warm welcome to residents and visitors alike. Beautiful St. Augustine's Church sits at the heart of the town and plays a great part in the community, offering a hub for social activities and organising a variety of events.
Local Information
The market town of Alston lies in north east Cumbria, close to the Northumbrian border, standing around 1,000ft above sea level and claims to be the highest market town in England. It is a quaint town with cobbled high street and unusual shops and galleries and surrounded by miles of un-spoilt countryside, perfect for walking without the crowds of the nearby Lake District. The beautiful surrounding area is ideal for the outdoor enthusiast with walking, cycling and nature on the doorstep; the C2C cycle route and the Pennine Way both run through the town and Alston Moor has a golf club. Other popular local sports include fishing and shooting and Alston is also the starting point for South Tynedale Railway, England’s highest narrow gauge railway.
Alston offers excellent local amenities with a selection of independent shops, supermarkets, galleries, public houses and restaurants, along cobbled streets and amidst glorious surrounding unspoiled countryside. St. Augustine’s Church is a friendly community church with regular services, exhibitions and social events. The town provides a range of professional services. For more comprehensive facilities, Carlisle, Penrith and Hexham are extremely accessible and provide excellent shopping, entertainment and leisure facilities including cinema, theatre and hospitals.
For schooling, there is a primary school in Nenthead, while senior education is available at Samuel King’s School in Alston, which provides nursery through to secondary education. A further local nursery caters for children aged six months to five years. Hunter Hall School in Penrith is an independent preparatory school for children aged three to eleven, whilst Austin Friars School in Carlisle provides independent day education from Pre-School through to Senior School. In addition, Mowden Hall Prep School is located near Corbridge, alongside a number of well regarded independent day schools in Newcastle.
For the commuter, the M6 motorway can be joined at Penrith or Carlisle and provides access north and south to regional centres. Rail stations at Hexham, Penrith and Carlisle provide main line services to major UK cities, with Hexham providing regular cross-country services to Newcastle. Newcastle International Airport is also very accessible.
The city of Carlisle, adjacent to the M6 Motorway and on the West Coast Rail Line, is located approximately 28 miles to the North West. The city is regarded as the principal shopping location for the county as well as the administrative centre.
Approximate Mileages
Penrith 19.2 miles | Hexham 21.8 miles| Carlisle 27.5 miles | Newcastle International Airport 41.9 miles | Newcastle City Centre 44.2 miles
Services
Mains electricity, gas, water and drainage. Zoned underfloor heating to ground floor. Data network installed.
Tenure
Freehold
Council Tax
Band TBC
Wayleaves, Easements & Rights of Way
The property is being sold subject to all existing wayleaves, easements and rights of way, whether or not specified within the sales particulars.
Agents Note to Purchasers
We strive to ensure all property details are accurate, however, they are not to be relied upon as statements of representation or fact and do not constitute or form part of an offer or any contract. All measurements and floor plans have been prepared as a guide only. All services, systems and appliances listed in the details have not been tested by us and no guarantee is given to their operating ability or efficiency. Please be advised that some information may be awaiting vendor approval.
Submitting an Offer
Please note that all offers will require financial verification including mortgage agreement in principle, proof of deposit funds, proof of available cash and full chain details including selling agents and solicitors down the chain. To comply with Money Laundering Regulations, we require proof of identification from all buyers before acceptance letters are sent and solicitors can be instructed.
Disclaimer
The information displayed about this property comprises a property advertisement. Finest Properties strives to ensure all details are accurate; however, they do not constitute property particulars and should not be relied upon as statements of fact or representation. All information is provided and maintained by Finest Properties.
Brochures
Brochure- COUNCIL TAXA payment made to your local authority in order to pay for local services like schools, libraries, and refuse collection. The amount you pay depends on the value of the property.Read more about council Tax in our glossary page.
- Ask agent
- PARKINGDetails of how and where vehicles can be parked, and any associated costs.Read more about parking in our glossary page.
- Yes
- GARDENA property has access to an outdoor space, which could be private or shared.
- Private garden
- ACCESSIBILITYHow a property has been adapted to meet the needs of vulnerable or disabled individuals.Read more about accessibility in our glossary page.
- Ask agent
Energy performance certificate - ask agent
2 Forest Drive, Alston, Cumbria
Add an important place to see how long it'd take to get there from our property listings.
__mins driving to your place
Get an instant, personalised result:
- Show sellers you’re serious
- Secure viewings faster with agents
- No impact on your credit score
Affordability
Notes
Staying secure when looking for property
Ensure you're up to date with our latest advice on how to avoid fraud or scams when looking for property online.
Visit our security centre to find out moreDisclaimer - Property reference f4009117-25d7-4e82-ade6-afd1beddd8d4. The information displayed about this property comprises a property advertisement. Rightmove.co.uk makes no warranty as to the accuracy or completeness of the advertisement or any linked or associated information, and Rightmove has no control over the content. This property advertisement does not constitute property particulars. The information is provided and maintained by Finest, Cumbria & The Lakes. Please contact the selling agent or developer directly to obtain any information which may be available under the terms of The Energy Performance of Buildings (Certificates and Inspections) (England and Wales) Regulations 2007 or the Home Report if in relation to a residential property in Scotland.
*This is the average speed from the provider with the fastest broadband package available at this postcode. The average speed displayed is based on the download speeds of at least 50% of customers at peak time (8pm to 10pm). Fibre/cable services at the postcode are subject to availability and may differ between properties within a postcode. Speeds can be affected by a range of technical and environmental factors. The speed at the property may be lower than that listed above. You can check the estimated speed and confirm availability to a property prior to purchasing on the broadband provider's website. Providers may increase charges. The information is provided and maintained by Decision Technologies Limited. **This is indicative only and based on a 2-person household with multiple devices and simultaneous usage. Broadband performance is affected by multiple factors including number of occupants and devices, simultaneous usage, router range etc. For more information speak to your broadband provider.
Map data ©OpenStreetMap contributors.






