
East Walls, Sharp Garland House East Walls, PO19

- PROPERTY TYPE
Flat
- BEDROOMS
2
- BATHROOMS
1
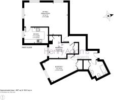
- SIZE
872 sq ft
81 sq m
Key features
- First floor apartment
- Easy access to city centre shops, restaurants and bistros
- Sunny 22’ dual aspect sitting room
- Two well-proportioned bedrooms with built-in wardrobes
- White bathroom suite
- Classic kitchen
- Security entry phone system
- Ideal home or investment
- No onward chain
Description
A spacious apartment conveniently located in the heart of the city centre.
A bright, purpose-built two-bedroom first floor apartment ideally located in the heart of the city centre, adjacent to the ancient city wall. The development benefits from gated access with steps leading to the main entrance, a security entry phone system and well-maintained communal areas.
The accommodation comprises an entrance hall and a spacious 22ft dual-aspect sitting/dining room with attractive south and west facing aspects, providing excellent natural light throughout the day, ideal for both relaxing and entertaining. The kitchen is fitted with classic shaker-style units and complemented by granite worktops, an electric oven and hob with cooker hood. There are two well-proportioned bedrooms, both benefitted from built-in wardrobes and a bathroom featuring an electric shower over the bath.
The apartment is ideally positioned within easy reach of an excellent variety of bistros, restaurants, pubs and shopping precincts, making it a superb city-centre residence, weekend retreat or investment opportunity.
Offered with no onward chain, this apartment combines a central location with comfort and convenience.
Chichester District Council - 26/27 Tax Band D £2,492.15 EPC-D
Lease: 125 years from 01.03.1985
Service Charge: £1570.58 paid in 2 six month instalments on the 1st Jan and 1st July.
Ground Rent: £100 pa
Directions - By foot, from our office proceed northward along Baffins Lane, turning right at the junction into East Street. Sharp Garland House can be found just before the end of East Street on the left hand side. what3words - pose.gallons.number
EPC Rating: D
Brochures
Property Brochure- COUNCIL TAXA payment made to your local authority in order to pay for local services like schools, libraries, and refuse collection. The amount you pay depends on the value of the property.Read more about council Tax in our glossary page.
- Band: D
- PARKINGDetails of how and where vehicles can be parked, and any associated costs.Read more about parking in our glossary page.
- Ask agent
- GARDENA property has access to an outdoor space, which could be private or shared.
- Ask agent
- ACCESSIBILITYHow a property has been adapted to meet the needs of vulnerable or disabled individuals.Read more about accessibility in our glossary page.
- Ask agent
East Walls, Sharp Garland House East Walls, PO19
Add an important place to see how long it'd take to get there from our property listings.
__mins driving to your place
Get an instant, personalised result:
- Show sellers you’re serious
- Secure viewings faster with agents
- No impact on your credit score
Affordability
Notes
Staying secure when looking for property
Ensure you're up to date with our latest advice on how to avoid fraud or scams when looking for property online.
Visit our security centre to find out moreDisclaimer - Property reference e3f3e846-ee26-4edc-90cd-32c9a545d4a0. The information displayed about this property comprises a property advertisement. Rightmove.co.uk makes no warranty as to the accuracy or completeness of the advertisement or any linked or associated information, and Rightmove has no control over the content. This property advertisement does not constitute property particulars. The information is provided and maintained by Henry Adams, Chichester. Please contact the selling agent or developer directly to obtain any information which may be available under the terms of The Energy Performance of Buildings (Certificates and Inspections) (England and Wales) Regulations 2007 or the Home Report if in relation to a residential property in Scotland.
*This is the average speed from the provider with the fastest broadband package available at this postcode. The average speed displayed is based on the download speeds of at least 50% of customers at peak time (8pm to 10pm). Fibre/cable services at the postcode are subject to availability and may differ between properties within a postcode. Speeds can be affected by a range of technical and environmental factors. The speed at the property may be lower than that listed above. You can check the estimated speed and confirm availability to a property prior to purchasing on the broadband provider's website. Providers may increase charges. The information is provided and maintained by Decision Technologies Limited. **This is indicative only and based on a 2-person household with multiple devices and simultaneous usage. Broadband performance is affected by multiple factors including number of occupants and devices, simultaneous usage, router range etc. For more information speak to your broadband provider.
Map data ©OpenStreetMap contributors.








