
Capel Close, Akeley, MK18

- PROPERTY TYPE
Semi-Detached
- BEDROOMS
3
- BATHROOMS
1
- SIZE
603 sq ft
56 sq m
- TENUREDescribes how you own a property. There are different types of tenure - freehold, leasehold, and commonhold.Read more about tenure in our glossary page.
Freehold
Key features
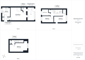
- Extended three bedroom semi-detached home
- Loft conversion creating a bright third bedroom with skylights
- New wooden flooring on the ground floor
- Spacious, sociable and cosy living room
- Two reception rooms offering flexible living space
- Stylish kitchen with cabinetry, tiled splashbacks and built-in wine rack
- Two first floor bedrooms and a family bathroom
- Landscaped rear garden with a good degree of privacy
- Garage located to the rear with additional parking
- Council Tax Band: C | EPC Rating: D
Description
Extended Three Bedroom Semi-Detached Home with Loft Conversion in Akeley | Capel Close
Positioned within the heart of Akeley, this extended and thoughtfully improved three bedroom semi-detached home offers a wonderful blend of modern living and village charm.
The property has been enhanced by the current owner, most notably with a loft conversion creating a third bedroom, complete with skylights, as well as the addition of new wooden flooring throughout the ground floor, adding warmth and a contemporary finish.
The ground floor offers a welcoming entrance hall leading through to a spacious, sociable and cosy living room, perfect for relaxing evenings. To the rear, a second reception room provides an ideal dining or family space, filled with natural light and opening directly onto the garden, creating a lovely indoor-outdoor flow. The kitchen is well fitted with stylish cabinetry, complemented by tiled splashbacks and a built-in wine rack, offering ample storage and workspace, with space for appliances and perfectly suited to both everyday living and entertaining.
Upstairs, the first floor comprises two well-proportioned bedrooms and a family bathroom fitted with a white three-piece suite. The loft has been cleverly converted to create a superb third bedroom, enhanced by skylights that flood the space with natural light, creating a bright and private retreat ideal for a principal bedroom, guest suite or home office. The property backs on to woods, with beautiful far-reaching countryside views from the loft bedroom.
Outside, the rear garden has been attractively landscaped and enjoys a good degree of privacy, making it ideal for both relaxing and entertaining. Gated side access leads through to the garage, which is positioned to the rear of the garden, along with additional parking. Full planning permission and architectural plans are in place to convert the garage into a small gym with a bathroom if desired, adding further potential to this fantastic home.
EPC Rating: D
Parking - Off street
Parking - Garage
Disclaimer
By law, we must carry out anti-money laundering checks for buyers and sellers. These are handled on our behalf by Lifetime Legal, who will contact you once you instruct us to sell or have an offer accepted. An £80 fee (incl. VAT) covers required data and any manual checks. This must be paid before we can publish your property (for vendors) or issue a memorandum of sale (for buyers). The fee is non-refundable and paid directly to Lifetime Legal. We receive a portion of this fee for facilitating the checks.
- COUNCIL TAXA payment made to your local authority in order to pay for local services like schools, libraries, and refuse collection. The amount you pay depends on the value of the property.Read more about council Tax in our glossary page.
- Band: C
- PARKINGDetails of how and where vehicles can be parked, and any associated costs.Read more about parking in our glossary page.
- Garage,Off street
- GARDENA property has access to an outdoor space, which could be private or shared.
- Private garden
- ACCESSIBILITYHow a property has been adapted to meet the needs of vulnerable or disabled individuals.Read more about accessibility in our glossary page.
- Ask agent
Energy performance certificate - ask agent
Capel Close, Akeley, MK18
Add an important place to see how long it'd take to get there from our property listings.
__mins driving to your place
Get an instant, personalised result:
- Show sellers you’re serious
- Secure viewings faster with agents
- No impact on your credit score
Affordability
Notes
Staying secure when looking for property
Ensure you're up to date with our latest advice on how to avoid fraud or scams when looking for property online.
Visit our security centre to find out moreDisclaimer - Property reference 4a6fcf71-12f2-4052-9e27-b451f3a73764. The information displayed about this property comprises a property advertisement. Rightmove.co.uk makes no warranty as to the accuracy or completeness of the advertisement or any linked or associated information, and Rightmove has no control over the content. This property advertisement does not constitute property particulars. The information is provided and maintained by Boughtons Estate Agents, Brackley. Please contact the selling agent or developer directly to obtain any information which may be available under the terms of The Energy Performance of Buildings (Certificates and Inspections) (England and Wales) Regulations 2007 or the Home Report if in relation to a residential property in Scotland.
*This is the average speed from the provider with the fastest broadband package available at this postcode. The average speed displayed is based on the download speeds of at least 50% of customers at peak time (8pm to 10pm). Fibre/cable services at the postcode are subject to availability and may differ between properties within a postcode. Speeds can be affected by a range of technical and environmental factors. The speed at the property may be lower than that listed above. You can check the estimated speed and confirm availability to a property prior to purchasing on the broadband provider's website. Providers may increase charges. The information is provided and maintained by Decision Technologies Limited. **This is indicative only and based on a 2-person household with multiple devices and simultaneous usage. Broadband performance is affected by multiple factors including number of occupants and devices, simultaneous usage, router range etc. For more information speak to your broadband provider.
Map data ©OpenStreetMap contributors.





