
Halls Lane, Waltham St. Lawrence, RG10

- PROPERTY TYPE
Detached
- BEDROOMS
4
- BATHROOMS
3
- SIZE
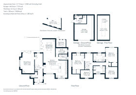
2,280 sq ft
212 sq m
- TENUREDescribes how you own a property. There are different types of tenure - freehold, leasehold, and commonhold.Read more about tenure in our glossary page.
Freehold
Key features
- Four bedrooms
- Two bath/shower rooms (including en suite)
- Double aspect sitting room with log burner and bi fold doors
- Open plan kitchen/breakfast room and family room
- Study
- Utility room and cloakroom
- Detached double garage with utility and shower room
- Fitted timber bar and large paved terrace
- Tranquil garden with wisteria covered pergola
- Approx. 2
Description
A central hallway introduces the home’s refined aesthetic and leads into a superb double aspect sitting room. Herringbone wood flooring, a feature log burner and an elegant bay window create a warm, welcoming atmosphere, while bi fold doors open directly onto the rear terrace for effortless indoor–outdoor living. Designed with modern family life in mind, the open plan family room and kitchen/breakfast room form an impressive open-plan area. The living space is filled with natural light from a sky lantern and offers further access to the garden, while the sleek, kitchen is fitted with quality integrated appliances and centred around a striking island. A dedicated study, utility room and cloakroom complete the ground floor.
A sculptural spiral staircase rises to the first floor, where the main bedroom sits beneath the exposed beams of a vaulted ceiling. This serene retreat includes a luxurious en suite with a contemporary freestanding bath and glass enclosed shower. Three additional bedrooms share a stylish family bathroom.
Outside
Outside, the timber clad double fronted cottage façade and covered porch create an inviting first impression. The extensive gravel driveway provides parking for multiple vehicles and leads to a detached two storey double garage with an electric door, utility area and shower room, ideal for flexible use. The rear garden is perfectly arranged for relaxation and entertaining. A wide paved terrace extends seamlessly from the reception rooms and features a superb fitted timber bar. Beyond, a long lawn edged with mature trees and planting is framed by a beautiful wisteria draped pergola, enhancing the peaceful, idyllic atmosphere. The property is served by LPG gas and septic drainage.
Situation
Halls Lane is positioned within the charming village of Waltham St. Lawrence, offering a pub, historic church, village school and village hall, with a thriving community. Nearby Twyford provides further shops and dining, with Maidenhead, Reading, Henley and Windsor all within easy reach. The area offers excellent leisure opportunities including trails for walking, horse rides and biking, plus a golf and health club at Knowl Hill. Road connections are strong via the M4 (J10 and J8/9) giving access to the M25, Heathrow, Central London and the West Country, while rail services to London are available from Twyford and Maidenhead, with the Elizabeth Line enhancing commuting options.
Property Ref Number:
HAM-63678Brochures
Brochure- COUNCIL TAXA payment made to your local authority in order to pay for local services like schools, libraries, and refuse collection. The amount you pay depends on the value of the property.Read more about council Tax in our glossary page.
- Band: G
- PARKINGDetails of how and where vehicles can be parked, and any associated costs.Read more about parking in our glossary page.
- Garage,Off street
- GARDENA property has access to an outdoor space, which could be private or shared.
- Private garden
- ACCESSIBILITYHow a property has been adapted to meet the needs of vulnerable or disabled individuals.Read more about accessibility in our glossary page.
- Ask agent
Halls Lane, Waltham St. Lawrence, RG10
Add an important place to see how long it'd take to get there from our property listings.
__mins driving to your place
Get an instant, personalised result:
- Show sellers you’re serious
- Secure viewings faster with agents
- No impact on your credit score
Affordability
Notes
Staying secure when looking for property
Ensure you're up to date with our latest advice on how to avoid fraud or scams when looking for property online.
Visit our security centre to find out moreDisclaimer - Property reference a1nQ500000a62opIAA. The information displayed about this property comprises a property advertisement. Rightmove.co.uk makes no warranty as to the accuracy or completeness of the advertisement or any linked or associated information, and Rightmove has no control over the content. This property advertisement does not constitute property particulars. The information is provided and maintained by Hamptons, Maidenhead. Please contact the selling agent or developer directly to obtain any information which may be available under the terms of The Energy Performance of Buildings (Certificates and Inspections) (England and Wales) Regulations 2007 or the Home Report if in relation to a residential property in Scotland.
*This is the average speed from the provider with the fastest broadband package available at this postcode. The average speed displayed is based on the download speeds of at least 50% of customers at peak time (8pm to 10pm). Fibre/cable services at the postcode are subject to availability and may differ between properties within a postcode. Speeds can be affected by a range of technical and environmental factors. The speed at the property may be lower than that listed above. You can check the estimated speed and confirm availability to a property prior to purchasing on the broadband provider's website. Providers may increase charges. The information is provided and maintained by Decision Technologies Limited. **This is indicative only and based on a 2-person household with multiple devices and simultaneous usage. Broadband performance is affected by multiple factors including number of occupants and devices, simultaneous usage, router range etc. For more information speak to your broadband provider.
Map data ©OpenStreetMap contributors.








