North End Road, GOLDERS GREEN NW11
- SIZE AVAILABLE
1,400 sq ft
130 sq m
- SECTOR
High street retail property to lease
Lease details
- Lease available date:
- Ask agent
Description
LOCATION
Outstanding Trading Location - Golders Green NW11
Positioned directly opposite Golders Green Station, this unit benefits from exceptional exposure in one of North West London´s busiest retail hubs. The property sits on a thriving high street with consistently high footfall, surrounded by established operators, national brands, and strong local demand.
This prime position offers excellent visibility, steady passing trade, and outstanding potential for sustained business growth in a proven commercial hotspot.
DESCRIPTION
Tony Alan Estates are delighted to present this exceptional opportunity to acquire a fully refurbished A3 restaurant unit, offered with a secure 16-year lease in the heart of Golders Green.
Extending to approximately 1,400 sq ft, the property provides a well-configured trading space with the potential to accommodate up to 90 covers, making it ideal for a wide range of hospitality concepts. The premises are presented in modern condition, with fixtures and fittings included, allowing for a smooth and immediate start to operations.
Strategically positioned directly opposite Golders Green Station, the unit benefits from outstanding visibility and consistently high footfall, ensuring strong trading potential throughout the day and evening. The surrounding area is home to a vibrant mix of established restaurants, cafés, and national retailers, reinforcing its reputation as a proven and high-demand commercial destination.
Key Details:
Rent: £50,000 per annum
Lease Term: 16 years
Premium: £30,000
Deposit: Quarter´s rent
Ground & Basement seating included (approx. 90 covers total)
Availability: Immediate
This is a rare chance to secure a high-quality restaurant premises in a prime North West London location, perfectly suited for operators seeking long-term growth in a thriving market.
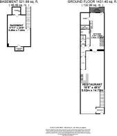
ACCOMMODATION
The premises comprise a total area of approximately 1,400 sq ft, arranged over ground floor and basement levels.
Ground Floor: Main restaurant trading area with seating
Basement: Additional trading space with full head height, suitable for further seating and ancillary use
The property offers a total capacity of approximately 90 seats.
AMENITIES
Amenities:
Fully refurbished and modern interior
Fixtures & fittings included (reasonable condition)
Ground and basement floors with full head height
Potential seating for up to 90 covers
Excellent natural light on the ground floor
High visibility from busy high street location
Directly opposite Golders Green Station (Northern Line)
Surrounded by established retailers, cafés, and restaurants
Immediate availability
SERVICES
Mains electricity
Mains water
Gas supply
Drainage connected to mains sewer
Central heating (where applicable)
Waste disposal facilities available
Fully compliant with current safety and health regulations
TERMS
Lease: Long-term lease of 16 years
Rent: £50,000 per annum
Deposit: Quarter´s rent
Premium: £30,000
Availability: Immediate
Use Class: A3 (Restaurant/Café)
The property is offered on a secure lease with immediate occupation, making it ideal for operators seeking a long-term, high-traffic location in Golders Green.
OTHER
Disclaimer:
The information contained in this advertisement is for general guidance only and does not constitute part of an offer or contract. All measurements, floor areas, and capacities are approximate. Prospective tenants or purchasers should carry out their own investigations and satisfy themselves as to the accuracy of the details, including but not limited to rent, business rates, lease terms, and any planning or licensing requirements. Tony Alan Estates, its employees, and agents accept no liability for any loss or damage arising from reliance on this information.
Energy Performance Certificates
EPC Front PageNorth End Road, GOLDERS GREEN NW11
NEAREST STATIONS
Distances are straight line measurements from the centre of the postcode- Golders Green Station0.1 miles
- Brent Cross Station0.9 miles
- Cricklewood Station1.2 miles
Notes
Disclaimer - Property reference 101757006247. The information displayed about this property comprises a property advertisement. Rightmove.co.uk makes no warranty as to the accuracy or completeness of the advertisement or any linked or associated information, and Rightmove has no control over the content. This property advertisement does not constitute property particulars. The information is provided and maintained by Tony Alan Estates - Commercial, London. Please contact the selling agent or developer directly to obtain any information which may be available under the terms of The Energy Performance of Buildings (Certificates and Inspections) (England and Wales) Regulations 2007 or the Home Report if in relation to a residential property in Scotland.
Map data ©OpenStreetMap contributors.





