
High Street, Ramsey, PE26

- PROPERTY TYPE
Detached
- BEDROOMS
5
- BATHROOMS
1
- SIZE
2,338 sq ft
217 sq m
- TENUREDescribes how you own a property. There are different types of tenure - freehold, leasehold, and commonhold.Read more about tenure in our glossary page.
Freehold
Key features
- IMPRESSIVE 2,338 sq ft FIVE BEDROOM DETACHED VICTORIAN HOME
- STEEPED in HISTORY & RICH in CHARACTER, this EXQUISITE & SUBSTANTIAL VICTORIAN RESIDENCE, DATING BACK to 1848
- OCCUPYING a SIGNIFCANT 0.15 of an ACRE SOUTH FACING PLOT (sts)
- STUNNING PERIOD FEATURES throughout, including HIGH CEILINGS, ELEGANT MOULDINGS & TIMELESS ARCHITECTURAL DETAILS that reflect its HERITAGE
- OFF ROAD PARKING AND GARAGE to the REAR OF THE PROPERTY
- PERFECTLY POSITIONED in the very HEART of RAMSEY, the property places everyday conveniences right on the doorstep. HIGHLY REGARDED PRIMARY & SECONDARY, INDEPENDENT SHOPS, GOLF COURSE & a selection of
- 11 Miles from Huntingdon Train Station - into London Kings Cross in less than 50 minutes
- 28 miles from Cambridge City Centre
Description
OCCUPYING a SIGNIFCANT 0.15 of an ACRE SOUTH FACING PLOT (sts), the home enjoys an ABUNDANCE of NATURAL LIGHT & a WONDERFUL SENSE of SPACE both inside and out, making it ideal for family living and entertaining alike.
PERFECTLY POSITIONED in the very HEART of RAMSEY, the property places everyday conveniences right on the doorstep. HIGHLY REGARDED PRIMARY & SECONDARY, INDEPENDENT SHOPS, GOLF COURSE & a selection of WELCOMING PUBS & EATERIES are all within EASY WALKING DISTANCE, creating a vibrant yet community-focused setting.
For commuters, excellent transport links provide easy access to nearby towns and cities, with Huntingdon just 20 minutes away, Peterborough 30 minutes, and Cambridge reachable within 40 minutes.
A rare opportunity to acquire a distinguished period home in a prime central location, combining historic charm with modern-day convenience.
Ramsey’s High Street is the historic spine of a medieval market town that grew up around Ramsey Abbey (founded in 969 AD). The street follows a sinuous medieval plan with long, narrow burgage plots running back from the road. A major fire in 1731 destroyed much of the High Street, after which many buildings were rebuilt in brick for fire resistance. By the 19th century the street had a mix of terraced and detached brick houses, some with commercial ground floors, set within the evolving market-town character.
27 High Street sits within the Ramsey Conservation Area, which recognises the historic grain of the street, continuous frontages at the pavement edge, glimpses into rear gardens and courtyards, and the transition on the south side toward more open land. The building itself contributes to this character with its solid-brick construction and period detailing typical of 19th-century residential development in the town.
If you have the title deeds, an old estate-agent brochure, or any other document that mentioned 1848, that would be the most reliable clue. For deeper research, the Cambridgeshire County Record Office in Ely holds tithe maps (c.1840s), 19th-century censuses, and building plans that may name the original owner or plot. Local historians via the Ramsey Rural Museum or Ramsey & District Civic Society may also be able to help.
**GUIDE PRICE of £450,000 to £475,000**
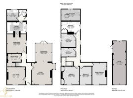
PROPERTY MEASUREMENTS
SNUG/STUDY - 3.84m x 3.57m
PANTRY/STORAGE ROOM - 2.74m x 2.71m
DINING ROOM - 3.95m x 3.92m
LIVING ROOM - 4.55m x 4.22m
CONSERVATORY - 3.81m x 3.41m
KITCHEN - 3.98m x 2.42m
UTILITY ROOM - 2.41m x 2.29m
WC - 1.42m x 1.38m
MASTER BEDROOM - 4.61m x 3.05m
BEDROOM TWO - 3.67m x 3.29m
BEDROOM THREE - 3.66m x 2.48m
BEDROOM FOUR - 3.06m x 2.84m
BEDROOM FIVE - 2.95m x 1.84m
BATHROOM - 4.02m x 2.12m
LOFT ROOM ABOVE UTILITY ROOM - 3.91m x 2.35m
GARAGE - 9.14m x 2.79m
ABOUT RAMSEY
The lovely market town of Ramsey is located north of the larger towns of Huntingdon and St.Ives and was built around the Benedictine Abbey. The town offers a wide range of amenities including shops, restaurants, leisure centre with swimming pool, a primary and secondary school as well as early years children providers. There is also a museum dedicated to rural life and the town annually plays host to one of Britain's largest living history events.
Fast and Direct mainline train links in to London Kings Cross can be found from both Huntingdon (approx 11 miles) and Peterborough (approx 12.5 miles) - travel time into Kings Cross on both services is around 50 minutes. Also available, from St Ives (approx 11.5 miles), is the Guided Busway which provides a traffic free, fast and frequent service connecting the town to Central Cambridge.
PROPERTY DISCLAIMER
We are required by law to conduct anti-money laundering checks on all those selling
or buying a property as prescribed by the Money Laundering Regulations 2017.
Whilst we retain responsibility for ensuring checks and any ongoing monitoring are
carried out correctly, the initial checks are carried out on our behalf by Coadjute who
will contact you once you have agreed to instruct us in your sale or had an offer
accepted on a property you wish to buy. The cost of these checks is £45 + VAT, which covers the cost of obtaining relevant data and any manual checks and
monitoring which might be required. This fee will need to be paid by you in advance
of us publishing your property (in the case of a vendor) or issuing a memorandum of
sale (in the case of a buyer), directly to Coadjute, and is non-refundable. We will
receive some of the fee taken by Coadjute to compensate for its role in the provision of these checks
1. Money Laundering Regulations: Intending purchasers will be asked to produce identification documentation at a later stage and we would ask for your co-operation in order that there will be no delay in agreeing the sale.
2. General: While we endeavour to make our sales particulars fair, accurate and reliable, they are only a general guide to the property and, accordingly, if there is any point which is of particular importance to you, please contact the office and we will be pleased to check the position for you, especially if you are contemplating travelling some distance to view the property.
3. The measurements indicated are supplied for guidance only and as such must be considered incorrect.
4. Services: Please note we have not tested the services or any of the equipment or appliances in this property, accordingly we strongly advise prospective buyers to commission their own survey or service reports before finalising their offer to purchase.
5. These particulars are issued in good faith but do not constitute representations of fact or form part of any offer or contract. The matters referred to in these details should be independently verified by prospective buyers. Neither Lennon James or any of its employees have any authority to make or give any representation or warranty in relation to this property.
- COUNCIL TAXA payment made to your local authority in order to pay for local services like schools, libraries, and refuse collection. The amount you pay depends on the value of the property.Read more about council Tax in our glossary page.
- Ask agent
- PARKINGDetails of how and where vehicles can be parked, and any associated costs.Read more about parking in our glossary page.
- Yes
- GARDENA property has access to an outdoor space, which could be private or shared.
- Yes
- ACCESSIBILITYHow a property has been adapted to meet the needs of vulnerable or disabled individuals.Read more about accessibility in our glossary page.
- Ask agent
High Street, Ramsey, PE26
Add an important place to see how long it'd take to get there from our property listings.
__mins driving to your place
Get an instant, personalised result:
- Show sellers you’re serious
- Secure viewings faster with agents
- No impact on your credit score
Affordability
Notes
Staying secure when looking for property
Ensure you're up to date with our latest advice on how to avoid fraud or scams when looking for property online.
Visit our security centre to find out moreDisclaimer - Property reference RX757308. The information displayed about this property comprises a property advertisement. Rightmove.co.uk makes no warranty as to the accuracy or completeness of the advertisement or any linked or associated information, and Rightmove has no control over the content. This property advertisement does not constitute property particulars. The information is provided and maintained by Lennon James Property, Abbots Ripton. Please contact the selling agent or developer directly to obtain any information which may be available under the terms of The Energy Performance of Buildings (Certificates and Inspections) (England and Wales) Regulations 2007 or the Home Report if in relation to a residential property in Scotland.
*This is the average speed from the provider with the fastest broadband package available at this postcode. The average speed displayed is based on the download speeds of at least 50% of customers at peak time (8pm to 10pm). Fibre/cable services at the postcode are subject to availability and may differ between properties within a postcode. Speeds can be affected by a range of technical and environmental factors. The speed at the property may be lower than that listed above. You can check the estimated speed and confirm availability to a property prior to purchasing on the broadband provider's website. Providers may increase charges. The information is provided and maintained by Decision Technologies Limited. **This is indicative only and based on a 2-person household with multiple devices and simultaneous usage. Broadband performance is affected by multiple factors including number of occupants and devices, simultaneous usage, router range etc. For more information speak to your broadband provider.
Map data ©OpenStreetMap contributors.





