Rosary Manor, Mill Hill Village

- PROPERTY TYPE
Semi-Detached
- BEDROOMS
4
- BATHROOMS
4
- SIZE
Ask agent
- TENUREDescribes how you own a property. There are different types of tenure - freehold, leasehold, and commonhold.Read more about tenure in our glossary page.
Freehold
Description
A Masterpiece, The Chapel at Rosary Manor, a blank canvas.
BEING SOLD AS A REFURBISHMENT PROJECT WITH FULL PLANNING PERMISSION AND BUILDING REGS ALLOWING A BUYER TO DESIGN BUILD AND FINISH THEIR DREAM HOME.
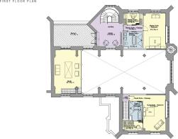
6,500 Sq Ft 4 bedroom, 4 bathrooms, leisure floor | Grade II Listed Landmark
Rarely does a building of this scale and soul become available in such a prestigious enclave, a place in Mill Hill history.
The Opportunity
Dating back to 1867, An architectural rarity," The Chapel" at Rosary Manor offers the chance to own one of North London’s most significant private homes set within the exclusive, high-security gates of the Rosary Manor estate.
The Vision
The finished property will be a masterclass in volume and light, designed to honour the building's heritage while delivering prime modern luxury:
The Grand Reception: A magnificent, vaulted open-plan living and dining featuring soaring ceiling heights and original architectural drama.
The Main suite: A galleried main suite overlooking the double-height void, featuring direct access to a private, terrace with panoramic views over the huge garden towards Greenbelt.
The Gallery: A stunning galleried study suspended above the main reception space perfect for a home office.
Entertainment & Leisure: A wellness suite with Sauna , cold plunge and gym, dedicated home cinema, a cozy snug for intimate evenings, and four expansive bedroom suites.
The Grounds: A 90ft private rear garden and a large master terrace overlooking acres of protected greenbelt countryside.
Location & Lifestyle
Just off The Ridgeway, the heart of Mill Hill Village, this home offers a "country life" atmosphere within London. You are moments from elite schooling and close to Mill Hill Broadway's boutiques, all while being a short commute from the City and West End.
Key Specifications:
Internal Area:Approx. 6,500 sq. ft.
Parking:4 Spaces total 2 reserved on site and 2 underground in the adjacent Village Green development.
Views:Unrivaled vistas over rolling greenbelt fields.
View the Future
Explore the360° Virtual Tosee the incredible potential of this property.
- COUNCIL TAXA payment made to your local authority in order to pay for local services like schools, libraries, and refuse collection. The amount you pay depends on the value of the property.Read more about council Tax in our glossary page.
- Ask agent
- PARKINGDetails of how and where vehicles can be parked, and any associated costs.Read more about parking in our glossary page.
- Yes
- GARDENA property has access to an outdoor space, which could be private or shared.
- Yes
- ACCESSIBILITYHow a property has been adapted to meet the needs of vulnerable or disabled individuals.Read more about accessibility in our glossary page.
- Ask agent
Energy performance certificate - ask agent
Rosary Manor, Mill Hill Village
Add an important place to see how long it'd take to get there from our property listings.
__mins driving to your place
Get an instant, personalised result:
- Show sellers you’re serious
- Secure viewings faster with agents
- No impact on your credit score
Affordability
Notes
Staying secure when looking for property
Ensure you're up to date with our latest advice on how to avoid fraud or scams when looking for property online.
Visit our security centre to find out moreDisclaimer - Property reference 5305. The information displayed about this property comprises a property advertisement. Rightmove.co.uk makes no warranty as to the accuracy or completeness of the advertisement or any linked or associated information, and Rightmove has no control over the content. This property advertisement does not constitute property particulars. The information is provided and maintained by Godfrey And Barr, Mill Hill. Please contact the selling agent or developer directly to obtain any information which may be available under the terms of The Energy Performance of Buildings (Certificates and Inspections) (England and Wales) Regulations 2007 or the Home Report if in relation to a residential property in Scotland.
*This is the average speed from the provider with the fastest broadband package available at this postcode. The average speed displayed is based on the download speeds of at least 50% of customers at peak time (8pm to 10pm). Fibre/cable services at the postcode are subject to availability and may differ between properties within a postcode. Speeds can be affected by a range of technical and environmental factors. The speed at the property may be lower than that listed above. You can check the estimated speed and confirm availability to a property prior to purchasing on the broadband provider's website. Providers may increase charges. The information is provided and maintained by Decision Technologies Limited. **This is indicative only and based on a 2-person household with multiple devices and simultaneous usage. Broadband performance is affected by multiple factors including number of occupants and devices, simultaneous usage, router range etc. For more information speak to your broadband provider.
Map data ©OpenStreetMap contributors.








