
Eastmore Court, Bouldnor Road, Yarmouth

- PROPERTY TYPE
End of Terrace
- BEDROOMS
3
- BATHROOMS
1
- SIZE
Ask agent
Key features
- Beautifully Presented Throughout
- Three Bedrooms
- Solent Views
- Close to Yarmouth
- Sunny Rear Garden
Description
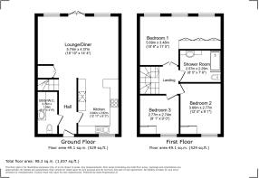
This elegant property is full of modern touches, comprising spacious entrance hall, utility room with wc and plentiful storage, large light living area with double patio doors to the garden, and beautiful, well appointed kitchen equipped with quality integrated appliances on the ground floor. The first floor features three double bedrooms, all with integral storage and with wonderful sea views to the master bedroom at the rear, and a generous shower room with overhead rainfall shower and fitted storage. The loft space has been fully boarded and benefits from flooring, providing useful additional space. Externally, the property benefits from a pretty, low maintenance garden, featuring decking and patio areas as well as multiple outbuildings in which to enjoy the sun. There is allocated parking to the front of the property, as well as visitor parking nearby. The property also benefits from the use of a communal store room, ideal for storing bikes or paddleboards.
Eastmore Court is ideally located within walking distance of the picturesque harbour town of Yarmouth, which boasts two excellent sailing clubs, boutique shops, and restaurants, as well as a car ferry crossing to Lymington. Other services include a pharmacy, dentist, local shop, and post office. The island's beautiful coastal path will take keen walkers east to the unspoilt Newtown Creek, or west towards the famous 'Needles' landmark. Nearby beaches include the stunning bays at Freshwater Bay, Colwell Bay, and Totland Bay, each within a short distance by car, and respectively boasting beachside restaurants 'The Albion', 'The Hut', and 'The Waterfront'. Local bus services include a regular route to the county town of Newport, as well as the local ‘FYT’ bus service.
Tenure
Leasehold. 999 years from 1996. Ground rent circa £50 per annum. Maintenance circa £100 per month including maintenance of shared areas and buildings insurance.
Council Tax
Band D
NB.
Successful buyers will be required to complete online identity checks provided by Lifetime Legal. The cost of these checks is £80 plus VAT per purchase which is paid in advance, directly to Lifetime Legal. This charge verifies your identity in line with our obligations as agreed with HMRC and includes mover protection insurance to protect against the cost of an abortive purchase.
Brochures
Particulars- COUNCIL TAXA payment made to your local authority in order to pay for local services like schools, libraries, and refuse collection. The amount you pay depends on the value of the property.Read more about council Tax in our glossary page.
- Band: D
- PARKINGDetails of how and where vehicles can be parked, and any associated costs.Read more about parking in our glossary page.
- Yes
- GARDENA property has access to an outdoor space, which could be private or shared.
- Yes
- ACCESSIBILITYHow a property has been adapted to meet the needs of vulnerable or disabled individuals.Read more about accessibility in our glossary page.
- Ask agent
Eastmore Court, Bouldnor Road, Yarmouth
Add an important place to see how long it'd take to get there from our property listings.
__mins driving to your place
Get an instant, personalised result:
- Show sellers you’re serious
- Secure viewings faster with agents
- No impact on your credit score
Affordability
Notes
Staying secure when looking for property
Ensure you're up to date with our latest advice on how to avoid fraud or scams when looking for property online.
Visit our security centre to find out moreDisclaimer - Property reference FRS250043. The information displayed about this property comprises a property advertisement. Rightmove.co.uk makes no warranty as to the accuracy or completeness of the advertisement or any linked or associated information, and Rightmove has no control over the content. This property advertisement does not constitute property particulars. The information is provided and maintained by Hose Rhodes Dickson, Freshwater. Please contact the selling agent or developer directly to obtain any information which may be available under the terms of The Energy Performance of Buildings (Certificates and Inspections) (England and Wales) Regulations 2007 or the Home Report if in relation to a residential property in Scotland.
*This is the average speed from the provider with the fastest broadband package available at this postcode. The average speed displayed is based on the download speeds of at least 50% of customers at peak time (8pm to 10pm). Fibre/cable services at the postcode are subject to availability and may differ between properties within a postcode. Speeds can be affected by a range of technical and environmental factors. The speed at the property may be lower than that listed above. You can check the estimated speed and confirm availability to a property prior to purchasing on the broadband provider's website. Providers may increase charges. The information is provided and maintained by Decision Technologies Limited. **This is indicative only and based on a 2-person household with multiple devices and simultaneous usage. Broadband performance is affected by multiple factors including number of occupants and devices, simultaneous usage, router range etc. For more information speak to your broadband provider.
Map data ©OpenStreetMap contributors.





