Building Plot, Frome
- PROPERTY TYPE
Plot
- BEDROOMS
4
- BATHROOMS
2
- SIZE
Ask agent
Key features
- Building Plot
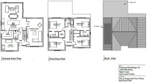
- Full Planning Permission For A 2,487 sqft Detached Dwelling
- Northern Fringe of Frome
- On Site Water & Drainage
- Secluded Setting
Description
Building Plot, Frome
NEAREST STATIONS
Distances are straight line measurements from the centre of the postcode- Frome Station1.1 miles
- Dilton Marsh Station4.8 miles
Notes
Disclaimer - Property reference 34551371. The information displayed about this property comprises a property advertisement. Rightmove.co.uk makes no warranty as to the accuracy or completeness of the advertisement or any linked or associated information, and Rightmove has no control over the content. This property advertisement does not constitute property particulars. The information is provided and maintained by Rogers & Co, Frome. Please contact the selling agent or developer directly to obtain any information which may be available under the terms of The Energy Performance of Buildings (Certificates and Inspections) (England and Wales) Regulations 2007 or the Home Report if in relation to a residential property in Scotland.
Map data ©OpenStreetMap contributors.






