
Grovebury Court, Southgate, N14
- PROPERTY TYPE
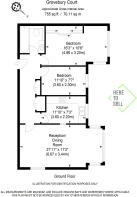
Ground Flat
- BEDROOMS
2
- BATHROOMS
1
- SIZE
755 sq ft
70 sq m
Key features
- Purpose Built Ground Floor Flat
- Chain Free
- Two Large Double Bedrooms
- Large Double Aspect Reception
- Separate Kitchen/Diner
- Private Rear Communal Garden
- Long Lease Of 170 Years
- Double Glazed & Central Heating
- Close To Southgate Underground Station & High Street
- Close To Local Parks & Amenities
Description
Comprising of a stunning large reception room that boasts dual aspect double glazed windows. The kitchen diner is equipped with fitted cabinetry offering ample storage and high-end integrated appliances. Both master and second bedrooms are well proportioned. The stylish family bathroom boasts ceramic tiled walls, white bathroom suite with chrome fittings. Externally there is a well maintained communal garden and ample parking.
The property is situated a moments walk to Southgate tube station and Southgate high street with a variety of shops, restaurants, trendy coffee shops and patisseries on offer. Other benefits nearby include Grovelands, Oakwood, Broomfield and Trent parks and open spaces. Winchmore Hill mainline station is also close by. Being well suited for young professionals and families alike and set within a modern contemporary development in the heart of Southgate, this property is not to be missed. An internal viewing is highly recommended.
Lease Information
189 years from 24 March 2004. All prospective purchasers are advised to make their own enquiries via a solicitor.
Service Charges
We understand the service charge on the property is circa £1,200 per annum including building insurance, with zero ground rent per annum. All prospective purchasers are advised to make their own enquiries via a solicitor.
- COUNCIL TAXA payment made to your local authority in order to pay for local services like schools, libraries, and refuse collection. The amount you pay depends on the value of the property.Read more about council Tax in our glossary page.
- Band: D
- PARKINGDetails of how and where vehicles can be parked, and any associated costs.Read more about parking in our glossary page.
- Yes
- GARDENA property has access to an outdoor space, which could be private or shared.
- Ask agent
- ACCESSIBILITYHow a property has been adapted to meet the needs of vulnerable or disabled individuals.Read more about accessibility in our glossary page.
- Ask agent
Grovebury Court, Southgate, N14
Add an important place to see how long it'd take to get there from our property listings.
__mins driving to your place
Get an instant, personalised result:
- Show sellers you’re serious
- Secure viewings faster with agents
- No impact on your credit score
Affordability
Notes
Staying secure when looking for property
Ensure you're up to date with our latest advice on how to avoid fraud or scams when looking for property online.
Visit our security centre to find out moreDisclaimer - Property reference HLV-33516488. The information displayed about this property comprises a property advertisement. Rightmove.co.uk makes no warranty as to the accuracy or completeness of the advertisement or any linked or associated information, and Rightmove has no control over the content. This property advertisement does not constitute property particulars. The information is provided and maintained by HERE TO SELL, Covering London. Please contact the selling agent or developer directly to obtain any information which may be available under the terms of The Energy Performance of Buildings (Certificates and Inspections) (England and Wales) Regulations 2007 or the Home Report if in relation to a residential property in Scotland.
*This is the average speed from the provider with the fastest broadband package available at this postcode. The average speed displayed is based on the download speeds of at least 50% of customers at peak time (8pm to 10pm). Fibre/cable services at the postcode are subject to availability and may differ between properties within a postcode. Speeds can be affected by a range of technical and environmental factors. The speed at the property may be lower than that listed above. You can check the estimated speed and confirm availability to a property prior to purchasing on the broadband provider's website. Providers may increase charges. The information is provided and maintained by Decision Technologies Limited. **This is indicative only and based on a 2-person household with multiple devices and simultaneous usage. Broadband performance is affected by multiple factors including number of occupants and devices, simultaneous usage, router range etc. For more information speak to your broadband provider.
Map data ©OpenStreetMap contributors.






