
High Street, RH7
- PROPERTY TYPE
Land
- BEDROOMS
4
- SIZE
Ask agent
Key features
- Land With Planning Permmisson
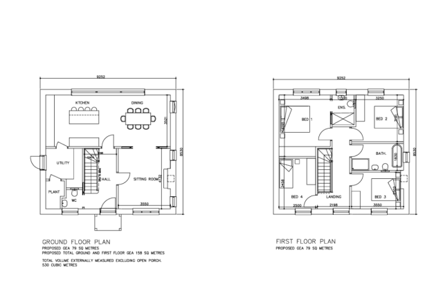
- Four Bedrooms
- Open Kitchen/Dining
- Utility and Downstairs W.C.
- En-suite and Bathroom
- Gardens
- Off Road Parking
- Village Location
Description
Tucked discreetly away just off the High Street, this generous plot enjoys a wonderful sense of privacy and tranquillity, creating the perfect setting for a truly special home. With approved plans already in place, the groundwork has been done for you, allowing a buyer or developer to bring to life an impressive and beautifully designed residence tailored for modern family living.
This is a remarkable chance to build a bespoke "forever home" in a charming village setting, surrounded by countryside yet incredibly well connected.
Dormansland is a thriving and popular village offering a welcoming community atmosphere along with excellent everyday amenities. The village benefits from a mainline railway station providing convenient access into London, making it ideal for commuters. There are also highly regarded primary and secondary schools within close proximity, further enhancing its appeal for families.
Whether you are an individual looking to create your dream home or a developer seeking a fantastic project in a desirable location, this outstanding plot represents an opportunity not to be missed.
planning ref 2025/116
High Street, RH7
NEAREST STATIONS
Distances are straight line measurements from the centre of the postcode- Dormans Station0.7 miles
- Lingfield Station1.2 miles
- East Grinstead Station2.7 miles



Notes
Disclaimer - Property reference new6765. The information displayed about this property comprises a property advertisement. Rightmove.co.uk makes no warranty as to the accuracy or completeness of the advertisement or any linked or associated information, and Rightmove has no control over the content. This property advertisement does not constitute property particulars. The information is provided and maintained by Garnham H Bewley, East Grinstead. Please contact the selling agent or developer directly to obtain any information which may be available under the terms of The Energy Performance of Buildings (Certificates and Inspections) (England and Wales) Regulations 2007 or the Home Report if in relation to a residential property in Scotland.
Map data ©OpenStreetMap contributors.






