Kingsfield Lane, Longwell Green, Bristol
Letting details
- Let available date:
- Ask agent
- PROPERTY TYPE
Commercial Property
- SIZE
5,990 sq ft
556 sq m
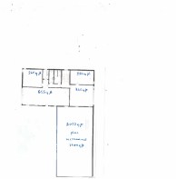
Description
Location: Adjacent to A4174 Avon Ring Road with access from Aldermoor Way and Marsham Way. Junction 1 of the M32 connection to the M4 approx. 7 miles to the North and 1/2 mile South to the A4 Bristol to Bath.
Description: Steel framed with brick and profiled insulated cladded elevations under a pitched roof.
Accommodation: Warehouse and storage 3,972sq ft including mezzanine floor , 2018 sq ft office space.
The warehouse is accessed via roller shutter door.
Car parking for 6.
Services: Mains water, gas & electricity. Powermatic gas boiler to warehouse & Worcester Bosch gas boilers to offices.
Tenure: The property is available by way of a new Full repairing & Insuring (FRI) lease for a term of years to be agreed, subject to status.
Rent: Available upon request
Legal: Each party to bear their own legal, surveyors or other costs incurred in any transaction.
Brochures
Kingsfield Lane, Longwell Green, BristolBrochureKingsfield Lane, Longwell Green, Bristol
NEAREST STATIONS
Distances are straight line measurements from the centre of the postcode- Keynsham Station2.2 miles
- Lawrence Hill Station2.7 miles
- Stapleton Road Station3.0 miles
Notes
Disclaimer - Property reference 34167456. The information displayed about this property comprises a property advertisement. Rightmove.co.uk makes no warranty as to the accuracy or completeness of the advertisement or any linked or associated information, and Rightmove has no control over the content. This property advertisement does not constitute property particulars. The information is provided and maintained by Davies & Way, Keynsham. Please contact the selling agent or developer directly to obtain any information which may be available under the terms of The Energy Performance of Buildings (Certificates and Inspections) (England and Wales) Regulations 2007 or the Home Report if in relation to a residential property in Scotland.
Map data ©OpenStreetMap contributors.





