Myrtle Park, Glasgow, G42
- PROPERTY TYPE
Flat
- BEDROOMS
3
- BATHROOMS
1
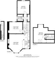
- SIZE
990 sq ft
92 sq m
- TENUREDescribes how you own a property. There are different types of tenure - freehold, leasehold, and commonhold.Read more about tenure in our glossary page.
Freehold
Key features
- Three bedrooms
- Upper conversion
- Walk in condition
- Prime location
- Double glazing
- Gas central heating
- Excellent transport links
- Private garden
- Close to local schooling
Description
***CLOSING DATE THURSDAY 2ND APRIL 2026 AT 12 NOON*** Shanta Residential is delighted to present to the market this stunning, three bedroom upper conversion in the ever popular Crosshill area of Glasgow. Within walking distance of the local schooling, shops and railway stations, this property is ideally situated for families and those looking to commute to the city and beyond. The open plan lounge/kitchen is the true central hub of the home with a wonderful sociable feel to the space. The living area is decorated beautifully and offers a wealth of character with its large bay windows, traditional cornicing and cosy log burner. The kitchen has been thoughtfully laid out with both wall shelving and base units, gas hob and free standing appliances, offering plenty of storage and ample working space. The property offers three, good sized, flexible double bedrooms. The master bedroom offers wood effect flooring and original window shutter doors creating a traditional but warm space to relax. Upstairs the attic has been converted to a fantastic spacious bedroom with staircase access. The third bedroom is currently being used as a family room and would suit a range of uses including guest room, additional living space or home office. Completing the home is the well designed, bright bathroom boasting a full sized bath, contemporary fittings and a crisp tiled finish. Outside the property benefits from a private garden space with patio areas to enjoy the summer sun. Myrtle Park is ideally located for a whole range of amenities, with shops, cafes and supermarkets all within walking distance. There are excellent transport links with frequent buses and train services from Crosshill train station. With its excellent location, abundance of storage, double glazing, gas central heating and off street parking, we expect this property to be popular and would advise early viewing to avoid disappointment.
EPC Rating: D
- COUNCIL TAXA payment made to your local authority in order to pay for local services like schools, libraries, and refuse collection. The amount you pay depends on the value of the property.Read more about council Tax in our glossary page.
- Band: C
- PARKINGDetails of how and where vehicles can be parked, and any associated costs.Read more about parking in our glossary page.
- Yes
- GARDENA property has access to an outdoor space, which could be private or shared.
- Yes
- ACCESSIBILITYHow a property has been adapted to meet the needs of vulnerable or disabled individuals.Read more about accessibility in our glossary page.
- Ask agent
Energy performance certificate - ask agent
Myrtle Park, Glasgow, G42
Add an important place to see how long it'd take to get there from our property listings.
__mins driving to your place
Affordability
Get an instant, personalised result:
- Show sellers you’re serious
- Secure viewings faster with agents
- No impact on your credit score
Notes
Staying secure when looking for property
Ensure you're up to date with our latest advice on how to avoid fraud or scams when looking for property online.
Visit our security centre to find out moreDisclaimer - Property reference d2203260-ef7e-4ca3-aee7-69aadc76944e. The information displayed about this property comprises a property advertisement. Rightmove.co.uk makes no warranty as to the accuracy or completeness of the advertisement or any linked or associated information, and Rightmove has no control over the content. This property advertisement does not constitute property particulars. The information is provided and maintained by Shanta Residential, Glasgow. Please contact the selling agent or developer directly to obtain any information which may be available under the terms of The Energy Performance of Buildings (Certificates and Inspections) (England and Wales) Regulations 2007 or the Home Report if in relation to a residential property in Scotland.
*This is the average speed from the provider with the fastest broadband package available at this postcode. The average speed displayed is based on the download speeds of at least 50% of customers at peak time (8pm to 10pm). Fibre/cable services at the postcode are subject to availability and may differ between properties within a postcode. Speeds can be affected by a range of technical and environmental factors. The speed at the property may be lower than that listed above. You can check the estimated speed and confirm availability to a property prior to purchasing on the broadband provider's website. Providers may increase charges. The information is provided and maintained by Decision Technologies Limited. **This is indicative only and based on a 2-person household with multiple devices and simultaneous usage. Broadband performance is affected by multiple factors including number of occupants and devices, simultaneous usage, router range etc. For more information speak to your broadband provider.
Map data ©OpenStreetMap contributors.




