
Westgate, Driffield, YO25 6TD

- PROPERTY TYPE
Terraced
- BEDROOMS
3
- BATHROOMS
1
- SIZE
Ask agent
- TENUREDescribes how you own a property. There are different types of tenure - freehold, leasehold, and commonhold.Read more about tenure in our glossary page.
Freehold
Key features
- Close To Town Centre
- Three Bedrooms
- Mid Terrace
- Private Gardens
- Stylish Throughout
- Appealing To A Variety Of Buyers
Description
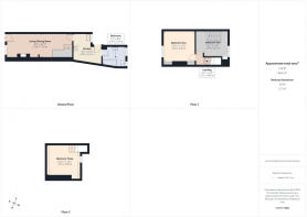
The property briefly comprises:- entry to the lounge/dining room, kitchen, downstairs bathroom, first floor landing with primary bedroom, additional bedroom with stairs leading up to the loft space. There is a rear garden with side access.
LOCATION
The property is located in the heart of Driffield. The town offers an excellent range of shopping facilities including national stores such as W H Smiths, Boots, Tesco's, Lidl and Iceland Foods alongside a wide variety, cafes, restaurants, sports clubs and well regarded schools. The transport links provide easy access to Beverley, Hull, Bridlington, Scarborough and beyond.
THE ACCOMMODATION COMPRISES:-
LOUNGE/DINING ROOM- 8'8 (2.65m) x 23'3 (7.10m)
Open plan living/dining room flooded with natural light and a cosy, homely feel with window and door to the front aspect, fitted wooden shutter blinds, inset spotlights, stairs leading to the first floor landing, understairs cupboard, charming fireplace with log burning stove, tiled hearth and exposed brick surround, laminated flooring, radiator, TV point and power points.
KITCHEN- 9'5 (2.87m) x 9'10 (3.01m)
Window and door to the rear aspect with fitted wooden shutter blinds, inset spotlights, tiled splash back, a range of wall and base units with laminated worktops, sink with drainer unit, space for fridge/freezer, plumbing for washing machine, freestanding gas oven with gas hob, laminated flooring, radiator and power points.
BATHROOM- 7'9 (2.39m) x 8'3 (2.53m)
Windows to the rear aspect, inset spotlights, wall mounted gas combi boiler, partially tiled walls, tiled splash back, three piece bathroom suite comprising:- low flush WC, sink with pedestal, panelled bath with over head shower attachment, built in storage cupboard, tiled flooring, radiator and extractor fan.
FIRST FLOOR LANDING- 3'11 (1.21m) x 2'9 (0.86m)
Fitted carpets.
BEDROOM ONE- 10'11 (3.34m) x 11'4 (3.64m)
Well presented double bedroom, windows to the front aspect with fitted wooden shutter blinds, picture rail, built in wardrobes, fitted carpets, radiator and power points.
BEDROOM TWO- 9'1 (2.79m) x 11'6 (3.52m)
Window to the rear aspect with fitted wooden shutter blinds, stairs leading up to the attic space, built in storage cupboard, laminated flooring, radiator and power points.
SECOND FLOOR
BEDROOM THREE- 10'11 (3.33m) x 12'1 (3.69m)
Additional bedroom space which is versatile with window to the rear aspect, access to the eaves, built in shelving, fitted carpets, radiator, TV point and power points.
GARDEN
Walled, South-Westerly facing garden which is mainly laid to lawn, shrub borders, decking area with brick built outbuilding, outside tap, fencing and gated side access making it fully secure.
PARKING
On street parking.
SERVICES
Understood to all be connected to mains. Mains gas, water and electric.
TENURE
The property is Freehold and offered with the benefit of vacant possession upon completion.
COUNCIL TAX BAND
Council Tax is payable to the East Riding of Yorkshire Council. The property is shown on the Council Tax Property Bandings List in Valuation Band 'A'.
EPC
This property's energy rating is E.
VIEWING
Strictly by appointment with the sole agents.
FREE VALUATION
If you are looking to sell your own property, we will be very happy to provide you with a free, no obligation market appraisal and valuation. We offer very competitive fees and an outstanding personal service that is rated 5 star by our fully verified clients.
ANTI-MONEY LAUNDERING (AML) REGULATIONS
In accordance with the Money Laundering, Terrorist Financing and Transfer of Funds (Information on the Payer) Regulations 2017, we are required to carry out identity checks on all purchasers. A charge of £25 + VAT per person will be payable by the purchaser to cover the cost of these checks. This fee is non-refundable and is payable upon acceptance of an offer.
Brochures
Brochure 1- COUNCIL TAXA payment made to your local authority in order to pay for local services like schools, libraries, and refuse collection. The amount you pay depends on the value of the property.Read more about council Tax in our glossary page.
- Band: A
- PARKINGDetails of how and where vehicles can be parked, and any associated costs.Read more about parking in our glossary page.
- Ask agent
- GARDENA property has access to an outdoor space, which could be private or shared.
- Yes
- ACCESSIBILITYHow a property has been adapted to meet the needs of vulnerable or disabled individuals.Read more about accessibility in our glossary page.
- Ask agent
Westgate, Driffield, YO25 6TD
Add an important place to see how long it'd take to get there from our property listings.
__mins driving to your place
Get an instant, personalised result:
- Show sellers you’re serious
- Secure viewings faster with agents
- No impact on your credit score
Affordability
Notes
Staying secure when looking for property
Ensure you're up to date with our latest advice on how to avoid fraud or scams when looking for property online.
Visit our security centre to find out moreDisclaimer - Property reference dah_1489987953. The information displayed about this property comprises a property advertisement. Rightmove.co.uk makes no warranty as to the accuracy or completeness of the advertisement or any linked or associated information, and Rightmove has no control over the content. This property advertisement does not constitute property particulars. The information is provided and maintained by Dee Atkinson & Harrison, Driffield. Please contact the selling agent or developer directly to obtain any information which may be available under the terms of The Energy Performance of Buildings (Certificates and Inspections) (England and Wales) Regulations 2007 or the Home Report if in relation to a residential property in Scotland.
*This is the average speed from the provider with the fastest broadband package available at this postcode. The average speed displayed is based on the download speeds of at least 50% of customers at peak time (8pm to 10pm). Fibre/cable services at the postcode are subject to availability and may differ between properties within a postcode. Speeds can be affected by a range of technical and environmental factors. The speed at the property may be lower than that listed above. You can check the estimated speed and confirm availability to a property prior to purchasing on the broadband provider's website. Providers may increase charges. The information is provided and maintained by Decision Technologies Limited. **This is indicative only and based on a 2-person household with multiple devices and simultaneous usage. Broadband performance is affected by multiple factors including number of occupants and devices, simultaneous usage, router range etc. For more information speak to your broadband provider.
Map data ©OpenStreetMap contributors.









