
Arthur Street, Kenilworth

- PROPERTY TYPE
Semi-Detached
- BEDROOMS
2
- BATHROOMS
1
- SIZE
953 sq ft
89 sq m
- TENUREDescribes how you own a property. There are different types of tenure - freehold, leasehold, and commonhold.Read more about tenure in our glossary page.
Freehold
Key features
- Extended Semi Detached House
- Ample Driveway Parking
- Two Double Bedrooms
- Large Kitchen With Appliances
- Spacious Lounge/Diner
- super, Convenient Location
- EPC Rating D
Description
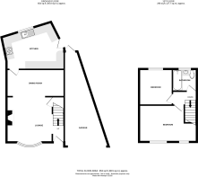
OPEN PLAN LOUNGE/DINER AND HALL 19' 8" x 5' 2" (5.99m x 1.57m) With staircase to first floor, bay window with oak sill, anthracite radiator and log burner with oak mantel over. Purpose built handle-less under stairs storage cupboards and in the dining area there is space for a dining room furniture. Radiator.
EXTENDED KITCHEN 11' 5" x 14' 8" (3.48m x 4.47m) A modern, extended kitchen providing plenty of space with an extensive range of worktops, glass upstands and a large amount of cream cupboard and drawer units with matching wall units, one and a half bowl white enamel sink unit having mixer tap over and deep drawers under. Beko range cooker with feature glass splashback and extractor hood over. Space and plumbing for dishwasher if required. Tall pull out larder units, side by side fridge freezer, space and plumbing for a washing machine and personal side entrance door.
FIRST FLOOR LANDING With access to the roof space via pull down loft ladder.
DOUBLE BEDROOM ONE 15' 2" x 10' 1" (4.62m x 3.07m) A large bedroom having modern anthracite radiator and a built in wardrobe with two double doors.
DOUBLE BEDROOM TWO 9' 7" x 8' 8" (2.92m x 2.64m) A second double bedroom overlooking the rear garden and having a modern anthracite radiator and wooden flooring.
BATHROOM A modern bathroom with a panelled bath having shower over and glazed shower screen. Vanity wash basin with storage under and concealed cistern W.C. Complementary tiling and heated towel radiator.
OUTSIDE
LARGE GARAGE A larger than average garage having light, power and under eaves storage. to the rear of the garage is an outside tap. To the front of the garage is an EV Charging point.
PARKING The front of the property provides full width driveway parking for several vehicles which is a great advantage to this home.
REAR GARDEN The rear garden enjoys a sunny aspect, there is a large full width patio area which is perfect for summer entertaining and bbq's a couple of steps then leads up to the area of lawn with a further hardstanding area to the rear of the garden for a shed. Timber fencing forms the boundaries.
Brochures
Brochure Arthur S...- COUNCIL TAXA payment made to your local authority in order to pay for local services like schools, libraries, and refuse collection. The amount you pay depends on the value of the property.Read more about council Tax in our glossary page.
- Band: C
- PARKINGDetails of how and where vehicles can be parked, and any associated costs.Read more about parking in our glossary page.
- Garage,Off street
- GARDENA property has access to an outdoor space, which could be private or shared.
- Yes
- ACCESSIBILITYHow a property has been adapted to meet the needs of vulnerable or disabled individuals.Read more about accessibility in our glossary page.
- Ask agent
Arthur Street, Kenilworth
Add an important place to see how long it'd take to get there from our property listings.
__mins driving to your place
Get an instant, personalised result:
- Show sellers you’re serious
- Secure viewings faster with agents
- No impact on your credit score

Affordability
Notes
Staying secure when looking for property
Ensure you're up to date with our latest advice on how to avoid fraud or scams when looking for property online.
Visit our security centre to find out moreDisclaimer - Property reference 103644001896. The information displayed about this property comprises a property advertisement. Rightmove.co.uk makes no warranty as to the accuracy or completeness of the advertisement or any linked or associated information, and Rightmove has no control over the content. This property advertisement does not constitute property particulars. The information is provided and maintained by Julie Philpot, Kenilworth. Please contact the selling agent or developer directly to obtain any information which may be available under the terms of The Energy Performance of Buildings (Certificates and Inspections) (England and Wales) Regulations 2007 or the Home Report if in relation to a residential property in Scotland.
*This is the average speed from the provider with the fastest broadband package available at this postcode. The average speed displayed is based on the download speeds of at least 50% of customers at peak time (8pm to 10pm). Fibre/cable services at the postcode are subject to availability and may differ between properties within a postcode. Speeds can be affected by a range of technical and environmental factors. The speed at the property may be lower than that listed above. You can check the estimated speed and confirm availability to a property prior to purchasing on the broadband provider's website. Providers may increase charges. The information is provided and maintained by Decision Technologies Limited. **This is indicative only and based on a 2-person household with multiple devices and simultaneous usage. Broadband performance is affected by multiple factors including number of occupants and devices, simultaneous usage, router range etc. For more information speak to your broadband provider.
Map data ©OpenStreetMap contributors.





