
Earl Street, Sheffield, S1

- PROPERTY TYPE
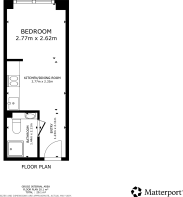
Studio
- BATHROOMS
1
- SIZE
193 sq ft
18 sq m
Key features
- Studio Flat
- Shared Garden (Back Only)
- Buy-to-Let Opportunity
- Tenant Currently Situated
- Likely to attract enquiries from Serious Investors & Developers
- INVESTMENT POTENTIAL DETAILED BELOW (Let Property Pack)
- Cash Buyers Only
- Access to Gym and Games Room
Description
For investors looking to expand their portfolio, this is a fantastic opportunity!
This well-kept home features a spacious living space, bathroom, kitchen and private garden (back). There is also a gym and games room in the building, accessible to all tenants.
Investment details
It currently produces an annual gross income of £8,064 with tenants currently situated. Considering the purchase price and the potential rental income that could be earned in future years, this will make for a worthwhile addition to an investors property portfolio.
For greater detail on this property's investment potential, please see the Let Property Pack linked below.
If you are interested, please call us.
Tenancy Details
The current tenants have lived in the property for several years and have consistently paid their rent for the duration of their stay. They do not have any intentions to move out so hope to remain in the property.
We are committed to facilitating a smooth transaction process between buyer and seller. To allow for maximum commitment to the sale from both parties, a Buyers Premium will apply in order to secure a property.
Brochures
Let Property Pack- COUNCIL TAXA payment made to your local authority in order to pay for local services like schools, libraries, and refuse collection. The amount you pay depends on the value of the property.Read more about council Tax in our glossary page.
- Ask agent
- PARKINGDetails of how and where vehicles can be parked, and any associated costs.Read more about parking in our glossary page.
- Ask agent
- GARDENA property has access to an outdoor space, which could be private or shared.
- Yes
- ACCESSIBILITYHow a property has been adapted to meet the needs of vulnerable or disabled individuals.Read more about accessibility in our glossary page.
- Ask agent
Earl Street, Sheffield, S1
Add an important place to see how long it'd take to get there from our property listings.
__mins driving to your place
Get an instant, personalised result:
- Show sellers you’re serious
- Secure viewings faster with agents
- No impact on your credit score
Affordability
Notes
Staying secure when looking for property
Ensure you're up to date with our latest advice on how to avoid fraud or scams when looking for property online.
Visit our security centre to find out moreDisclaimer - Property reference 225180529. The information displayed about this property comprises a property advertisement. Rightmove.co.uk makes no warranty as to the accuracy or completeness of the advertisement or any linked or associated information, and Rightmove has no control over the content. This property advertisement does not constitute property particulars. The information is provided and maintained by Let Property Sales & Management, Glasgow. Please contact the selling agent or developer directly to obtain any information which may be available under the terms of The Energy Performance of Buildings (Certificates and Inspections) (England and Wales) Regulations 2007 or the Home Report if in relation to a residential property in Scotland.
*This is the average speed from the provider with the fastest broadband package available at this postcode. The average speed displayed is based on the download speeds of at least 50% of customers at peak time (8pm to 10pm). Fibre/cable services at the postcode are subject to availability and may differ between properties within a postcode. Speeds can be affected by a range of technical and environmental factors. The speed at the property may be lower than that listed above. You can check the estimated speed and confirm availability to a property prior to purchasing on the broadband provider's website. Providers may increase charges. The information is provided and maintained by Decision Technologies Limited. **This is indicative only and based on a 2-person household with multiple devices and simultaneous usage. Broadband performance is affected by multiple factors including number of occupants and devices, simultaneous usage, router range etc. For more information speak to your broadband provider.
Map data ©OpenStreetMap contributors.





