
Yen-U House, Glasdale, Comrie, PH6 2JX

- PROPERTY TYPE
Semi-Detached
- BEDROOMS
2
- BATHROOMS
1
- SIZE
990 sq ft
92 sq m
- TENUREDescribes how you own a property. There are different types of tenure - freehold, leasehold, and commonhold.Read more about tenure in our glossary page.
Ask agent
Description
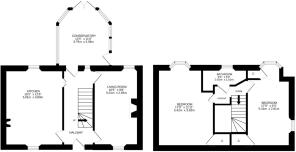
Offering period features, blended with modern finishes, Yen-U is a most charming home. The ground floor accommodation has beautiful original flooring & comprises a HALLWAY with attractive central staircase, DINING KITCHEN with front & rear windows, wood-burning stove, contemporary units & a delightful 'serving hatch' with stained glass. Dual-aspect LOUNGE with wood-burning stove, and large CONSERVATORY with access to rear. On the first floor there is a BATHROOM and TWO generously sized DOUBLE BEDROOMS with ample built-in storage and dormer windows overlooking the garden, one of the doubles has a charming low-set gable window.
Private parking is set to side & rear of the property. The garden comprising a paved patio adjoining the conservatory, an array of mature planting, area of lawn, a summerhouse & an insulated/double glazed studio with decking and workshop area. A notable feature is the River frontage on the Earn, a most attractive spot from which to sit & enjoy the beautiful surroundings.
A stunning and unique period home, offered in true move-in condition, within walking distance to the centre of one of Perthshire's most sought after villages, along with beautiful riverside/woodland walks nearby. Likely to have broad appeal, early viewing is strongly advised.
Brochures
Brochure 1- COUNCIL TAXA payment made to your local authority in order to pay for local services like schools, libraries, and refuse collection. The amount you pay depends on the value of the property.Read more about council Tax in our glossary page.
- Ask agent
- PARKINGDetails of how and where vehicles can be parked, and any associated costs.Read more about parking in our glossary page.
- Driveway
- GARDENA property has access to an outdoor space, which could be private or shared.
- Private garden
- ACCESSIBILITYHow a property has been adapted to meet the needs of vulnerable or disabled individuals.Read more about accessibility in our glossary page.
- Ask agent
Energy performance certificate - ask agent
Yen-U House, Glasdale, Comrie, PH6 2JX
Add an important place to see how long it'd take to get there from our property listings.
__mins driving to your place
Get an instant, personalised result:
- Show sellers you’re serious
- Secure viewings faster with agents
- No impact on your credit score
Affordability
Notes
Staying secure when looking for property
Ensure you're up to date with our latest advice on how to avoid fraud or scams when looking for property online.
Visit our security centre to find out moreDisclaimer - Property reference yenuhouse. The information displayed about this property comprises a property advertisement. Rightmove.co.uk makes no warranty as to the accuracy or completeness of the advertisement or any linked or associated information, and Rightmove has no control over the content. This property advertisement does not constitute property particulars. The information is provided and maintained by Irving Geddes W.S., Crieff. Please contact the selling agent or developer directly to obtain any information which may be available under the terms of The Energy Performance of Buildings (Certificates and Inspections) (England and Wales) Regulations 2007 or the Home Report if in relation to a residential property in Scotland.
*This is the average speed from the provider with the fastest broadband package available at this postcode. The average speed displayed is based on the download speeds of at least 50% of customers at peak time (8pm to 10pm). Fibre/cable services at the postcode are subject to availability and may differ between properties within a postcode. Speeds can be affected by a range of technical and environmental factors. The speed at the property may be lower than that listed above. You can check the estimated speed and confirm availability to a property prior to purchasing on the broadband provider's website. Providers may increase charges. The information is provided and maintained by Decision Technologies Limited. **This is indicative only and based on a 2-person household with multiple devices and simultaneous usage. Broadband performance is affected by multiple factors including number of occupants and devices, simultaneous usage, router range etc. For more information speak to your broadband provider.
Map data ©OpenStreetMap contributors.





