
Grove Orchard, Braintree, CM7

- PROPERTY TYPE
Detached
- BEDROOMS
4
- BATHROOMS
2
- SIZE
Ask agent
- TENUREDescribes how you own a property. There are different types of tenure - freehold, leasehold, and commonhold.Read more about tenure in our glossary page.
Freehold
Key features
- Executive Detached Family Home
- Four Bedrooms
- Stunning Balcony from Principal Bedroom
- Double Garage
- Utility Room
- Four Reception Rooms
- South Facing Rear Garden
- Two Bathrooms
Description
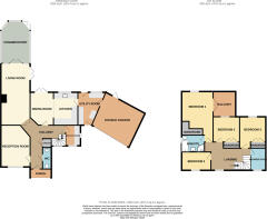
Accommodation offers entrance hall, reception room, cloakroom, living room, conservatory, dining room open plan to kitchen, utility room with access into double garage. The first floor offers spacious landing, principal bedroom with modern en-suite and doors leading to balcony with a stunning aspect across the fantastic south facing rear garden, family shower room and three further good sized bedrooms. There is a driveway offering off road parking for several vehicles. This stunning landscaped garden commences with a raised patio area with access into double garage, wide variety of mature plants and shrubs, pergola, with hot tub and summer house with feature footbridge over rockery.
Located within 2.4 miles of Braintree Train Station and 0.9 of a mile to Bocking Primary School.
This exceptional property is fully deserving of an internal viewing, please contact Beresfords to arrange.
Entrance Hall
Cloakroom
Utility Room
7' 8" x 5' 8"
Reception Room
15' 9" x 11' 11"
Living Room
23' 5" x 11' 10"
Conservatory
4.85m (max) x 3.6m
Dining Area
12' 3" x 8' 10"
Kitchen
12' 3" x 10' 1"
Utility Room
12' 3" x 12' 4"
First Floor Landing
Principal Bedroom
20' 2" x 11' 10"
Balcony
9' 6" x 8' 6"
En-Suite Bathroom
6' 4" x 8' 8"
Bedroom
10' 0" x 9' 10"
Bedroom
12' 2" x 10' 2"
Bedroom
7' 0" x 11' 10"
Shower Room
7' 8" x 5' 8"
Outside:
Double Garage
14' 6" x 16' 10"
Garden
Driveway Parking
Agents Note:
The sellers have confirmed that the property did have a subsidence claim 28 years ago and there is a certificate of structural adequacy for the property.
Brochures
Particulars- COUNCIL TAXA payment made to your local authority in order to pay for local services like schools, libraries, and refuse collection. The amount you pay depends on the value of the property.Read more about council Tax in our glossary page.
- Band: F
- PARKINGDetails of how and where vehicles can be parked, and any associated costs.Read more about parking in our glossary page.
- Yes
- GARDENA property has access to an outdoor space, which could be private or shared.
- Yes
- ACCESSIBILITYHow a property has been adapted to meet the needs of vulnerable or disabled individuals.Read more about accessibility in our glossary page.
- Ask agent
Grove Orchard, Braintree, CM7
Add an important place to see how long it'd take to get there from our property listings.
__mins driving to your place
Get an instant, personalised result:
- Show sellers you’re serious
- Secure viewings faster with agents
- No impact on your credit score
Affordability
Notes
Staying secure when looking for property
Ensure you're up to date with our latest advice on how to avoid fraud or scams when looking for property online.
Visit our security centre to find out moreDisclaimer - Property reference BRS260074. The information displayed about this property comprises a property advertisement. Rightmove.co.uk makes no warranty as to the accuracy or completeness of the advertisement or any linked or associated information, and Rightmove has no control over the content. This property advertisement does not constitute property particulars. The information is provided and maintained by Beresfords, Braintree. Please contact the selling agent or developer directly to obtain any information which may be available under the terms of The Energy Performance of Buildings (Certificates and Inspections) (England and Wales) Regulations 2007 or the Home Report if in relation to a residential property in Scotland.
*This is the average speed from the provider with the fastest broadband package available at this postcode. The average speed displayed is based on the download speeds of at least 50% of customers at peak time (8pm to 10pm). Fibre/cable services at the postcode are subject to availability and may differ between properties within a postcode. Speeds can be affected by a range of technical and environmental factors. The speed at the property may be lower than that listed above. You can check the estimated speed and confirm availability to a property prior to purchasing on the broadband provider's website. Providers may increase charges. The information is provided and maintained by Decision Technologies Limited. **This is indicative only and based on a 2-person household with multiple devices and simultaneous usage. Broadband performance is affected by multiple factors including number of occupants and devices, simultaneous usage, router range etc. For more information speak to your broadband provider.
Map data ©OpenStreetMap contributors.








