Bell Lane, Birdham, West Sussex, PO20 7HX
- PROPERTY TYPE
Plot
- BEDROOMS
4
- BATHROOMS
1
- SIZE
Ask agent
Key features
- BUILDING PLOT FOR SALE
- FULLY PERMITTED SITE
- 24/01225/FUL
- FOUR BEDROOM DETACHED
Description
A rare opportunity to acquire a building plot with full planning permission for the construction of a well-proportioned detached family home in the highly regarded coastal village of Birdham.
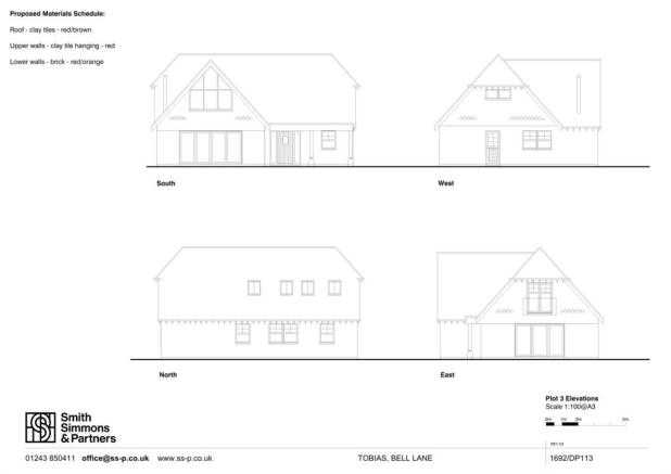
The approved scheme allows for a two-storey detached house extending to approximately 164 sq m providing generous accommodation well suited to modern family living. The design offers a balanced layout with scope for open-plan living spaces, good bedroom sizes, and private garden areas.
Planning permission has been granted under appeal, offering certainty and removing the delays and risks typically associated with the planning process.
The plot benefits from a newly approved access, with services available nearby, and sits within an established residential setting. Birdham village centre, local amenities, and the surrounding harbour villages are all easily accessible.
Key features:
• Full planning permission granted
• Detached chalet of approx. 164 sq m
• Sought-after Birdham location
• Approved access and associated works
• Ideal opportunity for a self-builder or small developer
• Freehold
Further details, plans, and decision notice are available on request.
CIL Liability.
Site inspections must be accompanied al all times.
LOCATION
The property is located within the village of Birdham which is designated an area of outstanding natural beauty and is a short stroll from the fantastic facilities of the Birdham Pool Marina. The Village Hall is host to weekly and monthly social events including carpet bowls, bingo and performing arts sessions, further local amenities include a `Nisa` local supermarket and a soon to be completed Waitrose mini store. Further facilities including a primary school, convenience store and petrol station are within walking distance. East Wittering village centre is within a short drive and offers a comprehensive range of amenities including a primary school, doctors` surgery, chemist, dentist and a wide selection of quality independent shops and mini supermarkets. Furthermore, the historic city of Chichester, some 5 miles away offers various high street outlets and eateries.
Services
Available in adjacent road.
Notice
Disclaimer Notice: Astons of Sussex for themselves and the VENDORS or Lessors of this property, whose agents they are, give notice that 1) these particulars are produced in good faith, are set out as a guide only and do not constitute any part of a contract. 2) No person in the employment of Astons of Sussex has any authority to make or give representation or warranty in respect of this property, 3) Any prospective purchaser or tenant must independently verify the accuracy of each statement through inspection, professional survey, or other means of due diligence. 4) Photographs may include lifestyle shots and local views. There may also be photographs including chattels not included in the sale of the property. 5) Measurements, maps and illustrations given are approximate and should not be relied upon and are for guidance only. 6) The services, system and appliances have not been tested and no guarantee as to their operability or efficiency can be given by Astons of Sussex Ltd. 7) The statements contained within these particulars shall not be construed as representations of fact or relied upon as such. 8) Any information regarding the tenure and charges for the property has been supplied by the seller and is subject to change. All leasehold information will be formally confirmed by the seller`s solicitor during the conveyancing process.
Brochures
Brochure 1Web DetailsBell Lane, Birdham, West Sussex, PO20 7HX
NEAREST STATIONS
Distances are straight line measurements from the centre of the postcode- Fishbourne Station3.7 miles
- Bosham Station3.8 miles
- Chichester Station3.9 miles
Notes
Disclaimer - Property reference 1592_ASOS. The information displayed about this property comprises a property advertisement. Rightmove.co.uk makes no warranty as to the accuracy or completeness of the advertisement or any linked or associated information, and Rightmove has no control over the content. This property advertisement does not constitute property particulars. The information is provided and maintained by Astons of Sussex, East Wittering. Please contact the selling agent or developer directly to obtain any information which may be available under the terms of The Energy Performance of Buildings (Certificates and Inspections) (England and Wales) Regulations 2007 or the Home Report if in relation to a residential property in Scotland.
Map data ©OpenStreetMap contributors.








