
Land Between 32/34 Argyll Avenue, Eastham
- PROPERTY TYPE
Land
- SIZE
Ask agent
Key features
- FOR SALE BY PUBLIC AUCTION : Wednesday, 13 May 2026
- LOT NUMBER : 6
- DEVELOPMENT LAND
- Vacant Land
- Freehold
- *GUIDE PRICE : £100,000 - £120,000
Description
Planning Permission was granted in 2020 for a two storey dwelling and a Reserved Matters Notice approved in 2021.
Works were started on the site which we are told implemented this permission. The Planning Application was OUT/20/01334 and plans and drawings can be examined on both the auctioneer's and Council's website.
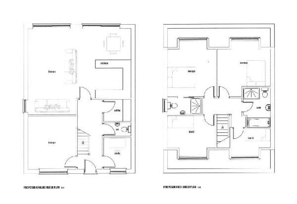
Accommodation
The plans provided show the accommodation to comprise:
Ground Floor
Entrance hall with WC and utility room, lounge, study, living room and kitchen.
First Floor
Landing, four bedrooms, family bathroom with bath and walk in shower, en-suite shower room.
Externally
There are front and rear gardens with provision for on-site parking.
Viewing
The site is open for inspection.
Land Between 32/34 Argyll Avenue, Eastham
NEAREST STATIONS
Distances are straight line measurements from the centre of the postcode- Eastham Rake Station0.1 miles
- Hooton Station0.8 miles
- Bromborough Station0.9 miles
Notes
Disclaimer - Property reference 3625. The information displayed about this property comprises a property advertisement. Rightmove.co.uk makes no warranty as to the accuracy or completeness of the advertisement or any linked or associated information, and Rightmove has no control over the content. This property advertisement does not constitute property particulars. The information is provided and maintained by Smith and Sons, Auctions. Please contact the selling agent or developer directly to obtain any information which may be available under the terms of The Energy Performance of Buildings (Certificates and Inspections) (England and Wales) Regulations 2007 or the Home Report if in relation to a residential property in Scotland.
Auction Fees: The purchase of this property may include associated fees not listed here, as it is to be sold via auction. To find out more about the fees associated with this property please call Smith and Sons, Auctions on 0151 453 4293.
*Guide Price: An indication of a seller's minimum expectation at auction and given as a Guide Price or a range of Guide Prices. This is not necessarily the figure a property will sell for and is subject to change prior to the auction.
Reserve Price: Each auction property will be subject to a Reserve Price below which the property cannot be sold at auction. Normally the Reserve Price will be set within the range of Guide Prices or no more than 10% above a single Guide Price.
Map data ©OpenStreetMap contributors.





