
Stone Gappe, 5 Long Close Road, Hamsterley Mill, County Durham

- PROPERTY TYPE
Bungalow
- BEDROOMS
4
- BATHROOMS
3
- SIZE
1,879 sq ft
175 sq m
- TENUREDescribes how you own a property. There are different types of tenure - freehold, leasehold, and commonhold.Read more about tenure in our glossary page.
Freehold
Key features
- Detached Stone Bungalow
- Four Bedrooms | Three Bathrooms
- Open Plan Living & Snug
- Scandinavian Woodland Lodge with Treetop Studio & Garage
- Landscaped Gardens Circa Acre
- Sought After Hamsterley Mill Setting
Description
Accommodation in Brief
Entrance Hall | Sitting Room | Dining Room | Snug | Kitchen | Principal Bedroom with En Suite | Three Further Bedrooms | Two Family Bathrooms
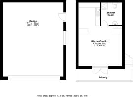
Lodge/Annexe
Ground Floor
Double Garage | Workshop
First Floor
Kitchen / Studio | Shower Room | Balcony
The Property
Stone Gappe occupies a particularly attractive setting within the sought after enclave of Hamsterley Mill, positioned within mature gardens of approximately one third of an acre in the heart of the Derwent Valley. Constructed in natural stone and thoughtfully extended and modernised over the past two decades, the property offers well balanced single level living with an engaging sense of space and light throughout. Alongside the principal bungalow, a striking Scandinavian style woodland lodge introduces an additional dimension to the property, incorporating a beautifully crafted treetop studio above a substantial garage and workshop. Together, they create a home that is both practical and distinctive, with clear appeal for those seeking flexible space for work, creativity or guest accommodation.
Entry to the bungalow is through a welcoming entrance lobby that opens into a central hallway, thoughtfully arranged to separate the living spaces from the bedroom accommodation. The principal reception areas unfold to one side of the house, beginning with the main sitting room, a well proportioned space with a bow fronted window that draws in natural light and creates a pleasant outlook. This room flows through to the adjoining dining area, forming a sociable and well connected arrangement suited to both everyday living and entertaining.
Beyond, an opening leads into the snug, which offers a more intimate setting. A stone fireplace with Honister slate hearth houses a Jetmaster log burning open convector fire, creating a natural focal point and a sense of warmth and character. French doors open directly onto the garden, allowing the space to connect easily with the outside and reinforcing its role as a quieter retreat within the home.
The breakfasting kitchen is both well appointed and practical, fitted with a range of wall and floor units and incorporating a Stoves electric double oven with an electric hob. Tiled work surfaces and splashbacks complement the cabinetry, while a large sink positioned beneath a wide window enjoys views across the garden. African slate flooring provides a durable and characterful finish, and a stable door leads out to a covered paved area, allowing easy access to the garden.
The bedroom accommodation is arranged along the opposite side of the house, creating a calm and private wing. A particularly spacious bedroom is positioned to the rear, with French doors opening directly onto the garden, allowing for a strong connection to the outside and an abundance of natural light.
To the front of the property, a further generous double bedroom benefits from its own en suite shower room, while two additional bedrooms offer flexibility for family or guests, each enjoying a pleasant outlook across the gardens.
The accommodation is supported by two well appointed family bathrooms, one fitted with a bath and separate shower enclosure, and the other featuring a corner whirlpool bath, hand basin and WC.
Set within the grounds and nestled amongst mature oak trees, the woodland lodge is a distinctive Scandinavian inspired structure, constructed from interlocking solid pine logs and offering a rare degree of flexibility.
At ground level, it provides a substantial double garage and workshop, accessed via an electric door or a separate side door, and ideal for storage, hobbies or practical use. Above, an external timber staircase rises to a sheltered balcony and leads into the treetop studio, a wonderfully characterful space positioned amongst the surrounding canopy.
Internally, the studio is defined by its vaulted ceiling and warm timber finishes, with pine floors and wall linings creating a cohesive, lodge style interior. Velux windows and glazed doors draw in natural light while framing leafy views, enhancing the sense of elevation and seclusion. A compact kitchenette with fitted units and stainless steel sink is neatly integrated, while a separate en suite shower room completes the accommodation.
This is a particularly special addition to the property, offering excellent versatility as a home office, creative studio or guest suite all set within a peaceful and atmospheric woodland setting.
Externally
Stone Gappe sits within mature gardens that complement the surrounding woodland character of Hamsterley Mill. A gently curving frontage opens onto a quiet residential lane, while gravelled parking areas sit discreetly behind wrought iron gates and low stone walls. To the east side of the property, a gravel driveway rises towards the lodge, bordered by established shrubs, roses and seasonal planting. The rear garden is thoughtfully arranged around an ornamental pond with footbridge, alongside a greenhouse and garden shed. Twelve mature oak trees, all protected by Tree Preservation Orders, give the grounds a strong sense of permanence and seclusion, while Red Kites are a regular and striking presence overhead, reinforcing the area’s connection to the wider Derwent Valley landscape.
Local Information
Hamsterley Mill is a particularly desirable residential enclave set within the beautiful Derwent Valley, known for its collection of individually designed homes set within generous plots and surrounded by mature woodland and open countryside. Rather than a traditional village setting, the area has developed as a discreet and sought after address, characterised by architecturally varied properties that sit comfortably within the natural landscape and offer a strong sense of privacy and space.
The surrounding valley is noted for its rich wildlife and natural beauty, now forming part of a successful red kite conservation area where these striking birds are frequently seen circling above the wooded slopes and farmland. The setting provides a peaceful rural atmosphere while remaining remarkably well placed for access to the wider region.
Everyday amenities can be found in nearby Rowlands Gill and Burnopfield, which offer local shops, cafés, pubs and primary schooling, while a wider range of services, restaurants and leisure facilities are available in Newcastle and the surrounding Tyne Valley towns. Newcastle city centre lies approximately 9 miles away, with Newcastle International Airport reachable in around 20 minutes, offering excellent connections for both regional and international travel.
The surrounding countryside provides outstanding opportunities for walking and cycling, with Derwent Walk Country Park and the wider Northumberland landscape easily accessible from the property.
Approximate Mileages
Ebchester 3.0 miles | Rowlands Gill 3.4 miles | Shotley Bridge 4.3 miles | Newcastle City Centre 9.0 miles | Newcastle International Airport 13.0 miles | Durham City Centre 14.8 miles
Services
House: Mains water, electricity, sewerage. Gas central heating. PV Solar Panels.
Lodge: Mains water, electricity, sewerage (connected to the house). LPG boiler (cylinders)
Tenure
Freehold
Council Tax
Band G
Wayleaves, Easements & Rights of Way
The property is being sold subject to all existing wayleaves, easements and rights of way, whether or not specified within the sales particulars.
Agents Note to Purchasers
We strive to ensure all property details are accurate, however, they are not to be relied upon as statements of representation or fact and do not constitute or form part of an offer or any contract. All measurements and floor plans have been prepared as a guide only. All services, systems and appliances listed in the details have not been tested by us and no guarantee is given to their operating ability or efficiency. Please be advised that some information may be awaiting vendor approval.
Submitting an Offer
Please note that all offers will require financial verification including mortgage agreement in principle, proof of deposit funds, proof of available cash and full chain details including selling agents and solicitors down the chain. To comply with Money Laundering Regulations, we require proof of identification from all buyers before acceptance letters are sent and solicitors can be instructed.
Disclaimer
The information displayed about this property comprises a property advertisement. Finest Properties strives to ensure all details are accurate; however, they do not constitute property particulars and should not be relied upon as statements of fact or representation. All information is provided and maintained by Finest Properties.
EPC Rating: C
Brochures
Brochure- COUNCIL TAXA payment made to your local authority in order to pay for local services like schools, libraries, and refuse collection. The amount you pay depends on the value of the property.Read more about council Tax in our glossary page.
- Band: G
- PARKINGDetails of how and where vehicles can be parked, and any associated costs.Read more about parking in our glossary page.
- Yes
- GARDENA property has access to an outdoor space, which could be private or shared.
- Private garden
- ACCESSIBILITYHow a property has been adapted to meet the needs of vulnerable or disabled individuals.Read more about accessibility in our glossary page.
- Ask agent
Stone Gappe, 5 Long Close Road, Hamsterley Mill, County Durham
Add an important place to see how long it'd take to get there from our property listings.
__mins driving to your place
Get an instant, personalised result:
- Show sellers you’re serious
- Secure viewings faster with agents
- No impact on your credit score
Affordability
Notes
Staying secure when looking for property
Ensure you're up to date with our latest advice on how to avoid fraud or scams when looking for property online.
Visit our security centre to find out moreDisclaimer - Property reference 761d214b-fe24-4a5b-989c-6c83159ada8d. The information displayed about this property comprises a property advertisement. Rightmove.co.uk makes no warranty as to the accuracy or completeness of the advertisement or any linked or associated information, and Rightmove has no control over the content. This property advertisement does not constitute property particulars. The information is provided and maintained by Finest, North East. Please contact the selling agent or developer directly to obtain any information which may be available under the terms of The Energy Performance of Buildings (Certificates and Inspections) (England and Wales) Regulations 2007 or the Home Report if in relation to a residential property in Scotland.
*This is the average speed from the provider with the fastest broadband package available at this postcode. The average speed displayed is based on the download speeds of at least 50% of customers at peak time (8pm to 10pm). Fibre/cable services at the postcode are subject to availability and may differ between properties within a postcode. Speeds can be affected by a range of technical and environmental factors. The speed at the property may be lower than that listed above. You can check the estimated speed and confirm availability to a property prior to purchasing on the broadband provider's website. Providers may increase charges. The information is provided and maintained by Decision Technologies Limited. **This is indicative only and based on a 2-person household with multiple devices and simultaneous usage. Broadband performance is affected by multiple factors including number of occupants and devices, simultaneous usage, router range etc. For more information speak to your broadband provider.
Map data ©OpenStreetMap contributors.






