Wotton Road, Charfield, Wotton-Under-Edge, Gloucestershire, GL12
- SIZE AVAILABLE
2,950 sq ft
274 sq m
- SECTOR
Office to lease
Lease details
- Lease available date:
- Now
- Deposit:
- £5,500A deposit provides security for a landlord against damage, or unpaid rent by a tenant.Read more about deposit in our glossary page.
Key features
- Description
- Situation
- Outside
- Planning
- Services
- Terms Of Tenancy
- Outgoings
- Business Rates
- Setup Fee
- Local Authority
Description
Description
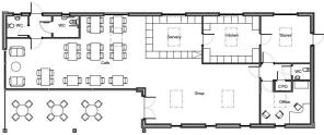
The Bridge provides an excellent opportunity to rent high-quality flexible commercial space, extending in all to 2950ft2. The property in its present form as a Café, provides a modern and naturally well-lit workspace, within a well-proportioned element of open plan seating areas, customer facilities, staff facilities, kitchen, stores and servery. The property offers flexible accommodation and would suit a host of alternative uses under the Class E use class. Possible alternatives could be retail, salon, gymnasium/leisure, offices and or clinic based uses. The flexibility offered with this property combined ample parking and near links to major road networks, makes The Bridge an attractive prospect to any commercial user.
Situation
The property is located, in the centre of the rapidly expanding village of Charfield. The village has a historic population of approximately 5000 plus 290 new dwellings, either recently completed or under construction and with pending applications for over 1200 additional new homes. The property has near immediate access on to the Wotton Road which leads straight to Junction 14 of the M5 motorway and the A38 at Tortworth. Main line rail services are to be available in the near future with the Charfield Train Station expecting to be operational by Spring 2027.
Outside
The Bridge benefits an open fronted, canopied area for outside seating to the front of the building and a large car park suitable for 12 vehicles.
Planning
The property has planning granted for retail unit and cafe (Sui Generis) now formed under Class E (Commercial, Business and Service) use class.
Services
The property has the following mains connections; water, drainage, gas and electric. The premises additionally benefits from a solar panel connection offering a sustainable electrical supply to the premises which currently is available to be set up and utilised by the incoming party.
Terms of Tenancy
The tenancy will be written under the statute of the Landlord and Tenant Act 1954 excluding the renewal provisions contained within s24 to s28 of the same. Ideally for a minimum 5-year term, the Tenant will take on the lease under an internal repairing and insuring terms. A deposit at a minimum of 2 calendar months will be requested from the Tenant prior to entry. This will be returned minus any appropriate deductions at the cessation of the Tenancy.
Outgoings
The Tenant will be responsible for payment of all outgoings, including those, but not limited to, the services listed above and Business Rates.
Business Rates
£22,250 Rateable Value – April 2023 Inclusive of car park
Setup Fee
The Tenant will contribute £500 (plus VAT) towards the preparation of the Tenancy Agreement to be drawn up by the Landlords Solicitors.
Local Authority
South Gloucestershire Council
Viewing
Strictly by appointment with the Agents: David James: .
Agents Notes
The existing Tenant’s business is currently marketed for sale separately as a going concern. Along with a list of fixtures and fittings which are available to purchase subject to separate negotiation with the existing Tenant. The list can be made available upon request to the agent.
Brochures
Wotton Road, Charfield, Wotton-Under-Edge, Gloucestershire, GL12
NEAREST STATIONS
Distances are straight line measurements from the centre of the postcode- Yate Station6.2 miles
Notes
Disclaimer - Property reference WEC200016_L. The information displayed about this property comprises a property advertisement. Rightmove.co.uk makes no warranty as to the accuracy or completeness of the advertisement or any linked or associated information, and Rightmove has no control over the content. This property advertisement does not constitute property particulars. The information is provided and maintained by David James, Wotton-under-Edge. Please contact the selling agent or developer directly to obtain any information which may be available under the terms of The Energy Performance of Buildings (Certificates and Inspections) (England and Wales) Regulations 2007 or the Home Report if in relation to a residential property in Scotland.
Map data ©OpenStreetMap contributors.





