16 Muir Street, Hamilton, ML3 6EP
- SIZE AVAILABLE
1,190 sq ft
111 sq m
- SECTOR
Office to lease
Lease details
- Lease available date:
- Now
- Lease type:
- Long term
Key features
- Prominent roadside position within Hamilton
- Contained over ground, first and attic.
- Private car parking facilities
- Flexible lease terms available.
- 100 % Rates Relief available, subject to occupiers status
- Offers Over £17,000 pa
Description
16 Muir Street comprises a three-storey, end-terraced, self-contained office property of traditional stone construction.
The premises have most recently been utilised for office purposes; however, they would be suitable for a variety of alternative uses, subject to the necessary consents.
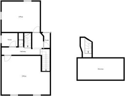
Indicative floor plans outlining the layout of the accommodation are attached. The accommodation can be summarised as follows:
Ground Floor
Reception area, three generous private offices, ancillary storage, and WC facilities.
First Floor
Two large private offices, ancillary storage, and two WC facilities.
Attic Level
Open-plan staff/kitchen area.
Location
Muir Street is one of the principal arterial routes surrounding Hamilton town centre and benefits from excellent accessibility. The property is easily reached from the B7071 Bothwell Road to the north and Junction 6 of the M74 motorway to the south.
Hamilton is the administrative centre of South Lanarkshire, with a population in excess of 55,000, and is situated approximately 12 miles south-east of Glasgow and 5 miles east of East Kilbride.
Viewings
Strictly by contacting the sole selling/letting agents:-
Jacqueline Towie
jacqueline.
Terms
The property is available is to lease on a full repairing and insuring terms for a period to be agreed.
Rental offers in excess of £17,00 per annum are invited.
EPC
A copy of the Energy Performance Certificate (EPC) for the subjects is available upon request.
Non-Domestic Rates
According to the Scottish Assessors’ Association website, the subjects are noted to have a Rateable Value of £11,900 per annum.
It should be noted under the terms of the Small Business Bonus Scheme, the property maybe eligible for 100% rates relief.
16 Muir Street, Hamilton, ML3 6EP
NEAREST STATIONS
Distances are straight line measurements from the centre of the postcode- Hamilton West Station0.4 miles
- Hamilton Central Station0.5 miles
- Chatelherault Station1.8 miles
Notes
Disclaimer - Property reference 360264-2. The information displayed about this property comprises a property advertisement. Rightmove.co.uk makes no warranty as to the accuracy or completeness of the advertisement or any linked or associated information, and Rightmove has no control over the content. This property advertisement does not constitute property particulars. The information is provided and maintained by DM Hall, Glasgow. Please contact the selling agent or developer directly to obtain any information which may be available under the terms of The Energy Performance of Buildings (Certificates and Inspections) (England and Wales) Regulations 2007 or the Home Report if in relation to a residential property in Scotland.
Map data ©OpenStreetMap contributors.






