Liberty Way, Attleborough Fields Ind Estate, Nuneaton

Letting details
- Let available date:
- Ask agent
- Deposit:
- Ask agentA deposit provides security for a landlord against damage, or unpaid rent by a tenant.Read more about deposit in our glossary page.
- Furnish type:
- Ask agent
- Council Tax:
- Ask agent
- PROPERTY TYPE
House
- SIZE
Ask agent
Key features
- New Lease Available
- B2 and B8 Use Class
- Rateable Value: £47,000
- EPC: E(117)
Description
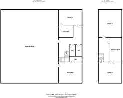
Description - Modern industrial/warehouse unit of blockwork construction beneath a shallow pitched roof, incorporating multiple full-height loading doors and a dedicated glazed showroom/customer entrance. The property benefits from a prominent frontage with robust elevations, integrated external lighting and signage positions, together with a forecourt providing on-site parking and servicing. The unit offers versatile accommodation suited to trade counter, storage, distribution or light industrial use, with good access for deliveries and operational requirements.
Location - The property is located roughly within a well-established Attleborough Fields Industrial Estate that is strategically positioned at the centre of the regional distribution network. It benefits from excellent connectivity, being approximately five minutes’ drive from the A5 and around ten minutes from both the M6 and M69 motorways. The unit are situated roughly 1.5 miles east of Nuneaton town centre and less than 10 miles from Coventry city centre.
Accommodation - Ground Floor: 3,907 ft² (363.0 m²)
First Floor: 1,071 ft² (99.5 m²)
Total Area (GIA): 4,978 ft² (462.5 m²)
Tenure - The property is available to let from the 20th of May 2026 on a Full Repairing and Insuring lease with an asking rent of £42,000 p.a. exclusive. The lease will be subject to a minimum term of three years.
Services And Service Charge - The unit is connected to mains services including electricity (3-phase), gas, water, and drainage. Prospective occupiers should make their own enquiries regarding the availability of broadband to ensure suitability for their operational needs.
A service charge will also be payable in respect of the maintenance of the communal areas of the development.
Planning - Presently Class B2 and B8 as defined by the Town & Country Planning Act (Use Classes Order).
Viewing - To arrange a viewing please contact the Commercial Team on or (Option 2)
Energy Performance Certificate - The property has an EPC rating of E(117).
Business Rates - The current rateable value as of 1 April 2026 is £47,000.
Vat - VAT is not charged on the property.
Legal Costs - Each party is to meet their own costs.
Brochures
Liberty Way, Attleborough Fields Ind Estate, Nunea- COUNCIL TAXA payment made to your local authority in order to pay for local services like schools, libraries, and refuse collection. The amount you pay depends on the value of the property.Read more about council Tax in our glossary page.
- Ask agent
- PARKINGDetails of how and where vehicles can be parked, and any associated costs.Read more about parking in our glossary page.
- Yes
- GARDENA property has access to an outdoor space, which could be private or shared.
- Ask agent
- ACCESSIBILITYHow a property has been adapted to meet the needs of vulnerable or disabled individuals.Read more about accessibility in our glossary page.
- Ask agent
Energy performance certificate - ask agent
Liberty Way, Attleborough Fields Ind Estate, Nuneaton
Add an important place to see how long it'd take to get there from our property listings.
__mins driving to your place
Notes
Staying secure when looking for property
Ensure you're up to date with our latest advice on how to avoid fraud or scams when looking for property online.
Visit our security centre to find out moreDisclaimer - Property reference 34527066. The information displayed about this property comprises a property advertisement. Rightmove.co.uk makes no warranty as to the accuracy or completeness of the advertisement or any linked or associated information, and Rightmove has no control over the content. This property advertisement does not constitute property particulars. The information is provided and maintained by Loveitts, Coventry. Please contact the selling agent or developer directly to obtain any information which may be available under the terms of The Energy Performance of Buildings (Certificates and Inspections) (England and Wales) Regulations 2007 or the Home Report if in relation to a residential property in Scotland.
*This is the average speed from the provider with the fastest broadband package available at this postcode. The average speed displayed is based on the download speeds of at least 50% of customers at peak time (8pm to 10pm). Fibre/cable services at the postcode are subject to availability and may differ between properties within a postcode. Speeds can be affected by a range of technical and environmental factors. The speed at the property may be lower than that listed above. You can check the estimated speed and confirm availability to a property prior to purchasing on the broadband provider's website. Providers may increase charges. The information is provided and maintained by Decision Technologies Limited. **This is indicative only and based on a 2-person household with multiple devices and simultaneous usage. Broadband performance is affected by multiple factors including number of occupants and devices, simultaneous usage, router range etc. For more information speak to your broadband provider.
Map data ©OpenStreetMap contributors.




