Cliff Terrace, Barnsley, S71 1EN

- PROPERTY TYPE
Terraced
- BEDROOMS
2
- BATHROOMS
1
- SIZE
Ask agent
- TENUREDescribes how you own a property. There are different types of tenure - freehold, leasehold, and commonhold.Read more about tenure in our glossary page.
Freehold
Description
If you’re searching for a spacious two bedroom home within walking distance of the town centre, this could be the one for you
There is so much to love, with highlights including a generous front-facing lounge and a very spacious kitchen diner, complete with a breakfast bar — perfect for both everyday living and entertaining. To the first floor are two good sized bedrooms along with a particularly spacious bathroom.
Outside, the property benefits from gardens to both the front and rear, adding to its overall appeal.
The location is a real standout feature, just a short walk from the town centre, giving easy access to a range of shops, pubs, restaurants and other amenities. It’s also well positioned for schools and excellent link roads.
Homes offering this much space in such a convenient location are always popular. To arrange a viewing, please contact NestledIn. Don’t miss this one!
PROPERTY VIDEO (PLEASE COPY AND PASTE)
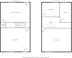
THE ACCOMMODATION
GROUND FLOOR
- LOUNGE 15'1" x 12'9" (4.60m x 3.89m)
- KITCHEN DINER 12'9" x 15'2" (3.89m x 4.62m)
FIRST FLOOR
- BEDROOM 11'0" x 15'1" (3.35m x 4.60m)
- BEDROOM 7'1" x 12'11" (2.16m x 3.94m)
- BATHROOM
OUTSIDE
Garden to the front and rear.
USEFUL INFO
We understand the council tax band to be A. We have not verified this with the owner and would recommend any incoming purchaser to make their own enquiries. We understand the tenure to be freehold. Please confirm this with your legal representative.
DIRECTIONS
S71 1EN
DISCLAIMER
1. MONEY LAUNDERING: We may ask for further details regarding your identification and proof of funds after your offer on a property. Please provide these in order to reduce any delay.
2. Details: We endeavor to make the details and measurements as accurate as possible. However, please only take them as indicative only. Measurements are taken with an electronic device. If you are ordering carpets or furniture, we would advise taking your own measurements upon viewing.
3. Services: No services have been tested by NestledIn.
- COUNCIL TAXA payment made to your local authority in order to pay for local services like schools, libraries, and refuse collection. The amount you pay depends on the value of the property.Read more about council Tax in our glossary page.
- Band: A
- PARKINGDetails of how and where vehicles can be parked, and any associated costs.Read more about parking in our glossary page.
- Ask agent
- GARDENA property has access to an outdoor space, which could be private or shared.
- Yes
- ACCESSIBILITYHow a property has been adapted to meet the needs of vulnerable or disabled individuals.Read more about accessibility in our glossary page.
- Ask agent
Energy performance certificate - ask agent
Cliff Terrace, Barnsley, S71 1EN
Add an important place to see how long it'd take to get there from our property listings.
__mins driving to your place
Get an instant, personalised result:
- Show sellers you’re serious
- Secure viewings faster with agents
- No impact on your credit score
Affordability
Notes
Staying secure when looking for property
Ensure you're up to date with our latest advice on how to avoid fraud or scams when looking for property online.
Visit our security centre to find out moreDisclaimer - Property reference S1668204. The information displayed about this property comprises a property advertisement. Rightmove.co.uk makes no warranty as to the accuracy or completeness of the advertisement or any linked or associated information, and Rightmove has no control over the content. This property advertisement does not constitute property particulars. The information is provided and maintained by NestledIn, Barnsley. Please contact the selling agent or developer directly to obtain any information which may be available under the terms of The Energy Performance of Buildings (Certificates and Inspections) (England and Wales) Regulations 2007 or the Home Report if in relation to a residential property in Scotland.
*This is the average speed from the provider with the fastest broadband package available at this postcode. The average speed displayed is based on the download speeds of at least 50% of customers at peak time (8pm to 10pm). Fibre/cable services at the postcode are subject to availability and may differ between properties within a postcode. Speeds can be affected by a range of technical and environmental factors. The speed at the property may be lower than that listed above. You can check the estimated speed and confirm availability to a property prior to purchasing on the broadband provider's website. Providers may increase charges. The information is provided and maintained by Decision Technologies Limited. **This is indicative only and based on a 2-person household with multiple devices and simultaneous usage. Broadband performance is affected by multiple factors including number of occupants and devices, simultaneous usage, router range etc. For more information speak to your broadband provider.
Map data ©OpenStreetMap contributors.




