
Quantock Side, Bicknoller, Taunton, Somerset, TA4

- PROPERTY TYPE
End of Terrace
- BEDROOMS
3
- BATHROOMS
1
- SIZE
Ask agent
- TENUREDescribes how you own a property. There are different types of tenure - freehold, leasehold, and commonhold.Read more about tenure in our glossary page.
Freehold
Key features
- Well presented three bedroom end of terrace home
- Spacious living room, kitchen, downstairs WC, bathroom
- Gated driveway with off road parking for 10/15 cars
- Wide side access leading to a large rear garden
- Garden includes mature trees, greenhouse & storage units
- Potential to extend or building an adjoing dwelling STP
Description
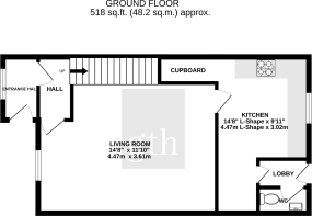
Well presented three bedroom end of terrace home, accessed via a private driveway, is situated in the desirable Quantock village of Bicknoller. The property offers comfortable and well arranged accommodation, including a welcoming living room, a fitted kitchen, and a convenient downstairs WC. To the first floor are three bedrooms and a family bathroom. A standout feature of the home is the generous rear garden, providing excellent outdoor space, while to the front there is ample off road parking.
Agents Notes: The property offers significant potential for extension to the side, creating a substantially larger living space, or even the possibility of constructing a separate adjoining dwelling, subject to obtaining the necessary planning consent.
1 Quantock Side is situated in the village of Bicknoller, a sought after rural setting on the edge of the Quantock Hills and is an area of outstanding natural beauty. The village offers a peaceful environment with a strong sense of community, whilst still providing access to everyday amenities in nearby villages and towns.
Bicknoller is well placed for access to the coast at Watchet and Minehead, as well as the larger centre of Taunton, which lies approximately 15 miles away offering a wide range of shopping, educational and transport facilities, including a mainline railway station with direct links to London. The surrounding countryside provides excellent opportunities for walking, riding and other outdoor pursuits.
The property is approached via a driveway with gated access to the front, providing extensive off road parking for approximately 10/ 15 vehicles.
A wide side access leads through to a generous rear garden, which is bordered by mature trees and established shrubs, offering a good degree of privacy. The garden also features a tree swing, greenhouse, a wooden storage shed, and two additional metal storage units, making it both practical and well suited for outdoor enjoyment.
Brochures
Particulars- COUNCIL TAXA payment made to your local authority in order to pay for local services like schools, libraries, and refuse collection. The amount you pay depends on the value of the property.Read more about council Tax in our glossary page.
- Band: C
- PARKINGDetails of how and where vehicles can be parked, and any associated costs.Read more about parking in our glossary page.
- Yes
- GARDENA property has access to an outdoor space, which could be private or shared.
- Yes
- ACCESSIBILITYHow a property has been adapted to meet the needs of vulnerable or disabled individuals.Read more about accessibility in our glossary page.
- Ask agent
Energy performance certificate - ask agent
Quantock Side, Bicknoller, Taunton, Somerset, TA4
Add an important place to see how long it'd take to get there from our property listings.
__mins driving to your place
Get an instant, personalised result:
- Show sellers you’re serious
- Secure viewings faster with agents
- No impact on your credit score
Affordability
Notes
Staying secure when looking for property
Ensure you're up to date with our latest advice on how to avoid fraud or scams when looking for property online.
Visit our security centre to find out moreDisclaimer - Property reference TAU260148. The information displayed about this property comprises a property advertisement. Rightmove.co.uk makes no warranty as to the accuracy or completeness of the advertisement or any linked or associated information, and Rightmove has no control over the content. This property advertisement does not constitute property particulars. The information is provided and maintained by Greenslade Taylor Hunt, Taunton. Please contact the selling agent or developer directly to obtain any information which may be available under the terms of The Energy Performance of Buildings (Certificates and Inspections) (England and Wales) Regulations 2007 or the Home Report if in relation to a residential property in Scotland.
*This is the average speed from the provider with the fastest broadband package available at this postcode. The average speed displayed is based on the download speeds of at least 50% of customers at peak time (8pm to 10pm). Fibre/cable services at the postcode are subject to availability and may differ between properties within a postcode. Speeds can be affected by a range of technical and environmental factors. The speed at the property may be lower than that listed above. You can check the estimated speed and confirm availability to a property prior to purchasing on the broadband provider's website. Providers may increase charges. The information is provided and maintained by Decision Technologies Limited. **This is indicative only and based on a 2-person household with multiple devices and simultaneous usage. Broadband performance is affected by multiple factors including number of occupants and devices, simultaneous usage, router range etc. For more information speak to your broadband provider.
Map data ©OpenStreetMap contributors.









