Madison Wharf ,Shelly Road, Exmouth

- PROPERTY TYPE
Duplex
- BEDROOMS
1
- BATHROOMS
1
- SIZE
Ask agent
Key features
- Beautiful views over Exmouth Marina
- Duplex - Over Two Levels
- Beautifully Presented Open Plan Living/Dining/Kitchen
- Double Bedroom
- Cloakroom
- Bathroom
- Two Large Balconies
- Entry Security System
- Garage
- Double Glazing & Central Heating
Description
Open-plan lounge, dining area and kitchen
Double bedroom
Bathroom
Two spacious balconies
Cloakroom
Garage
Secure entry system & Lift
No Chain
LOCATION:
This superb marina development is positioned at the mouth of the River Exe with the sea front and esplanade adjacent. Exmouth is a popular coastal town surrounded by beautiful Devon countryside and yet only twelve miles by road and rail from the Cathedral City of Exeter, with its intercity railway station, airport and access onto the M5 motorway. Exmouth boasts over three miles of golden sands and is ideal for a range of activities including boating, sailing and water skiing. The town also has a range of shops including a Marks & Spencer food hall, variety of restaurants, schools, a modern sports centre, swimming pool and various other amenities.
COMMUNAL HALL:
Door with buzzer entry system. Communal hall, stairs and lift leading up to the second floor. From here there is a private entrance door leading through to the:-
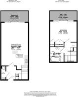
ENTRANCE HALL:
Built-in understairs cupboard. Radiator. Coved ceiling. Stairs to the first floor. Doors to the:-
CLOAKROOM:
White suite comprising enclosed flush W.C in tiled splashback. Wash hand basin in half depth vanity unit with mixer tap, cupboards under and tiled splashback. Radiator. Extractor fan. Coved ceiling.
KITCHEN/DINING ROOM 5'3 (7.69m) x 14'10 (4.52m)
The kitchen area has black worktop surfaces with black tiled splashback, inset 1½ bowl sink with pull out mixer tap and drainer, four ring ceramic hob, built-in Hotpoint double oven, cupboards and drawers under with space for washing machine, slimline dishwasher and fridge/freezer, matching wall mounted cupboards with space for microwave. Underlighting and corner display shelving. Stainless steel cooker hood with downlighters. Coved ceiling. Downlighters throughout.
SITTING AREA
Open plan to the kitchen, divided by a breakfast bar. The spacious sitting area has large double glazed windows and doors with wonderful views over the marina, leading out onto the full-width balcony with a glass and stainless steel balustrade, again with great views over the marina. Laminate flooring. Coved ceiling. Downlighters. Radiator.
FIRST FLOOR LANDING Coved ceiling. Built-in storage. Downlighters. Doors to:-
BEDROOM 1 14' 9" (4.50m) x 11' 4" (3.45m)
Large double room with large double glazed window and doors leading out onto the balcony with views over the marina. Coved ceiling. Downlighters. Radiator. Built-in double wardrobe plus two additional double built-in wardrobes (recently fitted). Built-in airing cupboard housing a mains pressure hot water tank.
SECOND BALCONY 14'9 (4.49m) x 5'5 (1.65m)
Decked balcony overlooking the marina and boating activity.
BATHROOM 8' 3" (2.51m) x 7' 9" (2.36m)
Generous bathroom with a white suite comprising 'P' shaped bath with built-in shower over and curved glass screen. Enclosed flush low level W.C. Wash hand basin with mixer tap and tiled splashback, with cupboards under. White runged radiator. Extractor fan. Coved ceiling. Downlighters. Tiled floor. Feature glass block wall.
GARAGE: Garage in a block with power and electric roller door.
COUNCIL TAX BAND C
TENURE: Leasehold - 125 years from 2002
MAINTENANCE CHARGES: £2,291.00 per annum
GROUND RENT: £391.00 per annum
DIRECTIONS: On entering Exmouth from Exeter on the A376, proceed towards the town. At the roundabout take the second exit by Marks & Spencer and the train station into Imperial Road. At the next round about take the second exit straight ahead onto Langerwehe Way. Take the second left onto Shelly Road and follow this road around passing the Sailing Club on your right. Madison Wharf can be found at the end of this road on the left hand side.
WHAT3WORDS: ///Crouching.nasel.smarting
Brochures
Brochure 1- COUNCIL TAXA payment made to your local authority in order to pay for local services like schools, libraries, and refuse collection. The amount you pay depends on the value of the property.Read more about council Tax in our glossary page.
- Band: C
- PARKINGDetails of how and where vehicles can be parked, and any associated costs.Read more about parking in our glossary page.
- Yes
- GARDENA property has access to an outdoor space, which could be private or shared.
- Ask agent
- ACCESSIBILITYHow a property has been adapted to meet the needs of vulnerable or disabled individuals.Read more about accessibility in our glossary page.
- Ask agent
Madison Wharf ,Shelly Road, Exmouth
Add an important place to see how long it'd take to get there from our property listings.
__mins driving to your place
Affordability
Get an instant, personalised result:
- Show sellers you’re serious
- Secure viewings faster with agents
- No impact on your credit score
Notes
Staying secure when looking for property
Ensure you're up to date with our latest advice on how to avoid fraud or scams when looking for property online.
Visit our security centre to find out moreDisclaimer - Property reference HSEXM_672543. The information displayed about this property comprises a property advertisement. Rightmove.co.uk makes no warranty as to the accuracy or completeness of the advertisement or any linked or associated information, and Rightmove has no control over the content. This property advertisement does not constitute property particulars. The information is provided and maintained by Hall & Scott, Exmouth. Please contact the selling agent or developer directly to obtain any information which may be available under the terms of The Energy Performance of Buildings (Certificates and Inspections) (England and Wales) Regulations 2007 or the Home Report if in relation to a residential property in Scotland.
*This is the average speed from the provider with the fastest broadband package available at this postcode. The average speed displayed is based on the download speeds of at least 50% of customers at peak time (8pm to 10pm). Fibre/cable services at the postcode are subject to availability and may differ between properties within a postcode. Speeds can be affected by a range of technical and environmental factors. The speed at the property may be lower than that listed above. You can check the estimated speed and confirm availability to a property prior to purchasing on the broadband provider's website. Providers may increase charges. The information is provided and maintained by Decision Technologies Limited. **This is indicative only and based on a 2-person household with multiple devices and simultaneous usage. Broadband performance is affected by multiple factors including number of occupants and devices, simultaneous usage, router range etc. For more information speak to your broadband provider.
Map data ©OpenStreetMap contributors.





