
Kleinwort Close, Hurst Place, RH16

- PROPERTY TYPE
Flat
- BEDROOMS
2
- BATHROOMS
2
- SIZE
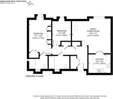
903 sq ft
84 sq m
Key features
- First floor 2 bedroom apartment
- All rooms enjoying a sunny westerly aspect
- Lift service and staircase to all floors
- Spacious hall with several storage cupboards - fully fitted kitchen
- Sitting room with full length windows
- 2 bedrooms, 1 en-suite shower room & 1 bathroom
- Parking space to rent (subject to availability) - free parking in Beech Hurst Gardens car park (gate into gardens)
- Next door to the new Age UK Centre
- For sale with no onward chain - EPC rating: B - Council Tax Band: C
Description
PLEASE WATCH THE VIDEO BEFORE BOOKING AN APPOINTMENT
A sunny 2 bedroom, 2 bathroom first floor west facing apartment overlooking the communal gardens in this highly desirable retirement complex on the town’s western edge adjoining Beech Hurst Gardens and opposite Paiges Meadow nature reserve yet within walking distance of the town centre and railway station.
Hurst Place has some fantastic facilities for the resident owners to include a café, reception staff, lounge areas with doors out to the beautiful terrace and gardens, music and bridge room, hair salon, therapy room, library and a guest suite for family and friends to book and stay in.
Tenure: Leasehold 125 years from 01.09.2016
Ground rent: £500 per year doubling every 25 years
Service charge £576.40 per month
Managing agents: Anchor
Residents need to be 65 years old
Reception t:
EPC Rating: B
Brochures
Property Brochure- COUNCIL TAXA payment made to your local authority in order to pay for local services like schools, libraries, and refuse collection. The amount you pay depends on the value of the property.Read more about council Tax in our glossary page.
- Band: C
- PARKINGDetails of how and where vehicles can be parked, and any associated costs.Read more about parking in our glossary page.
- Yes
- GARDENA property has access to an outdoor space, which could be private or shared.
- Ask agent
- ACCESSIBILITYHow a property has been adapted to meet the needs of vulnerable or disabled individuals.Read more about accessibility in our glossary page.
- Ask agent
Energy performance certificate - ask agent
Kleinwort Close, Hurst Place, RH16
Add an important place to see how long it'd take to get there from our property listings.
__mins driving to your place
Get an instant, personalised result:
- Show sellers you’re serious
- Secure viewings faster with agents
- No impact on your credit score



Affordability
Notes
Staying secure when looking for property
Ensure you're up to date with our latest advice on how to avoid fraud or scams when looking for property online.
Visit our security centre to find out moreDisclaimer - Property reference 647487ee-2677-4943-8c48-2f5050a03a75. The information displayed about this property comprises a property advertisement. Rightmove.co.uk makes no warranty as to the accuracy or completeness of the advertisement or any linked or associated information, and Rightmove has no control over the content. This property advertisement does not constitute property particulars. The information is provided and maintained by Mansell McTaggart, Haywards Heath. Please contact the selling agent or developer directly to obtain any information which may be available under the terms of The Energy Performance of Buildings (Certificates and Inspections) (England and Wales) Regulations 2007 or the Home Report if in relation to a residential property in Scotland.
*This is the average speed from the provider with the fastest broadband package available at this postcode. The average speed displayed is based on the download speeds of at least 50% of customers at peak time (8pm to 10pm). Fibre/cable services at the postcode are subject to availability and may differ between properties within a postcode. Speeds can be affected by a range of technical and environmental factors. The speed at the property may be lower than that listed above. You can check the estimated speed and confirm availability to a property prior to purchasing on the broadband provider's website. Providers may increase charges. The information is provided and maintained by Decision Technologies Limited. **This is indicative only and based on a 2-person household with multiple devices and simultaneous usage. Broadband performance is affected by multiple factors including number of occupants and devices, simultaneous usage, router range etc. For more information speak to your broadband provider.
Map data ©OpenStreetMap contributors.





