
Whiteleaf, Princes Risborough, HP27

- PROPERTY TYPE
Detached
- BEDROOMS
4
- BATHROOMS
3
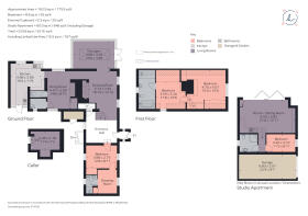
- SIZE
2,516 sq ft
234 sq m
- TENUREDescribes how you own a property. There are different types of tenure - freehold, leasehold, and commonhold.Read more about tenure in our glossary page.
Freehold
Key features
- 16th century enchanting cottage (not Listed)
- A delight as a main home or second residence
- Most breath-taking position
- Studio annexe with kitchen/sitting room bedroom & shower room
- Stunning countryside views
- Cellar
- Garage
- Private gardens/plot totaling 0.3 acre
- Heated greenhouse
Description
A ground floor bedroom suite/study with its own shower room leads off the entrance hall, and there is also a separate cloakroom directly from the dining room. Stairs rise to the two first floor bedrooms offering glorious character and fitted wardrobes, with the family bathroom leading from the second bedroom.
In addition, a contemporary 1-bedroom studio or 'Dacha', as the vendors fondly call it, constructed in 2019, offers an ideal holiday let opportunity or substantial home workspace. With a fantastic patio area leading directly from the stunning bi-fold doors of the living space, there is no finer spot for such clever and versatile accommodation which connects to the beautiful private gardens.
Cleverly enlarged through the generations, it now presents a fine family home offering an enchanting mix of old and new tucked away in the heart of Whiteleaf with the most breath-taking position.
Outside
Set in gently sloping grounds of 0.3 of an acre the property has a gravel sweep leading to the garage with private parking. The landscaped gardens are a true delight, offering an abundance of colour and three patio areas to allow morning and afternoon al fresco entertainment.
There is gated access via a footpath to the front door, as well as rear access. The property boundaries are a mix of mature hedging and fencing, giving good privacy and shelter.
Situation
Located at the end of a private road accessed to the right of Whiteleaf Golf Club, the property is set on the edge of the Chiltern Escarpment giving panoramic views of Whiteleaf towards Cadsden. The area offers fantastic walking and outdoor pursuits. The Prime Minister's country retreat, Chequers, is nearby, as well as the popular market towns of Princes Risborough (1.6 mile) and Wendover (4.9 miles) giving direct commuter links to London (c. 45 minutes by train). The area is renowned for its excellent educational facilities. Monks Risborough primary school is just 0.8 mile distant as well as Griffin House Preparatory School at Little Kimble (1.8 mile). Further details may be obtained from the local authority.
Property Ref Number:
HAM-18441Brochures
Brochure- COUNCIL TAXA payment made to your local authority in order to pay for local services like schools, libraries, and refuse collection. The amount you pay depends on the value of the property.Read more about council Tax in our glossary page.
- Band: G
- PARKINGDetails of how and where vehicles can be parked, and any associated costs.Read more about parking in our glossary page.
- Off street
- GARDENA property has access to an outdoor space, which could be private or shared.
- Private garden
- ACCESSIBILITYHow a property has been adapted to meet the needs of vulnerable or disabled individuals.Read more about accessibility in our glossary page.
- Ask agent
Whiteleaf, Princes Risborough, HP27
Add an important place to see how long it'd take to get there from our property listings.
__mins driving to your place
Get an instant, personalised result:
- Show sellers you’re serious
- Secure viewings faster with agents
- No impact on your credit score
Affordability
Notes
Staying secure when looking for property
Ensure you're up to date with our latest advice on how to avoid fraud or scams when looking for property online.
Visit our security centre to find out moreDisclaimer - Property reference a1n8d000000iAvFAAU. The information displayed about this property comprises a property advertisement. Rightmove.co.uk makes no warranty as to the accuracy or completeness of the advertisement or any linked or associated information, and Rightmove has no control over the content. This property advertisement does not constitute property particulars. The information is provided and maintained by Hamptons, Great Missenden. Please contact the selling agent or developer directly to obtain any information which may be available under the terms of The Energy Performance of Buildings (Certificates and Inspections) (England and Wales) Regulations 2007 or the Home Report if in relation to a residential property in Scotland.
*This is the average speed from the provider with the fastest broadband package available at this postcode. The average speed displayed is based on the download speeds of at least 50% of customers at peak time (8pm to 10pm). Fibre/cable services at the postcode are subject to availability and may differ between properties within a postcode. Speeds can be affected by a range of technical and environmental factors. The speed at the property may be lower than that listed above. You can check the estimated speed and confirm availability to a property prior to purchasing on the broadband provider's website. Providers may increase charges. The information is provided and maintained by Decision Technologies Limited. **This is indicative only and based on a 2-person household with multiple devices and simultaneous usage. Broadband performance is affected by multiple factors including number of occupants and devices, simultaneous usage, router range etc. For more information speak to your broadband provider.
Map data ©OpenStreetMap contributors.








